Rotterdam

Van Swietenlaan  3 D

€ 239.900,- k.k.

Omschrijving

Van Swietenlaan 3 D ROTTERDAM IDEAAL STARTERSAPPARTEMENT OP TOPLOCATIE Welkom aan de Van Swietenlaan 3D in Rotterdam! Dit fijne appartement ligt op de tweede verdieping van een kleinschalig complex in een rustige straat met veel voorzieningen binnen handbereik. Met twee slaapkamers, een aparte keuken, lichte woonkamer én recent uitgevoerde verbeteringen aan het comfort…

Van Swietenlaan 3 D ROTTERDAM

IDEAAL STARTERSAPPARTEMENT OP TOPLOCATIE
Welkom aan de Van Swietenlaan 3D in Rotterdam! Dit fijne appartement ligt op de tweede verdieping van een kleinschalig complex in een rustige straat met veel voorzieningen binnen handbereik. Met twee slaapkamers, een aparte keuken, lichte woonkamer én recent uitgevoerde verbeteringen aan het comfort en de techniek, is dit een hele geschikte woning voor starters of jonge doorstromers die een plek zoeken waar je zó in kunt trekken.

LICHT EN GOED INGEDEELD
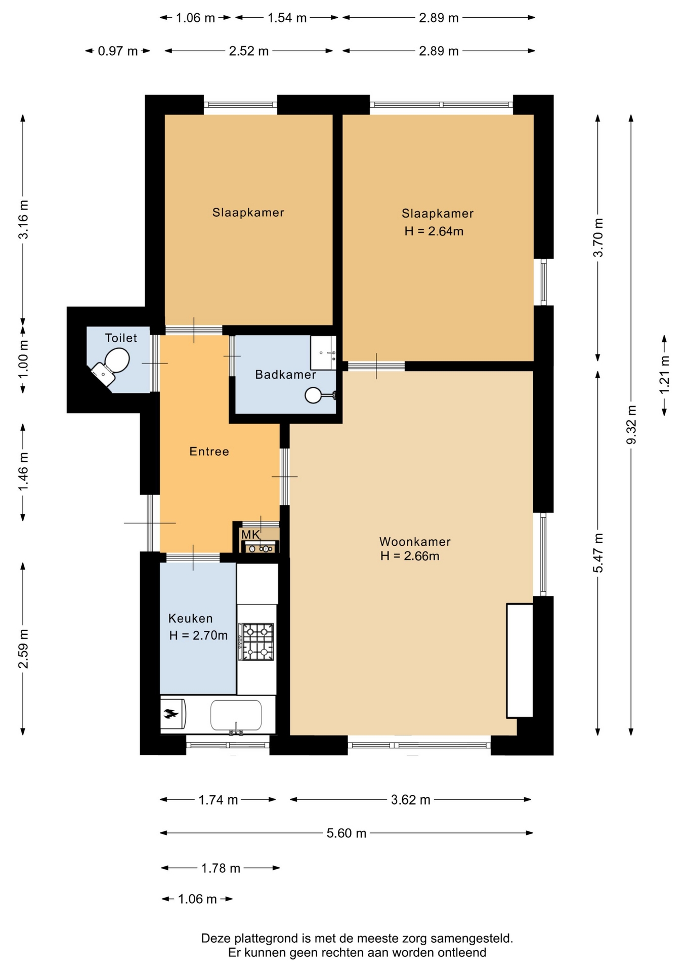
De woonkamer is licht, netjes afgewerkt en biedt genoeg ruimte voor een comfortabele zithoek én eethoek. Dankzij de ligging op de hoek profiteer je van extra veel lichtinval via de ramen aan twee zijden. De vloer is netjes afgewerkt met laminaat en de wanden zijn licht en strak gehouden – dat maakt dit huis direct instapklaar.

De aparte keuken ligt aan de achterzijde en is voorzien van een gaskookplaat, afzuigkap, oven, koelkast en zelfs een plek voor de wasmachine. Vanuit het keukenraam heb je zicht op de achtergelegen bebouwing en groenvoorziening. De keuken zelf is praktisch ingericht met veel kastruimte en een robuust aanrechtblad.

TWEE SLAAPKAMERS EN EEN NETTE BADKAMER
De hoofdslaapkamer ligt aan de achterzijde en biedt plek voor een tweepersoonsbed en een kast. De tweede slaapkamer aan de voorzijde is momenteel in gebruik als werk- en sportruimte, maar kan ook perfect dienen als logeerkamer of kinderkamer.

De badkamer is compact maar functioneel, en voorzien van een douche en wastafelmeubel. Het toilet bevindt zich separaat in de hal – altijd prettig voor gasten.

RECENT VERNIEUWD EN DUURZAAM VOORBEREID
In 2023 zijn alle kozijnen vervangen door kunststof kozijnen met isolatieglas – een flinke stap richting meer wooncomfort en energiebesparing. Begin 2024 is er bovendien een nieuwe Remeha HR combiketel geplaatst. Dat betekent: lage onderhoudskosten én betrouwbare verwarming voor de komende jaren.

Hoewel het huidige energielabel nog op G staat, is deze woning al goed op weg richting een betere score – je profiteert dus direct van de genomen maatregelen.

CENTRAAL IN ROTTERDAM MET ALLES DICHTBIJ
De Van Swietenlaan ligt in de wijk Vreewijk, een rustige en groene omgeving op korte afstand van het bruisende hart van Rotterdam. Voor je dagelijkse boodschappen wandel je zo naar winkelcentrum Zuidplein of de nabijgelegen supermarkten. De ligging is ideaal: de bus stopt op loopafstand, metrostation Zuidplein bereik je in enkele minuten en ook met de auto ben je zo op de A15 of A29. In de buurt zijn meerdere scholen, sportvoorzieningen en recreatiegebieden te vinden, waaronder het Zuiderpark. Of je nu met het OV reist, op de fiets springt of graag alles dichtbij hebt – dit is een hele praktische plek om te wonen.

KENMERKEN VAN DE WONING
- Woonoppervlakte: ca. 53 m²
- Bouwjaar: 1952
- Aantal kamers: 3 (inclusief woonkamer)
- Energielabel: G (voor plaatsing kunststof kozijnen en isolatieglas)
- Geheel v.v. kunststof kozijnen met isolatieglas
- Nieuwe cv combiketel Remeha HR (2024)
- Gunstige ligging t.o.v. alle voorzieningen
- Oplevering: In overleg

Toelichtingsclausule NEN2580:
De Meetinstructie is gebaseerd op de NEN2580. De Meetinstructie is bedoeld om een meer eenduidige manier van meten toe te passen voor het geven van een indicatie van de gebruiksoppervlakte. De Meetinstructie sluit verschillen in meetuitkomsten niet volledig uit, door bijvoorbeeld interpretatieverschillen, afrondingen of beperkingen bij het uitvoeren van de meting.

“Deze informatie is door ons met de nodige zorgvuldigheid samengesteld. Onzerzijds wordt echter geen enkele aansprakelijkheid aanvaard voor enige onvolledigheid, onjuistheid of anderszins, dan wel de gevolgen daarvan. Alle opgegeven maten en oppervlakten zijn indicatief.”

Koopovereenkomst pas rechtsgeldig na ondertekening:
Een mondelinge overeenstemming tussen de particuliere verkoper en de particuliere koper is niet rechtsgeldig. Met andere woorden: er is geen koop. Er is pas sprake van een rechtsgeldige koop als de particuliere verkoper en de particuliere koper de koopovereenkomst hebben ondertekend. Dit vloeit voort uit artikel 7:2 Burgerlijk Wetboek. Een bevestiging van de mondelinge overeenstemming per e-mail of een toegestuurd concept van de koopovereenkomst wordt overigens niet gezien als een 'ondertekende koopovereenkomst'.

Kenmerken

Basiskenmerken

  • Status Beschikbaar
  • Koopsom € 239.900 k.k.
  • Woonoppervlakte ca. 53 m2
  • Aantal slaapkamers 2
  • Bouwjaar 1952

Overdracht

  • Aanvaarding In overleg

Bouwvorm & onderhoud

  • Bouwjaar 1952
  • Soort bouw woonhuis
  • Ligging In woonwijk, beschutte ligging

Oppervlakte & inhoud

  • Gebruiksoppervlakte 53m2
  • Inhoud 182m3
  • Aantal kamers 3
  • Aantal slaapkamers 2
  • Aantal woonlagen 1 woonlagen

Energie & installatie

  • Energielabel G
  • Isolatie Dakisolatie, dubbel glas, hr glas
  • Verwarming Cv ketel
  • Warm water Cv ketel
  • C.v.-ketel type GAS
  • C.v.-ketel bouwjaar 2024
  • Energie einddatum 21-12-2033

Bergruimte

  • Schuur / berging Aangebouwd hout
  • Voorzieningen Voorzien van elektra

Parkeergelegenheid

  • Parkeerfaciliteiten Openbaar parkeren
  • Garage Geen garage

Dak

  • Soort dak Plat dak

Overig

  • Onderhoud binnen Goed
  • Onderhoud buiten Goed
  • Bijzonderheden Gedeeltelijk gestoffeerd
  • Permanente bewoning Ja
  • Huidig gebruik Woonruimte
  • Huidige bestemming Woonruimte

Voorzieningen

  • Voorzieningen Tv kabel

Kadastrale gegevens

  • Perceelnummer 2260
Meer kenmerken
Ontdek online wat jouw huis waard is

Met de online waardecheck ontdek je in een paar minuten de geschatte waarde van jouw huis

Online waardecheck

In de buurt

Geïnteresseerd?

Bel met Den Rooijen & Van Herk Makelaars

shape

Stuur een bericht

* Maximaal 255 tekens
privacyverklaring