Omschrijving

Kamer 5.2.01 Op toplocatie gelegen markant kantoorgebouw Multiveste. Hier kunt u representatieve kantoorruimte huren met verschillende oppervlakten. Vloeroppervlakte: totaal circa 5657 m² vvo, verdeeld over 6 bouwlagen. Elke bouwlaag heeft een oppervlakte van ca. 1.000 m² met drie vleugels. Hierdoor is er optimale indelingsvrijheid mogelijk! Er is dus ook de…

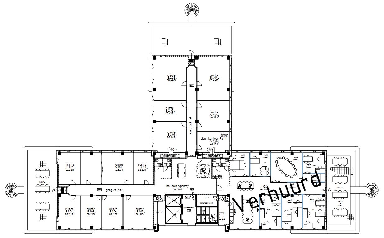
Kamer 5.2.01

Op toplocatie gelegen markant kantoorgebouw Multiveste. Hier kunt u representatieve kantoorruimte huren met verschillende oppervlakten.

Vloeroppervlakte: totaal circa 5657 m² vvo, verdeeld over 6 bouwlagen. Elke bouwlaag heeft een oppervlakte van ca. 1.000 m² met drie vleugels. Hierdoor is er optimale indelingsvrijheid mogelijk! Er is dus ook de mogelijkheid om grotere oppervlaktes te huren.

Parkeervoorziening: in overleg kunnen er parkeerplaatsen bij de kantoorruimte worden gehuurd. De kosten per parkeerplaats bedragen € 350,- excl. BTW per jaar. Mogelijk gebruik van laadpalen.

Locatie: direct aan de eerste afslag van de rijksweg A-12 op de Bedrijventerrein Goudse Poort. Op loopafstand bevindt zich een bushalte. En het NS-station is binnen 10 minuten per stadsbus bereikbaar.

Opleveringsniveau onder meer met:
- automatische deuren met tochtsluis;
- intercom;
- brievenbussen in entreehal;
- 2 personenliften;
- verschillende kantoorruimten met een flexibele indeling;
- mechanische ventilatie met topkoeling;
- luchtbevochtiger;
- cv-installatie;
- te openen ramen;
- kabelgoten;
- binnen zonwering;
- pantry;
- dubbele toiletgroep.

Huurprijsaanpassing: jaarlijks zal de huurprijs worden herzien op basis van de wijziging van het maandprijsindexcijfer volgens de consumentenprijsindex (CPI) Alle Huishoudens (2015=100), gepubliceerd door het Centraal Bureau voor de Statistiek (CBS), mits dit geen verlaging tot gevolg heeft.

Huurbetaling: de betaling van de huurprijs inclusief servicekosten, eventuele parkeerplaats en de eventuele BTW geschiedt in termijnen van 1 maand bij vooruitbetaling.

Huurtermijn: de huurovereenkomst wordt aangegaan voor nader vast te stellen termijnen.

Zekerheid: huurder dient binnen 2 weken na ondertekening van de huurovereenkomst, maar uiterlijk een dag voor de datum van ingebruikname, aan verhuurder een waarborgsom te voldoen voor een betalingstermijn van 3 maanden incl. BTW.

BTW-status: verhuurder wenst te opteren voor BTW-belaste huur en verhuur. Ingeval huurder de BTW niet kan verrekenen, zal de huurprijs in overleg met huurder worden verhoogd ter compensatie van de gevolgen van het vervallen van de mogelijkheid om te opteren voor BTW-belaste huur.

Huurovereenkomst: huurovereenkomst conform het standaard model van de Raad voor Onroerende Zaken (ROZ), zoals gehanteerd door de Nederlandse Vereniging voor Makelaars (NVM).

Voorbehoud: elke transactie behoeft de nadrukkelijke goedkeuring van eigenaar.

Algemeen: Al het bovenstaande betreft informatie omtrent de verhuur van HANZEWEG 14 te GOUDA. De informatie is met zorg samengesteld, maar voor de juistheid ervan kan door Van Herk bedrijfsmakelaars geen aansprakelijkheid worden aanvaard noch aan de vermelde gegevens enig recht worden ontleend. Nadrukkelijk is vermeld dat deze informatieverstrekking niet als een aanbieding of offerte mag worden beschouwd.

Kenmerken

Basiskenmerken

  • Status Onder optie
  • Huurprijs € 279,- p/m
  • Servicekosten -

Bouwvorm & onderhoud

  • Hoofdfunctie Kantoorruimte
  • Soort bouw Bestaande bouw
  • Bouwjaar 1990

Oppervlakte & inhoud

  • Oppervlakte kantoor ca. 30 m2
  • Oppervlakte kantoor ca. 30 m2

Overig

  • Onderhoud binnen Goed tot uitstekend
  • Onderhoud buiten Goed tot uitstekend
Meer kenmerken

Media

In de buurt

Geïnteresseerd?

Bel met Den Rooijen & Van Herk Makelaars

shape

Stuur een bericht

* Maximaal 255 tekens
privacyverklaring