Rotterdam

Bergweg  106 J

€ 489.000,- k.k.

Omschrijving

Licht, modern en direct te betrekken: 3-kamer appartement in het nieuwbouwproject Kop van Noord! Op zoek naar een strak afgewerkt appartement op een levendige locatie, waar je zó in kunt trekken? Dan is Bergweg 106 J precies wat je zoekt. Dit 3-kamerappartement ligt op de tweede verdieping van het in 2024 opgeleverde complex Kop van Noord, in het puntje aan de…

Licht, modern en direct te betrekken: 3-kamer appartement in het nieuwbouwproject Kop van Noord!

Op zoek naar een strak afgewerkt appartement op een levendige locatie, waar je zó in kunt trekken? Dan is Bergweg 106 J precies wat je zoekt. Dit 3-kamerappartement ligt op de tweede verdieping van het in 2024 opgeleverde complex Kop van Noord, in het puntje aan de Benthuizerstraat en Bergweg.

Dankzij de hoge ramen aan de oostzijde geniet je hier de hele dag van een fijne lichtinval en een ruimtelijk gevoel. Met vloerverwarming door het hele appartement, een luxe badkamer en keuken, en een eigen berging in de onderbouw is dit huis écht helemaal af. De gezamenlijke fietsenstalling maakt het plaatje compleet. Je hoeft alleen nog maar je meubels neer te zetten.

Dit is een uitgelezen kans voor wie op zoek is naar comfortabel, energiezuinig en stedelijk wonen, zonder te klussen!

PRAKTISCHE INDELING EN VOORZIEN VAN ALLE GEMAKKEN
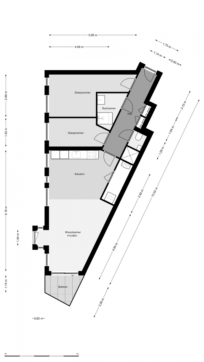
De entree ligt direct naast de lift (zonder geluidsoverlast én zonder galerij), waardoor je makkelijk en comfortabel thuis komt. Vanuit de hal heb je toegang tot twee slaapkamers, een luxe badkamer met ruime inloopdouche en stijlvol wastafelmeubel, een apart toilet, en een praktische inpandige berging met ruimte voor de wasmachine, droger én het WTW-systeem.

De lichte woonkamer is voorzien van een erker en schuifpui naar het balkon, wat dit appartement nét even dat extraatje geeft. De open keuken is modern uitgevoerd en voorzien van alle benodigde inbouwapparatuur: inductie kookplaat met geïntegreerde afzuiging, vaatwasser, Quooker, koel-vriescombinatie en combi-oven. Koken, relaxen en genieten lopen hier naadloos in elkaar over.

DUURZAAM EN TOEKOMSTBESTENDIG
Dit appartement scoort niet alleen op uitstraling, maar ook op duurzaamheid. Met energielabel A+++ zit je hier de komende jaren goed. Het gebouw is bijna energieneutraal gebouwd en beschikt over stadsverwarming, waardoor je geen gas meer nodig hebt.

Er zijn maar liefst vier zonnepanelen aanwezig (ter waarde van ca. € 3.800,-), wat bijdraagt aan lage maandlasten. Bovendien is het complex op traditionele wijze opgetrokken in metselwerk, wat zorgt voor een degelijke uitstraling én minimale onderhoudskosten. De materialen zijn duurzaam en onderhoudsvriendelijk gekozen, wat gunstig is voor de toekomstige VvE-lasten.

STIJLVOL WONEN IN KOP VAN NOORD
Wonen in Kop van Noord betekent wonen in een van de meest eigentijdse en diverse delen van Rotterdam. Je vindt hier een unieke mix van jong en oud, klassiek en modern. Deze wijk ontwikkelt zich in hoog tempo, en dat merk je: gezellige koffiebarretjes, hippe horeca en goede voorzieningen zijn allemaal binnen handbereik.

Het Oude Noorden is een wijk vol karakter, met gezellige straten, pleinen en een enorme diversiteit aan bewoners. Je vindt hier ambachtelijke winkels, kleinschalige horeca, koffietentjes en speciaalzaken. De bekende Zwaanshals en Zaagmolenkade liggen op korte afstand: perfect voor een ochtendwandeling of een borrel op een terras aan het water.

Qua bereikbaarheid zit je hier uitstekend. In een paar minuten ben je in het centrum van Rotterdam, op station Noord of op de snelweg. Toch voelt het hier niet als de drukte van de stad: in de zijstraten en hofjes is het rustig en gemoedelijk wonen. Kortom: Kop van Noord biedt het beste van twee werelden; stedelijk en dorps tegelijk.

Op de begane grond van het gebouw komt bovendien een eigentijdse horecagelegenheid, waar je straks terecht kunt voor goede koffie of een gezellige lunch. Voor de bewoners is er een gemeenschappelijk dakterras op de derde verdieping. Een heerlijke plek voor een momentje buiten.

KENMERKEN
- Bouwjaar 2023, opgeleverd in 2024
- Gelegen op eigen grond
- Centraal in Rotterdam in het hippe Oude Noorden
- Oriëntatie balkon: noordzijde, met vrij zicht op de Bergweg
- Woonoppervlakte: ca. 70 m²
- Berging van ca. 3 m² en algemene fietsenstalling
- Actieve VvE, maandelijkse bijdrage: € 158,24 per maand
- Parkeren is mogelijk in de tegenover gelegen parkeergarage met een abonnement
- Oplevering in overleg, kan snel

PLUSPUNTEN OPGESOMD
- Energielabel: A+++
- Turnkey en per direct beschikbaar
- 4 eigen zonnepanelen (Jinko Solar 425 WP met Enphase IQ8 plus micro-omvormers)
- Gasloos, voorzien van stadsverwarming
- Tripple glas, waardoor je binnen niets van de stad hoort
- Comfortabele vloerverwarming
- Ventilatie met WTW-systeem
- Complete keuken met inbouwapparatuur
- Luxe badkamer en separate toiletruimte voorzien van hoogwaardige betegeling
- Gemeenschappelijk dakterras

INTERESSE? MAAK DAN SNEL EEN AFSPRAAK!
Ons advies is om bij het kopen van jouw nieuwe woning jouw eigen NVM-makelaar mee te nemen.

TOELICHTINGSCLAUSULE NEN2580
De Meetinstructie is gebaseerd op de NEN2580. De Meetinstructie is bedoeld om een meer eenduidige manier van meten toe te passen voor het geven van een indicatie van de gebruiksoppervlakte. De Meetinstructie sluit verschillen in meetuitkomsten niet volledig uit, door bijvoorbeeld interpretatieverschillen, afrondingen of beperkingen bij het uitvoeren van de meting.

KOOPOVEREENKOMST PAS RECHTSGELDIG NA ONDERTEKENING
Een mondelinge overeenstemming tussen de particuliere verkoper en de particuliere koper is niet rechtsgeldig. Met andere woorden: er is geen koop. Er is pas sprake van een rechtsgeldige koop als de particuliere verkoper en de particuliere koper de koopovereenkomst hebben ondertekend. Dit vloeit voort uit artikel 7:2 Burgerlijk Wetboek. Een bevestiging van de mondelinge overeenstemming per e-mail of een toegestuurd concept van de koopovereenkomst wordt overigens niet gezien als een 'ondertekende koopovereenkomst'.

“Deze informatie is door ons met de nodige zorgvuldigheid samengesteld. Onzerzijds wordt echter geen enkele aansprakelijkheid aanvaard voor enige onvolledigheid, onjuistheid of anderszins, dan wel de gevolgen daarvan. Alle opgegeven maten en oppervlakten zijn indicatief.”

Kenmerken

Basiskenmerken

  • Status Beschikbaar
  • Koopsom € 489.000 k.k.
  • Woonoppervlakte ca. 70 m2
  • Aantal slaapkamers 2
  • Bouwjaar 2024

Overdracht

  • Aanvaarding In overleg

Bouwvorm & onderhoud

  • Bouwjaar 2024
  • Soort bouw woonhuis
  • Ligging In centrum, in woonwijk, vrij uitzicht

Oppervlakte & inhoud

  • Gebruiksoppervlakte 70m2
  • Inhoud 228m3
  • Aantal kamers 3
  • Aantal slaapkamers 2
  • Aantal woonlagen 1 woonlagen

Energie & installatie

  • Energielabel A+++
  • Isolatie Dakisolatie, muurisolatie, vloerisolatie, volledig geisoleerd, driedubbel glas
  • Verwarming Stadsverwarming
  • Warm water Stadsverwarming
  • Energie einddatum 20-06-2034

Bergruimte

  • Schuur / berging Box

Parkeergelegenheid

  • Parkeerfaciliteiten Openbaar parkeren, betaald parkeren, parkeergarage
  • Garage Geen garage

Dak

  • Soort dak Plat dak

Overig

  • Onderhoud binnen Uitstekend
  • Onderhoud buiten Uitstekend
  • Bijzonderheden Gedeeltelijk gestoffeerd, toegankelijk voor ouderen, toegankelijk voor minder validen
  • Permanente bewoning Ja
  • Huidig gebruik Woonruimte
  • Huidige bestemming Woonruimte

Voorzieningen

  • Voorzieningen Tv kabel, lift, zonnepanelen, balansventilatie

Kadastrale gegevens

  • Perceelnummer 6274
Meer kenmerken
Ontdek online wat jouw huis waard is

Met de online waardecheck ontdek je in een paar minuten de geschatte waarde van jouw huis

Online waardecheck

Media

In de buurt

Geïnteresseerd?

Bel met Den Rooijen & Van Herk Makelaars

shape

Stuur een bericht

* Maximaal 255 tekens
privacyverklaring