Capelle Aan Den Ijssel

Frederik van Eedenplaats 241

€ 275.000,- k.k.

Omschrijving

- NIEUW IN DE VERKOOP - GELEGEN OP DE 10E VERDIEPING IS DIT LEUKE APPARTEMENT TE VINDEN. HET APPARTEMENT BESCHIKT OVER 81 M² WOONOPPERVLAKTE MET EEN RUIME LICHTE WOONKAMER EN 2 SLAAPKAMERS. AAN DE ACHTERZIJDE IS EEN HEERLIJK ZONNIG BALKON TE VINDEN OP HET ZUIDWESTEN. SAMENGEVAT, ZEKER EEN BEZICHTIGING WAARD! OP DE 10E VERDIEPING: Centrale ingang van het complex met de…

- NIEUW IN DE VERKOOP -
GELEGEN OP DE 10E VERDIEPING IS DIT LEUKE APPARTEMENT TE VINDEN. HET APPARTEMENT BESCHIKT OVER 81 M² WOONOPPERVLAKTE MET EEN RUIME LICHTE WOONKAMER EN 2 SLAAPKAMERS. AAN DE ACHTERZIJDE IS EEN HEERLIJK ZONNIG BALKON TE VINDEN OP HET ZUIDWESTEN. SAMENGEVAT, ZEKER EEN BEZICHTIGING WAARD!

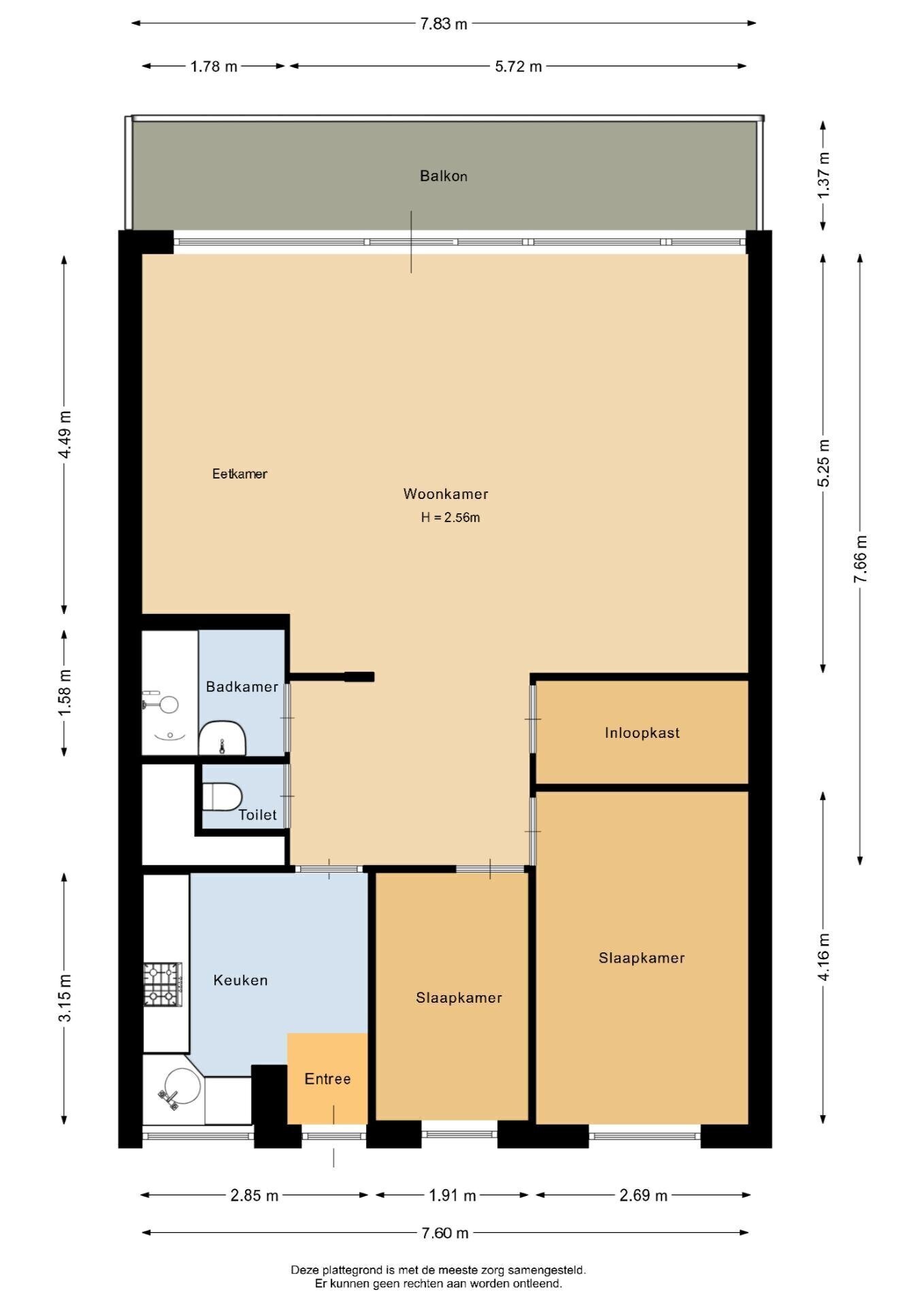
OP DE 10E VERDIEPING:
Centrale ingang van het complex met de bergingen, brievenbussen en de lift welke je naar de 10e verdieping brengt. Aan de voorzijde van het complex is de entree, waardoor je meteen in de keuken staat. Vanuit de hal zijn de vertrekken toegankelijk, zoals de slaapkamers, de badkamer, het toilet en een vaste kast. De 2 slaapkamers hebben een oppervlakte van 6 en 11 m² en zijn gelegen aan de voorzijde van het complex. Centraal is de volledig betegelde badkamer te vinden, welke voorzien is van een ligbad met douchefunctie en een wastafel. Aan de achterzijde is de woning brede woonkamer te vinden, welke ongeveer 40 m² is. Doordat de achtergevel bestaat uit raampartijen heb je veel daglicht toetreding en vanuit de woonkamer een geweldig uitzicht over de wijk. Ook het balkon is toegankelijk vanuit de woonkamer. Deze is zonnig gesitueerd op het zuidwesten, wat het mogelijk maakt om lang van de zon te kunnen genieten. Ook hier kan je de hele dag genieten van het uitzicht.

CENTRALE LOCATIE
Eén ding wat niet aan een woning kan worden verandert, is de ligging! Het appartement is gelegen in de directe nabijheid van buurtwinkelcentrum Slotplein, winkelcentrum De Koperwiek, de bibliotheek, het Isala Theater, diverse horecagelegenheden en natuurlijk de weekmarkt. De metrohalte bevindt zich op loopafstand en bijvoorbeeld het centrum van Rotterdam bereik je met de metro in slechts 15 minuten. Kortom, een hele fijn woonomgeving!

BIJZONDERHEDEN:
- Bouwjaar 1967;
- 81 m² woonoppervlakte;
- Gelegen op de 10e verdieping met geweldig uitzicht;
- 2 slaapkamers aan de voorzijde van het complex;
- Woning breed balkon op het zuidwesten;
- Ruime gratis parkeergelegenheid rondom het gebouw;
- Aparte eigen berging op de begane grond;
- Gelegen nabij het stadshart van Capelle aan den IJssel op loopafstand van winkels, openbaar vervoer (metro en bus);
- Er is een goede verbinding richting de uitvalswegen A16 en A20;
- Verwarming en warm water middels blokverwarming;
- Voorzien van houten kozijnen met volledig dubbele beglazing;
- Energielabel D, geldig tot 28-03-2035;
- Actieve VvE met een maandelijkse bijdrage van circa € 306,- (incl een voorschot op de stookkosten van € 83,-);
- Oplevering in overleg.

INTERESSE? MAAK DAN SNEL EEN AFSPRAAK!
Ons advies is om bij het kopen van je nieuwe huis je eigen NVM-makelaar mee te nemen.

TOELICHTINGSCLAUSULE NEN2580
De Meetinstructie is gebaseerd op de NEN2580. De Meetinstructie is bedoeld om een meer eenduidige manier van meten toe te passen voor het geven van een indicatie van de gebruiksoppervlakte. De Meetinstructie sluit verschillen in meetuitkomsten niet volledig uit, door bijvoorbeeld interpretatieverschillen, afrondingen of beperkingen bij het uitvoeren van de meting.

KOOPOVEREENKOMST PAS RECHTSGELDIG NA ONDERTEKENING
Een mondelinge overeenstemming tussen de particuliere verkoper en de particuliere koper is niet rechtsgeldig. Met andere woorden: er is geen koop. Er is pas sprake van een rechtsgeldige koop als de particuliere verkoper en de particuliere koper de koopovereenkomst hebben ondertekend. Dit vloeit voort uit artikel 7:2 Burgerlijk Wetboek. Een bevestiging van de mondelinge overeenstemming per e-mail of een toegestuurd concept van de koopovereenkomst wordt overigens niet gezien als een 'ondertekende koopovereenkomst'

“Deze informatie is door ons met de nodige zorgvuldigheid samengesteld. Onzerzijds wordt echter geen enkele aansprakelijkheid aanvaard voor enige onvolledigheid, onjuistheid of anderszins, dan wel de gevolgen daarvan. Alle opgegeven maten en oppervlakten zijn indicatief.”

Kenmerken

Basiskenmerken

  • Status Verkocht onder voorbehoud
  • Koopsom € 275.000 k.k.
  • Woonoppervlakte ca. 81 m2
  • Aantal slaapkamers 2
  • Bouwjaar 1967

Overdracht

  • Aanvaarding In overleg

Bouwvorm & onderhoud

  • Bouwjaar 1967
  • Soort bouw woonhuis
  • Ligging In centrum, in woonwijk

Oppervlakte & inhoud

  • Gebruiksoppervlakte 81m2
  • Inhoud 260m3
  • Aantal kamers 3
  • Aantal slaapkamers 2
  • Aantal woonlagen 1 woonlagen

Energie & installatie

  • Energielabel D
  • Isolatie Dubbel glas
  • Verwarming Blokverwarming
  • Warm water Centrale voorziening
  • Energie einddatum 2035-03-28

Bergruimte

  • Schuur / berging Box
  • Voorzieningen Voorzien van elektra

Parkeergelegenheid

  • Parkeerfaciliteiten Openbaar parkeren
  • Garage Geen garage

Dak

  • Soort dak Plat dak

Overig

  • Onderhoud binnen Goed
  • Onderhoud buiten Goed
  • Bijzonderheden Gedeeltelijk gestoffeerd, toegankelijk voor ouderen
  • Permanente bewoning Ja
  • Huidig gebruik Woonruimte
  • Huidige bestemming Woonruimte

Voorzieningen

  • Voorzieningen Lift, natuurlijke ventilatie

Kadastrale gegevens

Meer kenmerken

Ontdek online wat jouw huis waard is

Met de online waardecheck ontdek je in een paar minuten de geschatte waarde van jouw huis

Online waardecheck

In de buurt