Rotterdam

Gijsingstraat 56 B

€ 265.000,- k.k.

Omschrijving

Leuk 3-kamer appartement met potentie, in de historische wijk Delfshaven! Grijp je kans op dit charmante 3-kamer appartement in het sfeervolle Delfshaven! Dit appartement op de eerste verdieping biedt volop mogelijkheden om naar eigen smaak te moderniseren. Met een balkon op het zuiden, een gunstige ligging nabij winkels en openbaar vervoer, en een actieve VvE, is dit…

Leuk 3-kamer appartement met potentie, in de historische wijk Delfshaven!

Grijp je kans op dit charmante 3-kamer appartement in het sfeervolle Delfshaven! Dit appartement op de eerste verdieping biedt volop mogelijkheden om naar eigen smaak te moderniseren. Met een balkon op het zuiden, een gunstige ligging nabij winkels en openbaar vervoer, en een actieve VvE, is dit een ideale woning voor wie graag zijn eigen droom appartement wilt creëren.

WONEN IN EEN HISTORISCHE WIJK MET KARAKTER
Delfshaven is een van de weinige plekken in Rotterdam waar de historische charme volledig behouden is gebleven. Hier woon je in een unieke, authentieke wijk met sfeervolle grachten, monumentale panden en een bruisend aanbod aan kunst, cultuur en horeca. De Schiedamseweg ligt om de hoek en biedt een grote diversiteit aan winkels, van een Poolse supermarkt tot een ambachtelijke slager. Dankzij deze centrale ligging heb je alle voorzieningen binnen handbereik!

IDEALE LOCATIE MET UITSTEKENDE BEREIKBAARHEID
Met tram-, bus- en metrohaltes op loopafstand ben je binnen enkele minuten in het centrum van Rotterdam. Daarnaast is er een uitstekende aansluiting op diverse uitvalswegen, wat deze locatie ook ideaal maakt voor forenzen. Wil je even ontsnappen aan de drukte van de stad? Het nabijgelegen Park 1943 biedt een groene oase waar je heerlijk kunt ontspannen of sporten.

EEN WONING MET MOGELIJKHEDEN EN ZONNIG BALKON
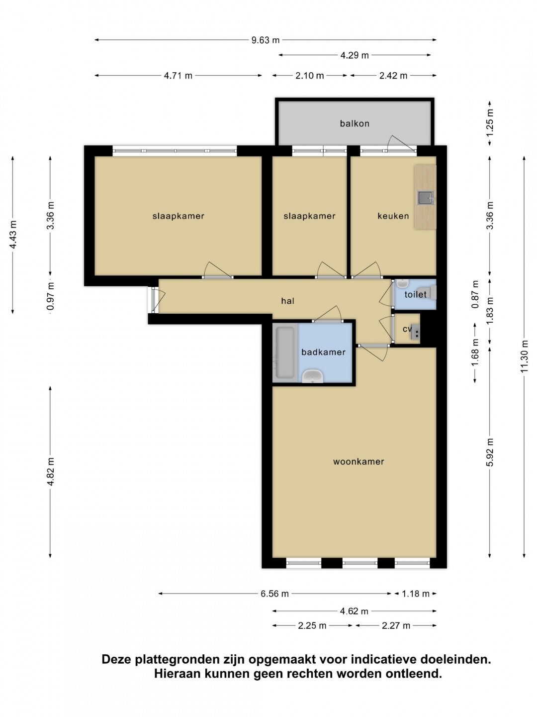
Dit appartement biedt volop potentie om geheel naar eigen wens te moderniseren. De praktische indeling met twee slaapkamers, een aparte keuken en een lichte woonkamer biedt een solide basis. Vanuit de keuken heb je toegang tot het zonnige balkon op het zuiden, waar je heerlijk kunt genieten van de middag- en avondzon. Bovendien beschikt de woning over een eigen berging op de begane grond en is het geheel voorzien van dubbel glas.

KENMERKEN:
- Woonoppervlakte: ca. 68 m²
- Energielabel D
- Balkon op het zuiden
- VvE met een bijdrage van € 129,70 per maand (berging € 15,66 per maand)
- Inpandige berging op de begane grond
- Volledig voorzien van dubbel glas
- Verwarming en warmwater middels CV ketel (Remeha, 2023)
- Woning is gelegen in een energietransitie gebied. Mogelijk wordt er stadsverwarming gerealiseerd en wordt de woning gasloos. De kosten hiervan zijn voor rekening van koper, de kosten zijn onbekend.
- Zelfbewoningsplicht voor 5 jaar van toepassing
- Ouderdoms-, asbest- en niet-zelfbewoningsclausule van toepassing
- Project notaris van toepassing
- Koopzekerlabel van Havensteder
- Oplevering in overleg, kan snel

INTERESSE? MAAK DAN SNEL EEN AFSPRAAK!
Ons advies is om bij het kopen van jouw nieuwe woning jouw eigen NVM-makelaar mee te nemen.

TOELICHTINGSCLAUSULE NEN2580
De Meetinstructie is gebaseerd op de NEN2580. De Meetinstructie is bedoeld om een meer eenduidige manier van meten toe te passen voor het geven van een indicatie van de gebruiksoppervlakte. De Meetinstructie sluit verschillen in meetuitkomsten niet volledig uit, door bijvoorbeeld interpretatieverschillen, afrondingen of beperkingen bij het uitvoeren van de meting.

KOOPOVEREENKOMST PAS RECHTSGELDIG NA ONDERTEKENING
Een mondelinge overeenstemming tussen de particuliere verkoper en de particuliere koper is niet rechtsgeldig. Met andere woorden: er is geen koop. Er is pas sprake van een rechtsgeldige koop als de particuliere verkoper en de particuliere koper de koopovereenkomst hebben ondertekend. Dit vloeit voort uit artikel 7:2 Burgerlijk Wetboek. Een bevestiging van de mondelinge overeenstemming per e-mail of een toegestuurd concept van de koopovereenkomst wordt overigens niet gezien als een 'ondertekende koopovereenkomst'

“Deze informatie is door ons met de nodige zorgvuldigheid samengesteld. Onzerzijds wordt echter geen enkele aansprakelijkheid aanvaard voor enige onvolledigheid, onjuistheid of anderszins, dan wel de gevolgen daarvan. Alle opgegeven maten en oppervlakten zijn indicatief.”

Kenmerken

Basiskenmerken

  • Status Verkocht onder voorbehoud
  • Koopsom € 265.000 k.k.
  • Woonoppervlakte ca. 68 m2
  • Aantal slaapkamers 2
  • Bouwjaar 1925

Overdracht

  • Aanvaarding In overleg

Bouwvorm & onderhoud

  • Bouwjaar 1925
  • Soort bouw woonhuis
  • Ligging Aan rustige weg, in woonwijk

Oppervlakte & inhoud

  • Gebruiksoppervlakte 68m2
  • Inhoud 220m3
  • Aantal kamers 3
  • Aantal slaapkamers 2
  • Aantal woonlagen 1 woonlagen

Energie & installatie

  • Energielabel D
  • Isolatie Dubbel glas
  • Verwarming Stadsverwarming
  • Warm water Stadsverwarming
  • Energie einddatum 2030-10-27

Bergruimte

  • Schuur / berging Inpandig
  • Voorzieningen Voorzien van elektra

Parkeergelegenheid

  • Parkeerfaciliteiten Betaald parkeren, parkeervergunningen
  • Garage Geen garage

Dak

  • Soort dak Plat dak

Overig

  • Onderhoud binnen Redelijk
  • Onderhoud buiten Goed
  • Bijzonderheden Gedeeltelijk gestoffeerd, kluswoning
  • Permanente bewoning Ja
  • Huidig gebruik Woonruimte
  • Huidige bestemming Woonruimte

Voorzieningen

  • Voorzieningen Tv kabel, natuurlijke ventilatie

Kadastrale gegevens

  • Perceelnummer 5070
Meer kenmerken

Ontdek online wat jouw huis waard is

Met de online waardecheck ontdek je in een paar minuten de geschatte waarde van jouw huis

Online waardecheck

Media

In de buurt