 
                                 
                                         
                                        Ridderkerk
Hellingbaan 26
€ 445.000,- k.k.
Omschrijving
Dubbele bewoning, bijzonder wonen en energiezuinig! Maken bovenstaande woorden uw zoektocht compleet? Maak dan snel een afspraak met ons kantoor! In de woonwijk Ridderkerk-Bolnes bevindt zich deze bijzondere eengezinswoning! De woning is namelijk opgedeeld in welgeteld twéé aparte woningen in hetzelfde huis met beide een aparte voordeur. Dit plaatje kenmerkt zich,…
Dubbele bewoning, bijzonder wonen en energiezuinig!
Maken bovenstaande woorden uw zoektocht compleet? Maak dan snel een afspraak met ons kantoor!
In de woonwijk Ridderkerk-Bolnes bevindt zich deze bijzondere eengezinswoning! De woning is namelijk opgedeeld in welgeteld twéé aparte woningen in hetzelfde huis met beide een aparte voordeur. Dit plaatje kenmerkt zich, logischerwijs, door zijn bijzondere manier van indeling en zijn keurige staat van afwerking. De woning is onder andere dus voorzien van alles in tweevoud! Zo vindt u hier dus een tweetal royale woonkamers, twee keukens met inbouwapparatuur, twee badkamers, twee slaapkamers en een dakterras op de eerste verdieping! In de directe nabijheid vindt u het winkelcentrum van Bolnes op fietsafstand, openbaar vervoer voorzieningen op loopafstand waaronder de waterbus naar Rotterdam en Dordrecht, recreatiegebieden zoals het Donckse Bos op loopafstand, verschillende scholen en kinderdagverblijven en diverse uitvalswegen zoals de A15 en A16.
Indeling:
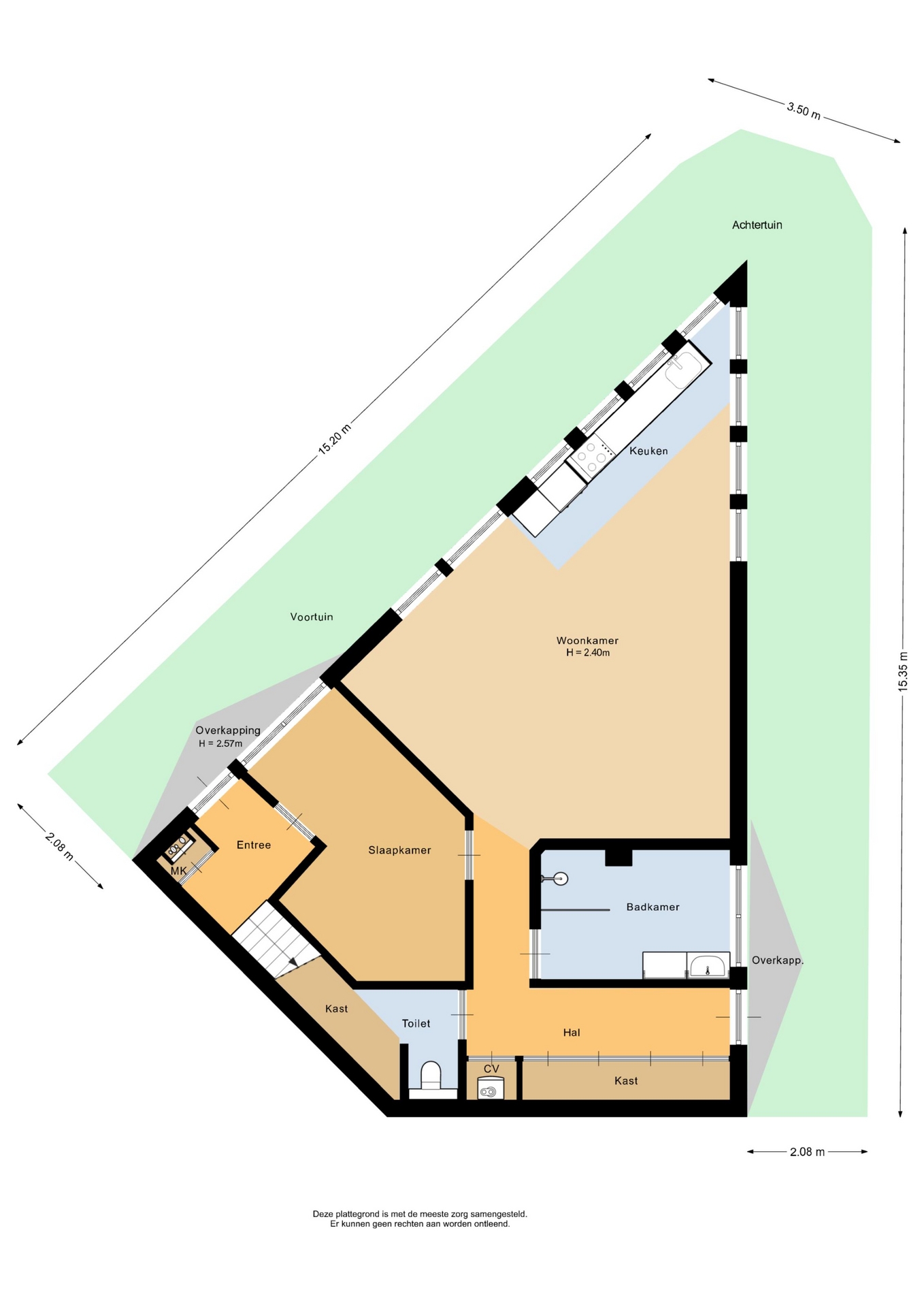
Begane grond:
Middels de voordeur komt u terecht in de hal vanwaar u toegang heeft tot alle vertrekken in de woning. Bij binnenkomst bevindt zich aan uw linkerhand een vaste kasten wand met daarin een tweetal elektrische boilers.
Grenzend hieraan bevindt zich de toiletruimte met hangend closet en wasmachineaansluiting. Tegenover de toiletruimte vindt u de badkamer. Deze volledig betegelde badkamer is uitgevoerd met een antraciet kleurige tegel en is voorzien van een bijzonder riante inloopdouche en een eigen wastafelmeubel. Verder de hal in gelopen vindt u de toegang tot de slaapkamer. Aan de achterzijde van de woning bevindt zich de bijzonder ruime, maar bovenal speelse woonkamer. Tevens bevindt zich hier de open keuken. Deze open keuken is uitgevoerd met een witte kleurstelling en beschikt over diverse Inbouwapparatuur uur te weten; koel/vries combinatie, combi magnetron, 4-pits inductie kookplaat, vaatwasser en rvs spoelbak. 
Eerste verdieping:
Vanuit de hal, waar zich de meterkast bevindt, loopt u middels de vaste trap naar de bovengelegen verdieping. Direct op de overloop vindt u de volledig betegelde toiletruimte met hangend closet. Vanuit de overloop komt u terecht in de fraaie woonkeuken die is uitgevoerd met witte en zwarte kastdeuren en beschikt over diverse Inbouwapparatuur te weten; combi magnetron, vaatwasser en 4-pits inductie kookplaat. Grenzend aan de woonkeuken vindt u de tweede slaapkamer van de woning met daaraan vast een prachtig, moderne badkamer! De badkamer is uitgevoerd met een riante inloopdouche. Aan de achterzijde vindt u wederom een speelse woonkamer met toegang tot het achtergelegen dakterras. Dit dakterras is gelegen op het noordwesten en bied u een heerlijke plek om te genieten in zowel de zon als de schaduw.
Bijzonderheden:
- Eigen grond.
- Bouwjaar 1997
- Woonoppervlakte 151 m2
- Verwarming: De woning wordt verwarmd middels een eigen CV ketel.
- Warm water voorziening middels een tweetal 100L elektrische boilers.
- Isolatie: De woning is volledig geïsoleerd en beschikt over een energielabel B
- Gunstig gelegen ten overstaan van de dagelijkse behoeften en voorzieningen.
- Dubbele bewoning aanwezig!
- Oplevering in overleg.
Van der Giessen & Van Herk Makelaardij behartigt de belangen van de verkopende partij. Neem uw eigen NVM aankoopmakelaar mee.
Alle verstrekte informatie moet beschouwd worden als een uitnodiging tot het doen van een bod of om in onderhandeling te treden.
Deze informatie is door ons met de nodige zorgvuldigheid samengesteld. Onzerzijds wordt echter geen enkele aansprakelijkheid aanvaard voor enige onvolledigheid, onjuistheid of anderszins, dan wel de gevolgen daarvan. Alle opgegeven maten en oppervlakten zijn indicatief. Van toepassing zijn de NVM voorwaarden.
Koopovereenkomst pas rechtsgeldig na ondertekening:
Een mondelinge overeenstemming tussen de particuliere verkoper en de particuliere koper is niet rechtsgeldig. Met andere woorden: er is geen koop. Er is pas sprake van een rechtsgeldige koop als de particuliere verkoper en de particuliere koper de koopovereenkomst hebben ondertekend. Dit vloeit voort uit artikel 7:2 Burgerlijk Wetboek. Een bevestiging van de mondelinge overeenstemming per e-mail of een toegestuurd concept van de koopovereenkomst wordt overigens niet gezien als een 'ondertekende koopovereenkomst'.
Toelichtingsclausule NEN2580:
De Meetinstructie is gebaseerd op de NEN2580. De meetinstructie is bedoeld om een meer eenduidige manier van meten toe te passen voor het geven van een indicatie van de gebruiksoppervlakte. De meetinstructie sluit verschillen in meetuitkomsten niet volledig uit, door bijvoorbeeld interpretatieverschillen, afrondingen of beperkingen bij het uitvoeren van de meting.
Kenmerken
Basiskenmerken
- Status Beschikbaar
- Koopsom € 445.000 k.k.
- Woonoppervlakte ca. 151 m2
- Aantal slaapkamers 2
- Bouwjaar 1997
Overdracht
- Aanvaarding In overleg
Bouwvorm & onderhoud
- Soort object Eindwoning
- Soort woning Eengezinswoning
- Bouwjaar 1997
- Soort bouw woonhuis
- Ligging In woonwijk
Oppervlakte & inhoud
- Gebruiksoppervlakte 151m2
- Perceeloppervlakte 168m2
- Inhoud 530m3
- Aantal kamers 4
- Aantal slaapkamers 2
- Aantal woonlagen 2 woonlagen
Energie & installatie
- Energielabel B
- Isolatie Dakisolatie, muurisolatie, vloerisolatie, dubbel glas, volledig geisoleerd
- Verwarming Cv ketel
- Warm water Cv ketel
- C.v.-ketel type GAS
- C.v.-ketel bouwjaar 2014
- Energie einddatum 2028-12-10
Parkeergelegenheid
- Parkeerfaciliteiten Openbaar parkeren
- Garage Geen garage
Dak
- Soort dak Plat dak
Overig
- Onderhoud binnen Matig tot redelijk
- Onderhoud buiten Matig tot redelijk
- Bijzonderheden Dubbele bewoning aanwezig
- Permanente bewoning Ja
- Huidig gebruik Woonruimte
- Huidige bestemming Woonruimte
Voorzieningen
- Voorzieningen Tv kabel
Buitenruimte
- Kwaliteit tuin Normaal
Kadastrale gegevens
- Perceelnummer 4591
- Perceeloppervlakte 168
 
            Ontdek online wat jouw huis waard is
Met de online waardecheck ontdek je in een paar minuten de geschatte waarde van jouw huis
Online waardecheck 
                                         
                                         
                                         
                                         
                                         
                                         
                                         
                                         
                                     
                                     
                                     
                                     
                                     
                                     
                                     
                                     
                                     
                                     
                                     
                                     
                                     
                                     
                                     
                                     
                                     
                                     
                                     
                                     
                                     
                                     
                                     
                                     
                                     
                                     
                                     
                                     
                                     
                                     
                                     
                                     
                                     
                                     
                                     
                                    