Spijkenisse

Hyacinthstraat  15

€ 375.000,- k.k.

Omschrijving

MODERNE GEZINSWONING MET SERRE EN HEERLIJK ZONNIGE TUIN In deze straat vind je precies wat veel mensen zoeken: rust, ruimte en een huis waar je zo in kunt. Deze tussenwoning is de afgelopen jaren op meerdere punten aangepakt en dat merk je meteen zodra je binnenstapt. Denk aan een moderne keuken (2024), een moderne badkamer en een heerlijke aangebouwde serre waar je bijna…

MODERNE GEZINSWONING MET SERRE EN HEERLIJK ZONNIGE TUIN
In deze straat vind je precies wat veel mensen zoeken: rust, ruimte en een huis waar je zo in kunt. Deze tussenwoning is de afgelopen jaren op meerdere punten aangepakt en dat merk je meteen zodra je binnenstapt. Denk aan een moderne keuken (2024), een moderne badkamer en een heerlijke aangebouwde serre waar je bijna het hele jaar door zit.

De combinatie van praktische indeling, vier slaapkamers en een diepe tuin maakt dit huis geschikt voor een brede doelgroep. Hier kun je als starter direct comfortabel wonen, maar ook als gezin kun je hier prima uit de voeten.

Ook aan duurzaamheid is gedacht. Zo zijn er 12 zonnepanelen geplaatst, wat zorgt voor een lagere energierekening en een mooie stap richting energiezuinig wonen. Daarnaast is het hele huis voorzien van HR++ glas, wat bijdraagt aan een comfortabel binnenklimaat. Met een energielabel B zit je ook voor de komende jaren goed.

LICHTE WOONKAMER EN EEN MODERNE KEUKEN
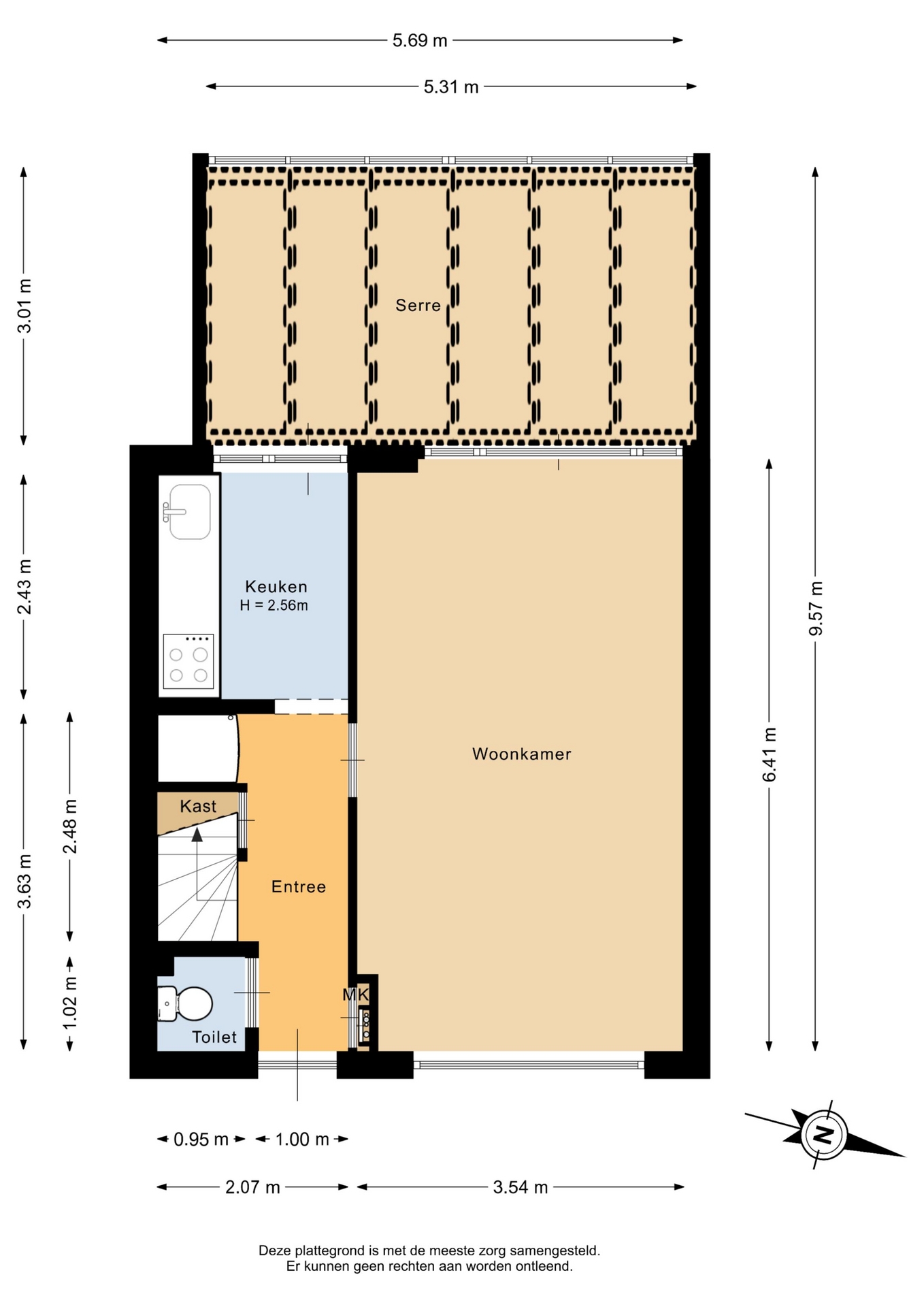
Via de entree kom je binnen in de hal met modern toilet, meterkast (vernieuwd in 2022) en trapopgang. Vanuit hier loop je door naar de woonkamer. Wat direct opvalt is de fijne lichtinval en de praktische indeling, waardoor je eenvoudig een gezellige zithoek en een aparte eethoek creëert.

Aan de achterzijde sluit de woonkamer middels openslaande deuren aan op de serre. Dit is echt een verlengstuk van je leefruimte en zorgt voor extra comfort. Of het nu voorjaar of najaar is: hier zit je al snel lekker beschut en licht.

De keuken ligt aan de achterzijde en is recent vernieuwd (2024). Deze is modern uitgevoerd en voorzien van alle benodigde inbouwapparatuur, waardoor je hier direct vooruit kunt. Een groot pluspunt voor kopers die geen zin hebben in verbouwen.

NOK-VERHOGING, VIER SLAAPKAMERS EN EEN MODERNE BADKAMER
Op de eerste verdieping vind je drie slaapkamers. De grootste slaapkamer ligt aan de achterzijde en biedt voldoende ruimte voor een tweepersoonsbed en kastruimte. De overige kamers zijn ideaal als kinder-, werk- of hobbykamer.

De badkamer is modern uitgevoerd (ca. 4 jaar oud) en voorzien van een inloopdouche en wastafelmeubel. Alles is netjes afgewerkt in een eigentijdse stijl.

De tweede verdieping is een echte verrassing. Dankzij de nokverhoging (2006) is hier een volwaardige extra slaapkamer ontstaan. Ook vind je hier de opstelling cv combiketel Intergas HR. Dit maakt het totaal op vier slaapkamers, wat dit huis extra interessant maakt.

ZONNIGE TUIN MET AANGEBOUWDE SERRE EN OVERKAPPING
De achtertuin is diep en verzorgd aangelegd. Dankzij de ligging op het zuidwesten geniet je hier van veel zon gedurende de dag.

De serre aan het huis is een echte eyecatcher. Deze is recent geplaatst (2025) en zorgt ervoor dat je veel langer buiten kunt zitten. Achterin de tuin vind je daarnaast een overkapping en een vrijstaande stenen berging met elektra – ideaal voor opslag of hobbyruimte.

Met een achterom en voldoende ruimte voor bijvoorbeeld een loungehoek en speelplek is dit een tuin waar je echt alle kanten mee op kunt.

RUSTIGE LIGGING MET ALLES DICHTBIJ
Het huis ligt in een rustige woonwijk met een beschutte ligging. In de directe omgeving vind je winkels, scholen en openbaar vervoer. Ook ben je snel onderweg richting uitvalswegen en de A15.

Spijkenisse staat bekend om zijn goede voorzieningen en de combinatie van stedelijk gemak met veel groen in de buurt. Dat maakt dit een fijne plek om te wonen voor zowel gezinnen als starters.

BELANGRIJKSTE KENMERKEN OP EEN RIJ
- Woonoppervlakte: ca. 85 m²
- Perceeloppervlakte: 152 m²
- Bouwjaar: 1962
- Geheel v.v. HR++ glas
- 12 zonnepanelen
- Aangebouwde serre (2025)
- Energielabel: B
- Heerlijk tuin op het Zuidwesten
- Gezellige overkapping achterin de tuin
- Nokverhoging op tweede verdieping
- 4 slaapkamers
- Moderne keuken (2024)
- Modern toilet en badkamer (2022)
- Vernieuwde meterkast (2022)
- Aanvaarding: In overleg.

Toelichtingsclausule NEN2580:
De Meetinstructie is gebaseerd op de NEN2580. De Meetinstructie is bedoeld om een meer eenduidige manier van meten toe te passen voor het geven van een indicatie van de gebruiksoppervlakte. De Meetinstructie sluit verschillen in meetuitkomsten niet volledig uit, door bijvoorbeeld interpretatieverschillen, afrondingen of beperkingen bij het uitvoeren van de meting.

“Deze informatie is door ons met de nodige zorgvuldigheid samengesteld. Onzerzijds wordt echter geen enkele aansprakelijkheid aanvaard voor enige onvolledigheid, onjuistheid of anderszins, dan wel de gevolgen daarvan. Alle opgegeven maten en oppervlakten zijn indicatief.”

Koopovereenkomst pas rechtsgeldig na ondertekening:
Een mondelinge overeenstemming tussen de particuliere verkoper en de particuliere koper is niet rechtsgeldig. Met andere woorden: er is geen koop. Er is pas sprake van een rechtsgeldige koop als de particuliere verkoper en de particuliere koper de koopovereenkomst hebben ondertekend. Dit vloeit voort uit artikel 7:2 Burgerlijk Wetboek. Een bevestiging van de mondelinge overeenstemming per e-mail of een toegestuurd concept van de koopovereenkomst wordt overigens niet gezien als een 'ondertekende koopovereenkomst'.

Kenmerken

Basiskenmerken

  • Status Beschikbaar
  • Koopsom € 375.000 k.k.
  • Woonoppervlakte ca. 85 m2
  • Aantal slaapkamers 4
  • Bouwjaar 1962

Overdracht

  • Aanvaarding In overleg

Bouwvorm & onderhoud

  • Soort object Tussenwoning
  • Soort woning Eengezinswoning
  • Bouwjaar 1962
  • Soort bouw woonhuis
  • Ligging Aan rustige weg, in woonwijk, beschutte ligging

Oppervlakte & inhoud

  • Gebruiksoppervlakte 85m2
  • Perceeloppervlakte 152m2
  • Inhoud 359m3
  • Aantal kamers 5
  • Aantal slaapkamers 4
  • Aantal woonlagen 3 woonlagen

Energie & installatie

  • Energielabel B
  • Isolatie Dakisolatie, muurisolatie
  • Verwarming Cv ketel
  • Warm water Cv ketel
  • C.v.-ketel type GAS
  • C.v.-ketel bouwjaar 2011
  • Energie einddatum 21-11-2035

Bergruimte

  • Schuur / berging Vrijstaand steen
  • Voorzieningen Voorzien van elektra

Parkeergelegenheid

  • Parkeerfaciliteiten Openbaar parkeren
  • Garage Geen garage

Dak

  • Soort dak Zadeldak

Overig

  • Onderhoud binnen Goed tot uitstekend
  • Onderhoud buiten Goed
  • Bijzonderheden Gedeeltelijk gestoffeerd
  • Permanente bewoning Ja
  • Huidig gebruik Woonruimte
  • Huidige bestemming Woonruimte

Voorzieningen

  • Voorzieningen Tv kabel, glasvezel kabel, zonnepanelen, natuurlijke ventilatie

Buitenruimte

  • Hoofdtuin ACHTERTUIN
  • Oppervlakte hoofdtuin 73m2
  • Ligging hoofdtuin ZUIDWEST
  • Kwaliteit tuin Verzorgd

Kadastrale gegevens

  • Perceelnummer 3840
  • Perceeloppervlakte 152 m2
Meer kenmerken
Ontdek online wat jouw huis waard is

Met de online waardecheck ontdek je in een paar minuten de geschatte waarde van jouw huis

Online waardecheck

In de buurt

Geïnteresseerd?

Bel met Den Rooijen & Van Herk Makelaars

shape

Stuur een bericht

* Maximaal 255 tekens
privacyverklaring