Rotterdam

IJsselmondselaan 220

€ 435.000,- k.k.

Omschrijving

SFEERVOL EN RUIM GEZINSHUIS MET RIANTE TUIN EN GARAGE! Welkom aan de IJsselmondselaan 220 in Rotterdam! Dit charmante jaren ’20-hoekhuis combineert ruimte, karakter en een heerlijke tuin op het oosten. Met drie slaapkamers, een royale living, serre, kelder en een ruime oprit biedt dit huis alles voor wie comfortabel en sfeervol wil wonen in een groene, rustige omgeving…

SFEERVOL EN RUIM GEZINSHUIS MET RIANTE TUIN EN GARAGE!
Welkom aan de IJsselmondselaan 220 in Rotterdam!
Dit charmante jaren ’20-hoekhuis combineert ruimte, karakter en een heerlijke tuin op het oosten. Met drie slaapkamers, een royale living, serre, kelder en een ruime oprit biedt dit huis alles voor wie comfortabel en sfeervol wil wonen in een groene, rustige omgeving vlak bij de stad.

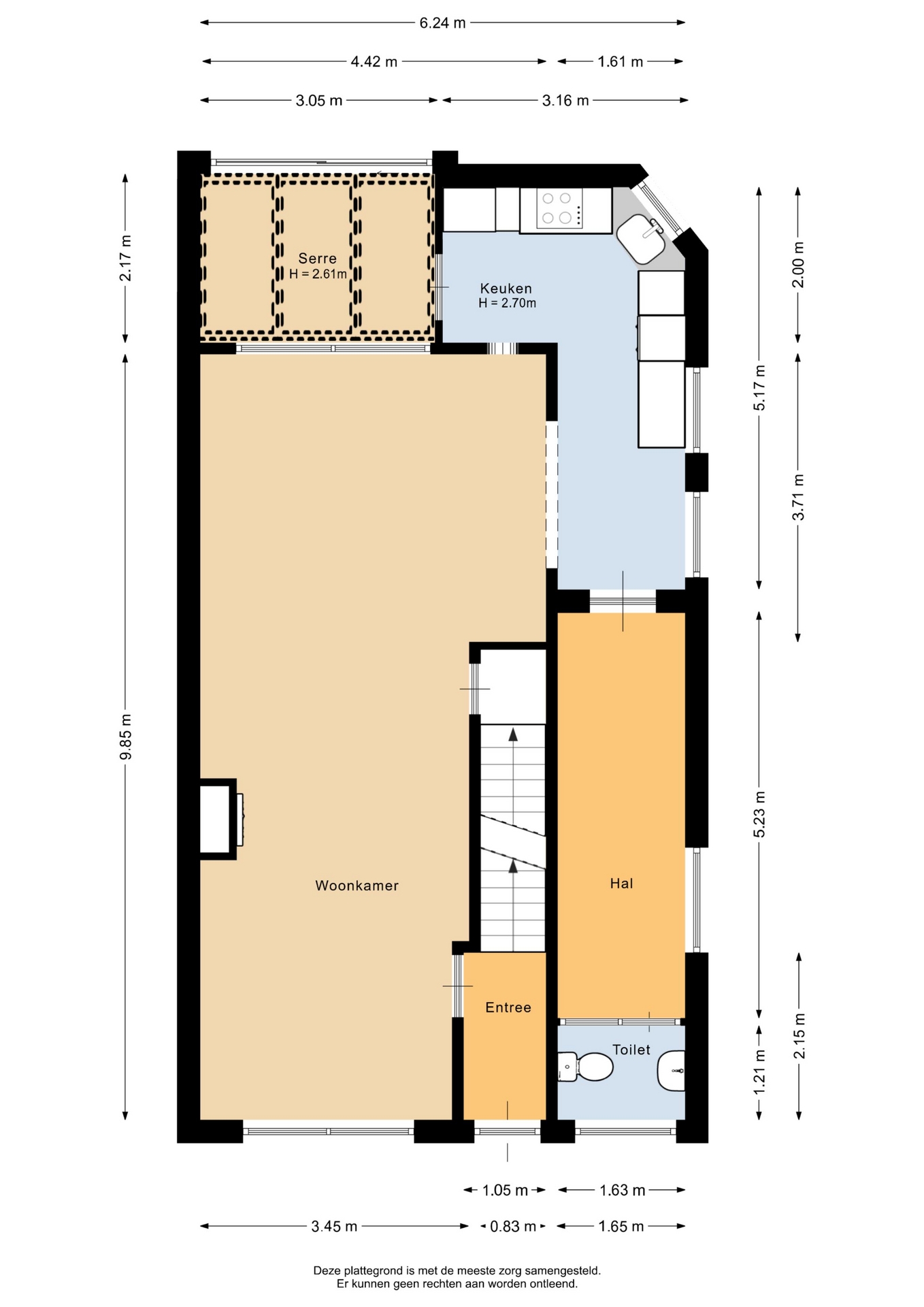
LICHTE WOONKAMER, SERRE EN LANDELIJKE KEUKEN
De woonkamer is het hart van het huis. Grote ramen aan de voorzijde zorgen voor veel natuurlijk licht en een prettige verbinding met de straat. De zichtbare balken en karakteristieke houtkachel.
Aan de achterzijde bevindt zich de landelijke keuken in L-opstelling. Met lichte fronten, een zwart werkblad en voldoende kastruimte past deze stijl perfect bij het karakter van het huis. Vanuit de keuken loop je door naar de serre aan de achterzijde, een heerlijke plek om ’s ochtends een kop koffie te drinken of in de middag te genieten van het uitzicht op de tuin.

RIANTE TUIN, GARAGE EN OPRIT
De tuin is een absolute verrassing: diep, groen en zonnig, met volop mogelijkheden om te ontspannen of te tuinieren. De ligging op het oosten betekent zon in de ochtend en vroege middag, en dankzij de diepte ook later op de dag.
Achter in de tuin staat een vrijstaande garage waarin een auto past — ideaal voor wie graag binnen parkeert of extra bergruimte zoekt.
De oprit biedt plaats aan drie auto’s, wat bijzonder praktisch is voor gezinnen of bezoekers. De tuin is verzorgd aangelegd met bestrating, gras, borders en volwassen beplanting.

DRIE SLAAPKAMERS, BADKAMER EN KELDER
Op de eerste verdieping bevinden zich drie slaapkamers. De grootste slaapkamer ligt aan de achterzijde en biedt uitzicht over de tuin. De tweede slaapkamer aan de voorzijde is eveneens ruim en ideaal als kinderkamer of werkplek. De derde kamer is iets compacter, perfect als babykamer of thuiskantoor.
De badkamer is functioneel ingedeeld met een douche, wastafel en daglichttoetreding. Daarnaast is er op deze verdieping een apart toilet geplaatst – een recente verbetering die extra comfort biedt.
Onder het huis bevindt zich bovendien een kelder, ideaal voor opslag of als praktische provisieruimte.

RECENTE VERBETERINGEN
De woning is de afgelopen periode op diverse punten verbeterd:
Op de bovenverdieping is een apart toilet geplaatst.
Eén slaapkamer is geïsoleerd en voorzien van een nieuw kunststof kozijn.
In het toilet beneden is eveneens een nieuw kunststof kozijn geplaatst.
Er is een nieuwe cv-ketel geïnstalleerd, geschikt voor aansluiting op een warmtepomp.
In de keuken is een nieuwe vaatwasser geplaatst.

FIJNE LOCATIE IN KRALINGSE VEER
Deze woning ligt in het gezellige Kralingse Veer, een buurt die steeds populairder wordt onder jonge gezinnen en stellen. De wijk combineert het rustige karakter van een dorpse omgeving met de voordelen van de grote stad op korte afstand.
Voor de dagelijkse boodschappen kun je terecht bij winkels in de directe omgeving of in winkelcentrum Alexandrium. Ook scholen, sportverenigingen en speeltuintjes liggen dichtbij – ideaal voor gezinnen met kinderen.
De ligging is bovendien zeer gunstig ten opzichte van uitvalswegen (A16 en A20) en het openbaar vervoer. De metrohalte Capelsebrug ligt op korte afstand, waarmee je snel in het centrum van Rotterdam bent of richting Capelle aan den IJssel reist.
Ook het Kralingse Bos en de Kralingse Plas zijn vlakbij; perfect voor een wandeling, picknick of sportieve middag.

In Kralingse Veer woon je net buiten de drukte, maar met alles binnen handbereik.

VERKOPER AAN HET WOORD

“Wat wij zo fijn vinden aan dit huis is de rustige, groene omgeving waar je in de tuin helemaal niet merkt dat je zo dicht bij de stad woont. Binnen is het licht en sfeervol, met de serre als favoriete plek om ’s ochtends een kop koffie te drinken. Met de fiets ben je in tien minuten in de stad voor een drankje of etentje. Dankzij de ruime oprit en praktische indeling woont het hier gewoon heel prettig.”

KENMERKEN
- Bouwjaar: 1918
- Woonoppervlakte: ca. 110 m²
- Perceeloppervlakte: 286 m² (Eigen grond)
- Aantal kamers: 4
- Aantal slaapkamers: 3
- Serre aan de achterzijde
- Kelder aanwezig
- Ruime oprit met plek voor 3 auto’s
- Garage waarin een auto past
- Recente verbeteringen (zie lijst hierboven)
- De woning biedt volop mogelijkheden om naar eigen smaak te moderniseren
- Energielabel: E, welke geldig is tot 06-08-2035
- Let op, er wordt een ouderdoms- en asbestclausule opgenomen in de koopovereenkomst
- Oplevering in overleg

INTERESSE? MAAK DAN SNEL EEN AFSPRAAK!
Ons advies is om bij het kopen van je nieuwe huis je eigen NVM-makelaar mee te nemen.

TOELICHTINGSCLAUSULE NEN2580
De Meetinstructie is gebaseerd op de NEN2580. De Meetinstructie is bedoeld om een meer eenduidige manier van meten toe te passen voor het geven van een indicatie van de gebruiksoppervlakte. De Meetinstructie sluit verschillen in meetuitkomsten niet volledig uit, door bijvoorbeeld interpretatieverschillen, afrondingen of beperkingen bij het uitvoeren van de meting.

KOOPOVEREENKOMST PAS RECHTSGELDIG NA ONDERTEKENING
Een mondelinge overeenstemming tussen de particuliere verkoper en de particuliere koper is niet rechtsgeldig. Met andere woorden: er is geen koop. Er is pas sprake van een rechtsgeldige koop als de particuliere verkoper en de particuliere koper de koopovereenkomst hebben ondertekend. Dit vloeit voort uit artikel 7:2 Burgerlijk Wetboek. Een bevestiging van de mondelinge overeenstemming per e-mail of een toegestuurd concept van de koopovereenkomst wordt overigens niet gezien als een 'ondertekende koopovereenkomst'

“Deze informatie is door ons met de nodige zorgvuldigheid samengesteld. Onzerzijds wordt echter geen enkele aansprakelijkheid aanvaard voor enige onvolledigheid, onjuistheid of anderszins, dan wel de gevolgen daarvan. Alle opgegeven maten en oppervlakten zijn indicatief.”

Kenmerken

Basiskenmerken

  • Status Beschikbaar
  • Koopsom € 435.000 k.k.
  • Woonoppervlakte ca. 110 m2
  • Aantal slaapkamers 3
  • Bouwjaar 1918

Overdracht

  • Aanvaarding In overleg

Bouwvorm & onderhoud

  • Soort object Hoekwoning
  • Soort woning Eengezinswoning
  • Bouwjaar 1918
  • Soort bouw woonhuis
  • Ligging In woonwijk

Oppervlakte & inhoud

  • Gebruiksoppervlakte 110m2
  • Perceeloppervlakte 286m2
  • Inhoud 428m3
  • Aantal kamers 4
  • Aantal slaapkamers 3
  • Aantal woonlagen 2 woonlagen

Energie & installatie

  • Energielabel E
  • Isolatie Dakisolatie, dubbel glas
  • Verwarming Cv ketel
  • Warm water Cv ketel
  • C.v.-ketel type GAS
  • C.v.-ketel bouwjaar 2023
  • Energie einddatum 2035-08-06

Parkeergelegenheid

  • Parkeerfaciliteiten Openbaar parkeren, op eigen terrein
  • Garage Vrijstaand hout

Dak

  • Soort dak Samengesteld dak

Overig

  • Onderhoud binnen Goed
  • Onderhoud buiten Goed
  • Bijzonderheden Gedeeltelijk gestoffeerd
  • Permanente bewoning Ja
  • Huidig gebruik Woonruimte
  • Huidige bestemming Woonruimte

Voorzieningen

  • Voorzieningen Rookkanaal, schuifpui, natuurlijke ventilatie

Buitenruimte

  • Hoofdtuin ACHTERTUIN
  • Oppervlakte hoofdtuin 96m2
  • Ligging hoofdtuin OOST
  • Kwaliteit tuin Normaal

Kadastrale gegevens

  • Perceelnummer 1626
  • Perceeloppervlakte 286
Meer kenmerken

Ontdek online wat jouw huis waard is

Met de online waardecheck ontdek je in een paar minuten de geschatte waarde van jouw huis

Online waardecheck

In de buurt

Geïnteresseerd?

Bel met Den Rooijen & Van Herk Makelaars

shape

Stuur een bericht

* Maximaal 255 tekens
privacyverklaring