Schoonhoven

Leeghwaterstraat 171

€ 400.000,- k.k.

Omschrijving

**Deelnemer NVM Open Huizen Dag 4 oktober 2025 tussen 11.00 - 15.00 uur** - UITGEBOUWDE GEZINSWONING MET DIEPE TUIN OP HET WESTEN - Op zoek naar een fijne gezinswoning in een rustige straat in Schoonhoven? Deze uitgebouwde tussenwoning aan de Leeghwaterstraat 171 biedt volop ruimte, een diepe tuin op het westen en een solide basis om jouw woonwensen waar te maken. Of je…

**Deelnemer NVM Open Huizen Dag 4 oktober 2025 tussen 11.00 - 15.00 uur**

- UITGEBOUWDE GEZINSWONING MET DIEPE TUIN OP HET WESTEN -
Op zoek naar een fijne gezinswoning in een rustige straat in Schoonhoven? Deze uitgebouwde tussenwoning aan de Leeghwaterstraat 171 biedt volop ruimte, een diepe tuin op het westen en een solide basis om jouw woonwensen waar te maken. Of je nu starter bent of toe bent aan je volgende stap, dit huis biedt alle potentie voor jarenlang woonplezier.

BELANGRIJKSTE KENMERKEN
- Vraagprijs: € 400.000,-;
- Ligging: rustig en centraal in Schoonhoven;
- Voorzieningen binnen handbereik;
- Tuinligging: westen;
- Woonoppervlakte: 108 m²;
- Perceeloppervlakte: 140 m²;
- Bouwjaar: 1985;
- Aantal verdiepingen: 3;
- Aantal kamers: 4;
- Aantal slaapkamers: 3;
- Energielabel: indicatie C (definitief label volgt nog);
- Oplevering: in overleg.

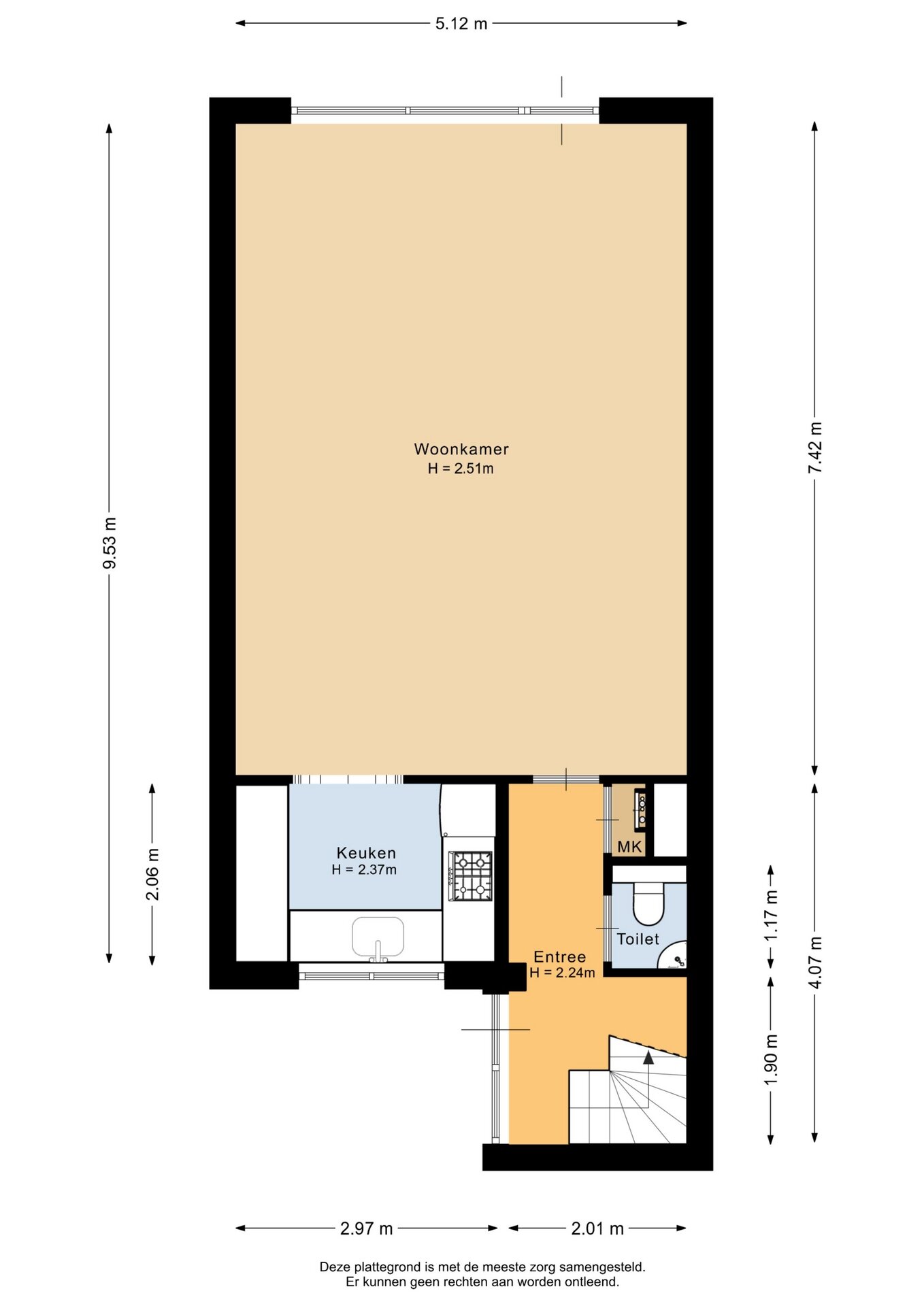
BEGANE GROND
Bij binnenkomst valt direct de ruimte in de woonkamer op. Dankzij de uitbouw aan de achterzijde is er een royale leefruimte ontstaan, met voldoende plek voor zowel een comfortabele zithoek als een grote eettafel. Grote raampartijen zorgen voor een fijne lichtinval en een directe verbinding met de tuin. De half open keuken aan de voorzijde is praktisch ingericht en biedt alles wat je nodig hebt voor dagelijks kookgemak. De begane grond is neutraal afgewerkt, waardoor je hier met relatief eenvoudige ingrepen je eigen stijl kunt toevoegen.

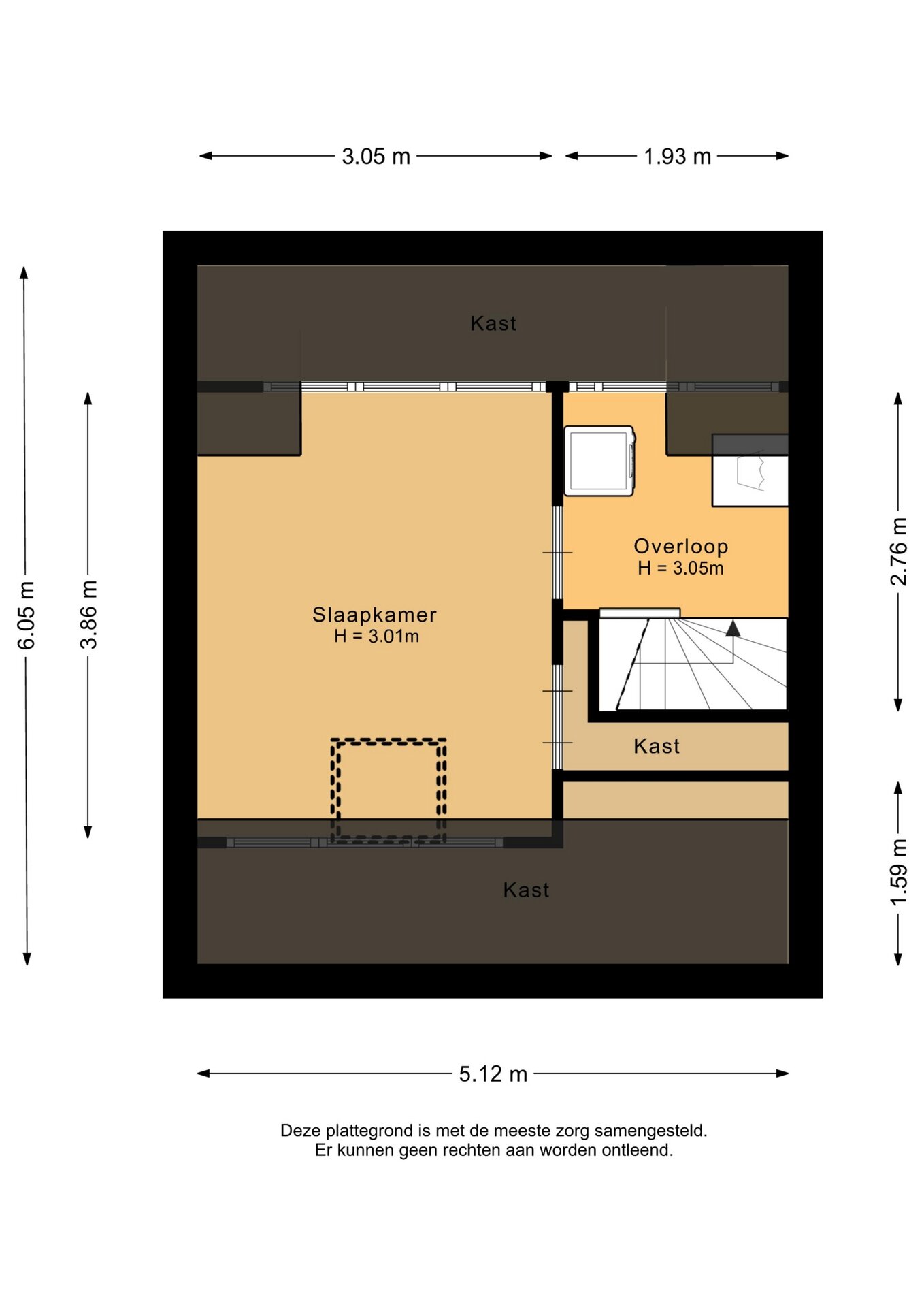
EERSTE VERDIEPING
Op de eerste verdieping vind je twee slaapkamers en de badkamer. De grootste slaapkamer ligt aan de achterzijde, is voorzien van royale inloopkast (voorheen slaapkamer) en kijkt uit over de diepe tuin. De tweede kamer, aan de voorzijde is ideaal als kinder- of werkkamer. De badkamer is functioneel ingericht met een douche, wastafel en toilet. De tweede verdieping biedt nog een derde slaapkamer met dakraam en bergruimte achter de knieschotten.

BUITENRUIMTE
Een groot pluspunt van dit huis is de zonnige achtertuin. Dankzij de westelijke ligging geniet je hier volop van de middag- en avondzon. De tuin is onderhoudsvrij aangelegd met bestrating. Achter in de tuin staat een stenen berging voor fietsen en tuingereedschap, en via de handige achterom ben je zo weer op straatniveau. De tuin biedt voldoende ruimte voor een loungeset, een trampoline of een kleine moestuin – net wat bij jouw wensen past.

OMGEVING
Leeghwaterstraat 171 ligt in een rustige en kindvriendelijke wijk in het noorden van Schoonhoven. In de directe omgeving vind je diverse speelplekken, basisscholen, een supermarkt en sportverenigingen. Binnen een paar minuten fietsen sta je in het historische centrum van Schoonhoven, bekend om zijn zilver, gezellige terrassen en sfeervolle straten. De Lek is op loopafstand en biedt mooie wandel- en fietsroutes langs het water. Ook de verbindingen richting Gouda, Rotterdam en Utrecht zijn goed geregeld via het openbaar vervoer en uitvalswegen. Hier woon je in alle rust, maar met alle voorzieningen binnen handbereik.

TOELICHTINGSCLAUSULE NEN2580
De Meetinstructie is gebaseerd op de NEN2580. De Meetinstructie is bedoeld om een meer eenduidige manier van meten toe te passen voor het geven van een indicatie van de gebruiksoppervlakte. De Meetinstructie sluit verschillen in meetuitkomsten niet volledig uit, door bijvoorbeeld interpretatieverschillen, afrondingen of beperkingen bij het uitvoeren van de meting.

KOOPOVEREENKOMST PAS RECHTSGELDIG NA ONDERTEKENING
Een mondelinge overeenstemming tussen de particuliere verkoper en de particuliere koper is niet rechtsgeldig. Met andere woorden: er is geen koop. Er is pas sprake van een rechtsgeldige koop als de particuliere verkoper en de particuliere koper de koopovereenkomst hebben ondertekend. Dit vloeit voort uit artikel 7:2 Burgerlijk Wetboek. Een bevestiging van de mondelinge overeenstemming per e-mail of een toegestuurd concept van de koopovereenkomst wordt overigens niet gezien als een 'ondertekende koopovereenkomst'

“Deze informatie is door ons met de nodige zorgvuldigheid samengesteld. Onzerzijds wordt echter geen enkele aansprakelijkheid aanvaard voor enige onvolledigheid, onjuistheid of anderszins, dan wel de gevolgen daarvan. Alle opgegeven maten en oppervlakten zijn indicatief.”

Kenmerken

Basiskenmerken

  • Status Beschikbaar
  • Koopsom € 400.000 k.k.
  • Woonoppervlakte ca. 108 m2
  • Aantal slaapkamers 3
  • Bouwjaar 1985

Overdracht

  • Aanvaarding In overleg

Bouwvorm & onderhoud

  • Soort object Tussenwoning
  • Soort woning Eengezinswoning
  • Bouwjaar 1985
  • Soort bouw woonhuis
  • Ligging Aan rustige weg, in woonwijk

Oppervlakte & inhoud

  • Gebruiksoppervlakte 108m2
  • Perceeloppervlakte 140m2
  • Inhoud 375m3
  • Aantal kamers 4
  • Aantal slaapkamers 3
  • Aantal woonlagen 3 woonlagen

Energie & installatie

  • Energielabel B
  • Isolatie Dakisolatie, muurisolatie, grotendeels dubbelglas
  • Verwarming Cv ketel
  • Warm water Cv ketel
  • C.v.-ketel type GAS
  • Energie einddatum 2035-10-08

Bergruimte

  • Schuur / berging Vrijstaand steen

Parkeergelegenheid

  • Parkeerfaciliteiten Openbaar parkeren
  • Garage Geen garage

Dak

  • Soort dak Zadeldak

Overig

  • Onderhoud binnen Goed
  • Onderhoud buiten Redelijk tot goed
  • Bijzonderheden Gedeeltelijk gestoffeerd
  • Permanente bewoning Ja
  • Huidig gebruik Woonruimte
  • Huidige bestemming Woonruimte

Voorzieningen

  • Voorzieningen Mechanische ventilatie, buitenzonwering, dakraam, natuurlijke ventilatie

Buitenruimte

  • Hoofdtuin ACHTERTUIN
  • Oppervlakte hoofdtuin 65m2
  • Ligging hoofdtuin WEST
  • Kwaliteit tuin Normaal

Kadastrale gegevens

  • Perceelnummer 1894
  • Perceeloppervlakte 140
Meer kenmerken

Ontdek online wat jouw huis waard is

Met de online waardecheck ontdek je in een paar minuten de geschatte waarde van jouw huis

Online waardecheck

In de buurt

Geïnteresseerd?

Bel met Den Rooijen & Van Herk Makelaars

shape

Stuur een bericht

* Maximaal 255 tekens
privacyverklaring