Ridderkerk

Leopoldstraat  22

€ 385.000,- k.k.

Omschrijving

Rust, ruimte en centraal. Spreken bovenstaande woorden u aan? Maak dan snel een afspraak met ons kantoor! In de gewilde woonwijk Ridderkerk-Oost bevindt zich deze heerlijke 5-kamer eengezinswoning! Dit plaatje kenmerkt zich door zijn royale afmetingen en zijn centrale ligging ten overstaan van de dagelijkse voorzieningen. De woning is onder andere voorzien van een…

Rust, ruimte en centraal.

Spreken bovenstaande woorden u aan? Maak dan snel een afspraak met ons kantoor!

In de gewilde woonwijk Ridderkerk-Oost bevindt zich deze heerlijke 5-kamer eengezinswoning! Dit plaatje kenmerkt zich door zijn royale afmetingen en zijn centrale ligging ten overstaan van de dagelijkse voorzieningen. De woning is onder andere voorzien van een verrassend ruime woonkamer, keuken met inbouwapparatuur, een viertal slaapkamers, volledig betegelde badkamer en een keurige achtertuin welke is gelegen op het noordwesten.

In de directe nabijheid treft u het winkelcentrum Ridderhof op loopafstand, openbaar vervoer voorzieningen om de hoek, recreatiegebieden zoals het Oosterpark op loopafstand, verschillende scholen en kinderdagverblijven en diverse uitvalswegen zoals de A15 en A16!

Begane grond: Entree, hal, meterkast, trapopgang naar de bovengelegen verdiepingen, betegelde toiletruimte met en fonteintje en toegang tot de woonkamer. Vanuit de hal komt u terecht in de verrassend ruime doorzonkamer. Aan de achterzijde van de woning bevindt zich de keuken. Vanuit de keuken heeft u toegang tot de royale achtertuin welke is gelegen op het westen. Deze diepe achtertuin is voorzien van een eigen stenen berging en achterom.

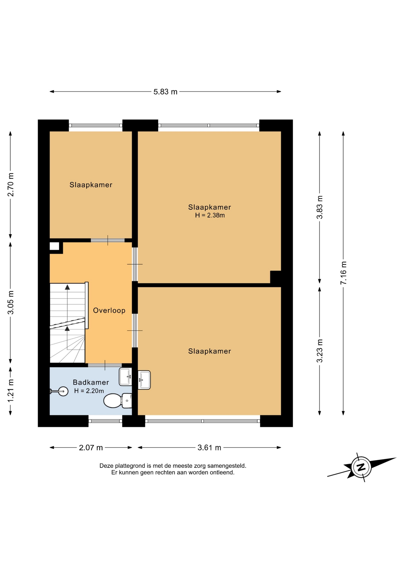
1e verdieping: Vanuit de overloop heeft u toegang tot alle vertrekken op deze verdieping. Zo treft u aan de achterzijde van de woning de eerste twee slaapkamers. Aan de voorzijde van de woning treft u de derde slaapkamer. Grenzend aan deze slaapkamer treft u de badkamer. Deze volledig betegelde badkamer is voorzien van een wastafelmeubel, 2e toilet en douchecabine.

2e verdieping: Middels de vaste trap komt u terecht op de overloop van de tweede verdieping. Hier treft u de wasmachine aansluiting en de eigen cv ketel. Vanuit de overloop komt u terecht in de vierde slaapkamer.

Bijzonderheden:
- Eigen grond.
- Isolatie: De woning is voorzien van dubbele beglazing.
- Verwarming: De woning is voorzien van een eigen CV ketel.
- Gelegen in een zeer kindvriendelijke omgeving.
- Dagelijkse voorzieningen op loopafstand.
- Oplevering in overleg.

Van der Giessen & Van Herk Makelaardij behartigt de belangen van de verkopende partij. Neem uw eigen NVM aankoopmakelaar mee. Alle verstrekte informatie moet beschouwd worden als een uitnodiging tot het doen van een bod of om in onderhandeling te treden. Deze informatie is door ons met de nodige zorgvuldigheid samengesteld. Onzerzijds wordt echter geen enkele aansprakelijkheid aanvaard voor enige onvolledigheid, onjuistheid of anderszins, dan wel de gevolgen daarvan. Alle opgegeven maten en oppervlakten zijn indicatief. Van toepassing zijn de NVM voorwaarden. Koopovereenkomst pas rechtsgeldig na ondertekening: Een mondelinge overeenstemming tussen de particuliere verkoper en de particuliere koper is niet rechtsgeldig. Met andere woorden: er is geen koop. Er is pas sprake van een rechtsgeldige koop als de particuliere verkoper en de particuliere koper de koopovereenkomst hebben ondertekend. Dit vloeit voort uit artikel 7:2 Burgerlijk Wetboek. Een bevestiging van de mondelinge overeenstemming per e-mail of een toegestuurd concept van de koopovereenkomst wordt overigens niet gezien als een 'ondertekende koopovereenkomst'. Toelichtingsclausule NEN2580: De Meetinstructie is gebaseerd op de NEN2580. De meetinstructie is bedoeld om een meer eenduidige manier van meten toe te passen voor het geven van een indicatie van de gebruiksoppervlakte. De meetinstructie sluit verschillen in meetuitkomsten niet volledig uit, door bijvoorbeeld interpretatieverschillen, afrondingen of beperkingen bij het uitvoeren van de meting.

Kenmerken

Basiskenmerken

  • Status Verkocht onder voorbehoud
  • Koopsom € 385.000 k.k.
  • Woonoppervlakte ca. 106 m2
  • Aantal slaapkamers 4
  • Bouwjaar 1969

Overdracht

  • Aanvaarding In overleg

Bouwvorm & onderhoud

  • Soort object Tussenwoning
  • Soort woning Eengezinswoning
  • Bouwjaar 1969
  • Soort bouw woonhuis
  • Ligging In woonwijk

Oppervlakte & inhoud

  • Gebruiksoppervlakte 106m2
  • Perceeloppervlakte 150m2
  • Inhoud 369m3
  • Aantal kamers 5
  • Aantal slaapkamers 4
  • Aantal woonlagen 3 woonlagen

Energie & installatie

  • Energielabel C
  • Verwarming Cv ketel
  • Warm water Cv ketel
  • C.v.-ketel type GAS
  • C.v.-ketel bouwjaar 2003
  • Energie einddatum 24-04-2036

Bergruimte

  • Schuur / berging Vrijstaand steen
  • Voorzieningen Voorzien van elektra

Parkeergelegenheid

  • Parkeerfaciliteiten Openbaar parkeren
  • Garage Geen garage

Dak

  • Soort dak Zadeldak

Overig

  • Onderhoud binnen Redelijk
  • Onderhoud buiten Goed
  • Permanente bewoning Ja
  • Huidig gebruik Woonruimte
  • Huidige bestemming Woonruimte

Voorzieningen

  • Voorzieningen Buitenzonwering

Buitenruimte

  • Hoofdtuin ACHTERTUIN
  • Oppervlakte hoofdtuin 50m2
  • Kwaliteit tuin Normaal

Kadastrale gegevens

  • Perceelnummer 3470
  • Perceeloppervlakte 150 m2
Meer kenmerken
Ontdek online wat jouw huis waard is

Met de online waardecheck ontdek je in een paar minuten de geschatte waarde van jouw huis

Online waardecheck

In de buurt