Rhoon

Margrietstraat 18

€ 310.000,- k.k.

Omschrijving

MARGRIETSTRAAT 18 - RHOON Kluswoning met potentie op een rustige plek WONEN NAAR EIGEN SMAAK Zoek je een huis waar je écht je eigen draai aan kunt geven? Dan zit je goed aan de Margrietstraat 18 in Rhoon. Deze ruime eengezinswoning ligt in een rustige, groene wijk en is volledig naar eigen inzicht te moderniseren. Met een woonoppervlakte van 86 m², drie woonlagen en een…

MARGRIETSTRAAT 18 - RHOON

Kluswoning met potentie op een rustige plek

WONEN NAAR EIGEN SMAAK
Zoek je een huis waar je écht je eigen draai aan kunt geven? Dan zit je goed aan de Margrietstraat 18 in Rhoon. Deze ruime eengezinswoning ligt in een rustige, groene wijk en is volledig naar eigen inzicht te moderniseren. Met een woonoppervlakte van 86 m², drie woonlagen en een fijne achtertuin op het noordwesten biedt dit huis een uitstekende basis voor wie niet bang is om de handen uit de mouwen te steken. De structuur is goed, de ruimtes zijn praktisch ingedeeld en de ligging is ideaal. Of je nu starter, doorstromer of klusser bent: hier ligt jouw kans om iets moois te creëren.

PRKATISHE INDELING EN VERRASSEND VEEL RUIMTE
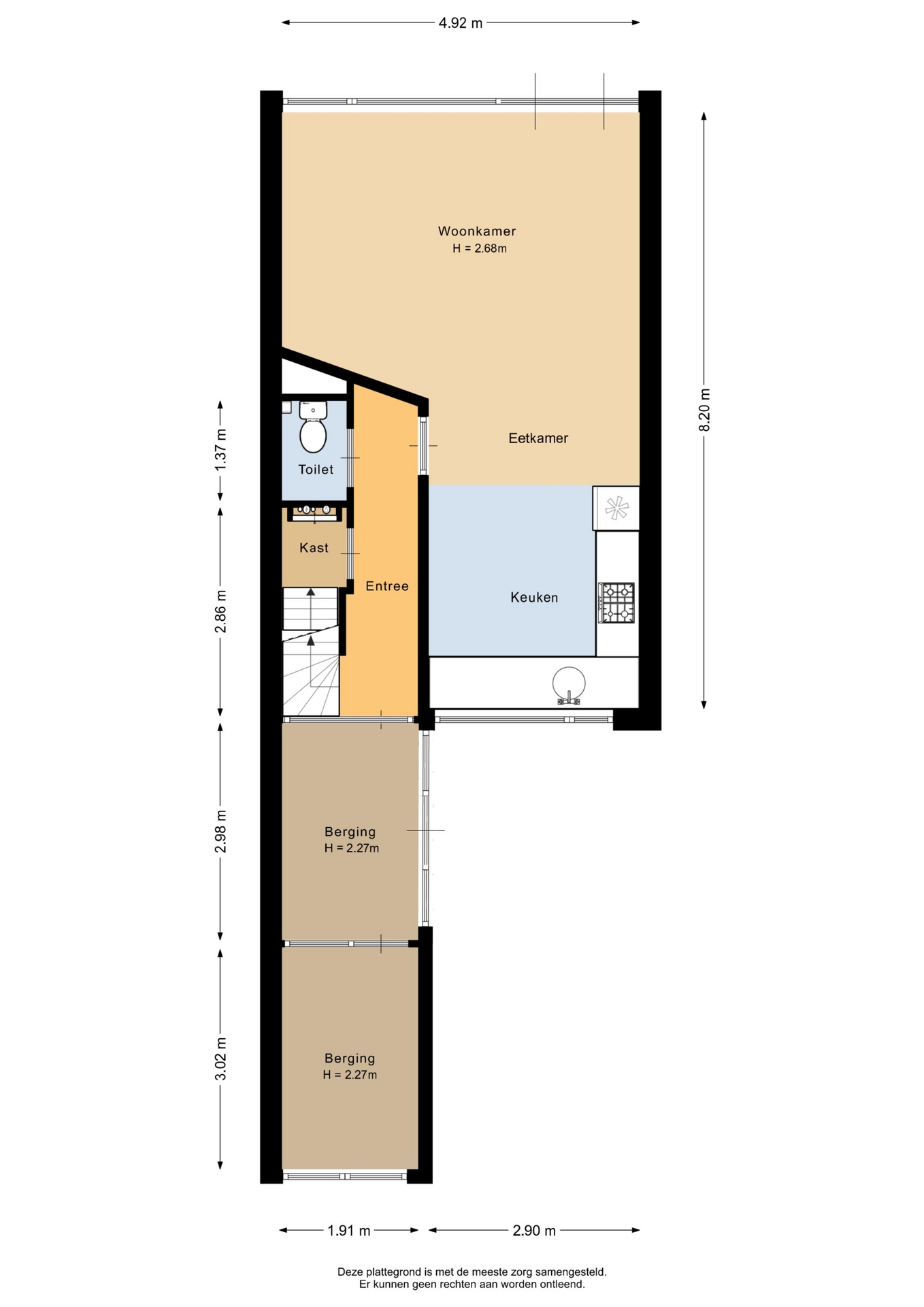
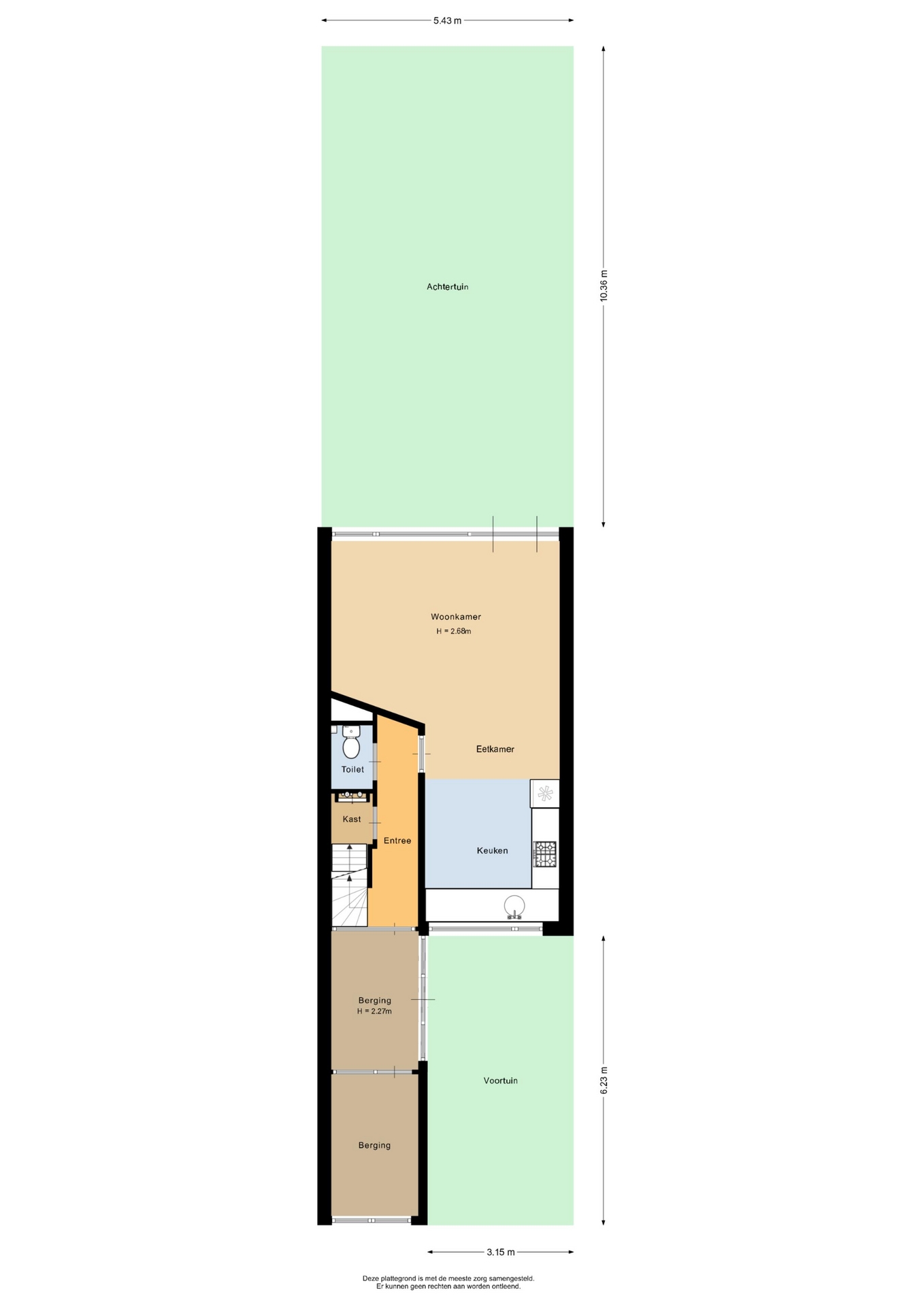
Via de voortuin en overdekte entree stap je binnen in de hal, waar je toegang hebt tot het toilet, de trapopgang en de doorzonwoonkamer. De woonkamer is licht dankzij de grote ramen aan voor- en achterzijde. De keuken ligt aan de voorzijde. Deze ruimte is nu eenvoudig, maar biedt veel mogelijkheden voor een moderne open keukenopstelling of juist een praktische hoekkeuken.

Op de eerste verdieping zijn twee slaapkamers te vinden. De grootste slaapkamer ligt aan de achterzijde van het huis, de tweede slaapkamer bevindt zich aan de voorzijde. Beide kamers zijn voorzien van daglicht en hebben een fijne maatvoering. De badkamer is uitgerust met een douchecabine, wastafelmeubel en radiator. Ook deze ruimte vraagt om een frisse update, maar vormt qua basis een prima vertrekpunt.

De zolderverdieping is via een vaste trap bereikbaar. Hier vind je een overloop met de opstelling van de CV-ketel en een grote zolderkamer onder het schuine dak. Deze verdieping leent zich uitstekend voor een extra slaapkamer, werkruimte of hobbykamer. Met een dakkapel maak je hier écht iets bijzonders van.

BUITEN GENIETEN EN CENTRAAL WONEN
De achtertuin ligt op het noordwesten. Ondanks de ligging kun je hier – zeker in de middag en avond – prima van de zon genieten. De tuin biedt volop ruimte om naar eigen smaak in te richten, of je nu gaat voor onderhoudsarm, groen of juist kindvriendelijk.

De buurt is rustig, met voldoende parkeergelegenheid en veel openbaar groen in de directe omgeving. Voor gezinnen, starters of stellen die hun eigen thuis willen vormgeven, is dit een fijne plek om te wonen.

CENTRALE LIGGING IN RHOON
Rhoon is een charmant dorp onder de rook van Rotterdam, met een goede mix van rust en voorzieningen. In de directe omgeving van de Margrietstraat vind je winkels voor de dagelijkse boodschappen, scholen, sportverenigingen én goede verbindingen met het openbaar vervoer. Het metrostation van Rhoon ligt op fietsafstand en brengt je in no time naar het centrum van Rotterdam. Ook ben je met de auto zo op de A15 of A29.

Wat Rhoon extra aantrekkelijk maakt, is de groene omgeving: de Rhoonse Grienden, het natuurgebied langs de Oude Maas en het kasteel van Rhoon zorgen voor mooie wandel- en fietsroutes. Kortom, een rustige woonplek met verrassend veel mogelijkheden.

BELANGRIJKSTE KENMERKEN OP EEN RIJ:
- Bouwjaar: 1955
- Ligging: rustige buurt, nabij winkels en openbaar vervoer
- Tuin op het noordwesten
- Woonoppervlakte: 86 m²
- Perceeloppervlakte: 129 m²
- Aantal kamers: 3
- Aantal slaapkamers: 2
- Energielabel: D
- Oplevertermijn: in overleg

Toelichtingsclausule NEN2580:
De Meetinstructie is gebaseerd op de NEN2580. De Meetinstructie is bedoeld om een meer eenduidige manier van meten toe te passen voor het geven van een indicatie van de gebruiksoppervlakte. De Meetinstructie sluit verschillen in meetuitkomsten niet volledig uit, door bijvoorbeeld interpretatieverschillen, afrondingen of beperkingen bij het uitvoeren van de meting.

“Deze informatie is door ons met de nodige zorgvuldigheid samengesteld. Onzerzijds wordt echter geen enkele aansprakelijkheid aanvaard voor enige onvolledigheid, onjuistheid of anderszins, dan wel de gevolgen daarvan. Alle opgegeven maten en oppervlakten zijn indicatief.”

Koopovereenkomst pas rechtsgeldig na ondertekening:
Een mondelinge overeenstemming tussen de particuliere verkoper en de particuliere koper is niet rechtsgeldig. Met andere woorden: er is geen koop. Er is pas sprake van een rechtsgeldige koop als de particuliere verkoper en de particuliere koper de koopovereenkomst hebben ondertekend. Dit vloeit voort uit artikel 7:2 Burgerlijk Wetboek. Een bevestiging van de mondelinge overeenstemming per e-mail of een toegestuurd concept van de koopovereenkomst wordt overigens niet gezien als een 'ondertekende koopovereenkomst'.

Kenmerken

Basiskenmerken

  • Status Beschikbaar
  • Koopsom € 310.000 k.k.
  • Woonoppervlakte ca. 86 m2
  • Aantal slaapkamers 2
  • Bouwjaar 1955

Overdracht

  • Aanvaarding In overleg

Bouwvorm & onderhoud

  • Soort object Tussenwoning
  • Soort woning Eengezinswoning
  • Bouwjaar 1955
  • Soort bouw woonhuis

Oppervlakte & inhoud

  • Gebruiksoppervlakte 86m2
  • Perceeloppervlakte 129m2
  • Inhoud 347m3
  • Aantal kamers 3
  • Aantal slaapkamers 2
  • Aantal woonlagen 3 woonlagen
  • Overige inpandige ruimte 12m2

Energie & installatie

  • Energielabel D
  • Isolatie Muurisolatie, dubbel glas
  • Verwarming Cv ketel
  • Warm water Cv ketel
  • C.v.-ketel type GAS
  • Energie einddatum 2035-08-28

Bergruimte

  • Schuur / berging Aangebouwd steen
  • Voorzieningen Voorzien van elektra

Parkeergelegenheid

  • Parkeerfaciliteiten Openbaar parkeren
  • Garage Geen garage

Dak

  • Soort dak Zadeldak

Overig

  • Onderhoud binnen Matig tot redelijk
  • Onderhoud buiten Matig tot redelijk
  • Bijzonderheden Gedeeltelijk gestoffeerd
  • Permanente bewoning Ja
  • Huidig gebruik Woonruimte
  • Huidige bestemming Woonruimte

Voorzieningen

  • Voorzieningen Tv kabel, natuurlijke ventilatie

Buitenruimte

  • Hoofdtuin ACHTERTUIN
  • Oppervlakte hoofdtuin 56m2
  • Ligging hoofdtuin NOORDWEST
  • Kwaliteit tuin Normaal

Kadastrale gegevens

  • Perceelnummer 2858
  • Perceeloppervlakte 129
Meer kenmerken

Ontdek online wat jouw huis waard is

Met de online waardecheck ontdek je in een paar minuten de geschatte waarde van jouw huis

Online waardecheck

In de buurt

Geïnteresseerd?

Bel met Den Rooijen & Van Herk Makelaars

shape

Stuur een bericht

* Maximaal 255 tekens
privacyverklaring