Rotterdam

Mathenesserlaan  169 A

€ 285.000,- k.k.

Omschrijving

Wonen aan één van de mooiste lanen in het hart van Rotterdam! Dit moderne 2-kamer appartement gelegen op de begane grond combineert comfort en een toplocatie. Gelegen in een karakteristiek herenhuis biedt dit appartement een unieke kans om te wonen in een klassiek pand met moderne afwerking. Met winkels, restaurants, uitgaansgelegenheden én openbaar vervoer direct om de…

Wonen aan één van de mooiste lanen in het hart van Rotterdam!

Dit moderne 2-kamer appartement gelegen op de begane grond combineert comfort en een toplocatie. Gelegen in een karakteristiek herenhuis biedt dit appartement een unieke kans om te wonen in een klassiek pand met moderne afwerking. Met winkels, restaurants, uitgaansgelegenheden én openbaar vervoer direct om de hoek beleef je het echte stadsleven op zijn best.

TOPLOCATIE
Wonen middenin het bruisende hart van Rotterdam, met tram voor de deur en de metro op slechts 2 minuten loopafstand. Erasmus MC bevindt zich zelfs op 1 minuut lopen. Alles wat je nodig hebt is binnen handbereik.

MODERN EN INSTAPKLAAR
Het appartement is modern afgewerkt. De lichte woonkamer met open keuken is voorzien van moderne apparatuur. De badkamer is uitgevoerd met een moderne douchecabine, wastafel en meubel. Dit appartement is per direct te betrekken.

KARAKTER EN COMFORT
Het appartement maakt deel uit van een royaal en karakteristiek herenhuis met authentieke details. De gezamenlijke entree en opgang zijn luxe afgewerkt en geven een stijlvolle eerste indruk.

BERGING IN DE KELDER
Gelegen op de begane grond, met een eigen inpandige berging in de kelder. Ideaal voor het opbergen van fietsen, koffers of voorraad.

KENMERKEN
- Eigen grond;
- Bouwjaar 1901;
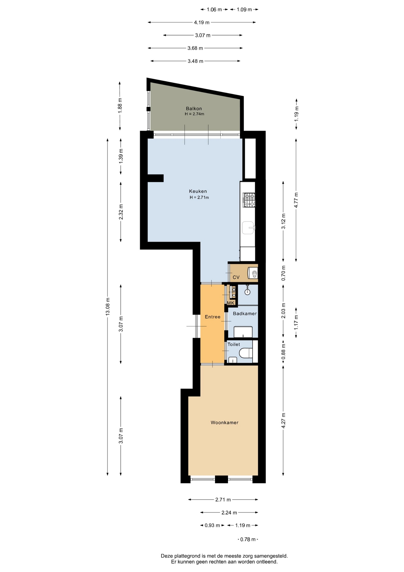
- Woonoppervlakte ca. 38 m²;
- Buitenruimte van ca. 5 m²;
- Voorzien van dubbel glas;
- Energielabel: C;
- Actieve VvE met een maandelijkse bijdragen van ca. € 47,-;
- Eigen berging;
- Ouderdoms- en niet-zelfbewoningsclausule van toepassing;
- Oplevering in overleg, is mogelijk op zeer korte termijn.

INTERESSE? MAAK DAN SNEL EEN AFSPRAAK!
Ons advies is om bij het kopen van jouw nieuwe woning jouw eigen NVM makelaar mee te nemen.

TOELICHTINGSCLAUSULE NEN2580
De Meetinstructie is gebaseerd op de NEN2580. De Meetinstructie is bedoeld om een meer eenduidige manier van meten toe te passen voor het geven van een indicatie van de gebruiksoppervlakte. De Meetinstructie sluit verschillen in meetuitkomsten niet volledig uit, door bijvoorbeeld interpretatieverschillen, afrondingen of beperkingen bij het uitvoeren van de meting.

KOOPOVEREENKOMST PAS RECHTSGELDIG NA ONDERTEKENING
Een mondelinge overeenstemming tussen de particuliere verkoper en de particuliere koper is niet rechtsgeldig. Met andere woorden: er is geen koop. Er is pas sprake van een rechtsgeldige koop als de particuliere verkoper en de particuliere koper de koopovereenkomst hebben ondertekend. Dit vloeit voort uit artikel 7:2 Burgerlijk Wetboek. Een bevestiging van de mondelinge overeenstemming per e-mail of een toegestuurd concept van de koopovereenkomst wordt overigens niet gezien als een 'ondertekende koopovereenkomst'

Kenmerken

Basiskenmerken

  • Status Beschikbaar
  • Koopsom € 285.000 k.k.
  • Woonoppervlakte ca. 38 m2
  • Aantal slaapkamers 1
  • Bouwjaar 1901

Overdracht

  • Aanvaarding Direct

Bouwvorm & onderhoud

  • Bouwjaar 1901
  • Soort bouw woonhuis
  • Ligging In centrum, in woonwijk

Oppervlakte & inhoud

  • Gebruiksoppervlakte 38m2
  • Inhoud 136m3
  • Aantal kamers 2
  • Aantal slaapkamers 1
  • Aantal woonlagen 1 woonlagen

Energie & installatie

  • Energielabel A
  • Isolatie Dubbel glas
  • Verwarming Cv ketel
  • Warm water Cv ketel
  • C.v.-ketel type GAS
  • Energie einddatum 04-11-2035

Bergruimte

  • Schuur / berging Box

Parkeergelegenheid

  • Parkeerfaciliteiten Openbaar parkeren, betaald parkeren, parkeervergunningen
  • Garage Geen garage

Dak

  • Soort dak Plat dak

Overig

  • Onderhoud binnen Goed
  • Onderhoud buiten Goed
  • Permanente bewoning Ja
  • Huidig gebruik Woonruimte
  • Huidige bestemming Woonruimte

Voorzieningen

  • Voorzieningen Natuurlijke ventilatie

Kadastrale gegevens

  • Perceelnummer 3951
Meer kenmerken
Ontdek online wat jouw huis waard is

Met de online waardecheck ontdek je in een paar minuten de geschatte waarde van jouw huis

Online waardecheck

In de buurt

Geïnteresseerd?

Bel met Den Rooijen & Van Herk Makelaars

shape

Stuur een bericht

* Maximaal 255 tekens
privacyverklaring