Hoogvliet Rotterdam

Meeuwenwetering  34

€ 339.000,- k.k.

Omschrijving

MEEUWENWETERING 34 – HOEKHUIS MET GARAGE, CARPORT EN RUIME KAVEL Ben je starter en op zoek naar een huis met net wat meer ruimte dan gemiddeld? Dan is deze nette hoekwoning aan de Meeuwenwetering zeker het bekijken waard. Het huis staat op een perceel van maar liefst 207 m² eigen grond en beschikt over een vrijstaande garage, een lange oprit en een carport waar meerdere…

MEEUWENWETERING 34 – HOEKHUIS MET GARAGE, CARPORT EN RUIME KAVEL

Ben je starter en op zoek naar een huis met net wat meer ruimte dan gemiddeld? Dan is deze nette hoekwoning aan de Meeuwenwetering zeker het bekijken waard. Het huis staat op een perceel van maar liefst 207 m² eigen grond en beschikt over een vrijstaande garage, een lange oprit en een carport waar meerdere auto’s kunnen staan.

Binnen vind je een lichte woonkamer, een open keuken, twee ruime slaapkamers en een praktische wasruimte. Buiten heb je een fijne achtertuin en door de hoekligging geniet je van extra ruimte en privacy rondom het huis.

LICHTE WOONKAMER MET RUIMTE VOOR ZITHOEK EN EETTAFEL
Via de entree kom je binnen in de hal met meterkast, toilet en trapopgang naar de eerste verdieping. Vanuit de hal loop je door naar de woonkamer.

De woonkamer is een fijne en lichte ruimte dankzij de grote raampartijen aan zowel de voor- als achterzijde. Hierdoor komt er gedurende de dag veel natuurlijk licht binnen. De ruimte biedt volop mogelijkheden om een comfortabele zithoek te creëren aan de voorzijde en een gezellige eethoek richting de tuin.

De woonkamer staat in open verbinding met de keuken aan de achterzijde van het huis. Dit zorgt voor een prettige indeling waarbij koken en wonen mooi samenkomen.

De keuken is praktisch ingericht en voorzien van diverse kastruimte en werkblad. Vanuit de keuken heb je direct toegang tot de achtertuin.

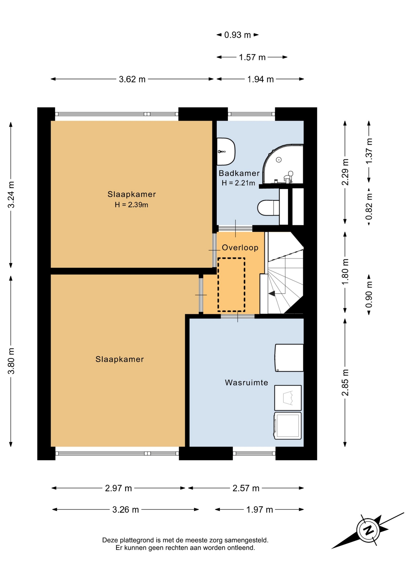
TWEE RUIME SLAAPKAMERS EN BADKAMER
Op de eerste verdieping kom je op de overloop die toegang geeft tot de verschillende vertrekken.

Aan de achterzijde ligt de grootste slaapkamer. Deze kamer biedt voldoende ruimte voor een tweepersoonsbed en een grote kledingkast. Dankzij het raam aan de achterzijde is ook deze kamer prettig licht.

Aan de voorzijde bevindt zich de tweede slaapkamer. Deze kamer is ideaal als logeerkamer, werkkamer of kinderkamer.

De badkamer is praktisch ingericht en voorzien van een douche, wastafel en een tweede toilet. Dankzij het raam is er natuurlijk daglicht en ventilatie aanwezig.

Daarnaast is er op deze verdieping een aparte wasruimte, waar plaats is voor de wasmachine, droger en extra opslag.

RUIME TUIN EN GARAGE MET CARPORT
Een van de grote pluspunten van dit huis is de buitenruimte. Het perceel van 207 m² eigen grond zorgt voor een ruime achtertuin waar je verschillende zitplekken kunt creëren.

De tuin is bereikbaar via de woning en via de achterom. Achterin de tuin staat de vrijstaande garage en deze biedt voldoende ruimte voor het stallen van een auto, fietsen of gereedschap.

Langs de zijkant van het huis ligt de lange oprit met carport, waar meerdere auto’s op eigen terrein kunnen worden geparkeerd. Dit maakt het huis extra aantrekkelijk voor mensen die graag hun auto op eigen grond parkeren.

FIJNE EN RUSTIGE WOONOMGEVING
De Meeuwenwetering ligt in een rustige woonwijk in Hoogvliet. Het is een prettige buurt met voornamelijk eengezinswoningen en veel groen in de omgeving.

In de directe omgeving vind je diverse voorzieningen zoals supermarkten, winkels, scholen en sportverenigingen. Ook het winkelcentrum van Hoogvliet is goed bereikbaar.

Voor ontspanning en recreatie kun je terecht in de omliggende parken en natuurgebieden. Daarnaast zijn er goede verbindingen met het openbaar vervoer, waaronder metroverbindingen richting Rotterdam. Met de auto bereik je snel de uitvalswegen richting Rotterdam, Spijkenisse en de A15.

Kortom: een fijne plek om te wonen met alle voorzieningen binnen handbereik.

KENMERKEN OP EEN RIJ:
- Woonoppervlakte: 82 m²
- Perceeloppervlakte: 207 m²
- Bouwjaar: 1956
- Inhoud: 343 m³
- Energielabel: E
- Volledig v.v. dubbel glas
- Vrijstaande garage
- Carport en oprit voor meerdere auto’s
- Aanvaarding: in overleg.

Oplevering: in overlegToelichtingsclausule NEN2580:
De Meetinstructie is gebaseerd op de NEN2580. De Meetinstructie is bedoeld om een meer eenduidige manier van meten toe te passen voor het geven van een indicatie van de gebruiksoppervlakte. De Meetinstructie sluit verschillen in meetuitkomsten niet volledig uit, door bijvoorbeeld interpretatieverschillen, afrondingen of beperkingen bij het uitvoeren van de meting.

“Deze informatie is door ons met de nodige zorgvuldigheid samengesteld. Onzerzijds wordt echter geen enkele aansprakelijkheid aanvaard voor enige onvolledigheid, onjuistheid of anderszins, dan wel de gevolgen daarvan. Alle opgegeven maten en oppervlakten zijn indicatief.”

Koopovereenkomst pas rechtsgeldig na ondertekening:
Een mondelinge overeenstemming tussen de particuliere verkoper en de particuliere koper is niet rechtsgeldig. Met andere woorden: er is geen koop. Er is pas sprake van een rechtsgeldige koop als de particuliere verkoper en de particuliere koper de koopovereenkomst hebben ondertekend. Dit vloeit voort uit artikel 7:2 Burgerlijk Wetboek. Een bevestiging van de mondelinge overeenstemming per e-mail of een toegestuurd concept van de koopovereenkomst wordt overigens niet gezien als een 'ondertekende koopovereenkomst'.

Kenmerken

Basiskenmerken

  • Status Onder bod
  • Koopsom € 339.000 k.k.
  • Woonoppervlakte ca. 82 m2
  • Aantal slaapkamers 2
  • Bouwjaar 1956

Overdracht

  • Aanvaarding In overleg

Bouwvorm & onderhoud

  • Soort object Hoekwoning
  • Soort woning Eengezinswoning
  • Bouwjaar 1956
  • Soort bouw woonhuis
  • Ligging Aan rustige weg, in woonwijk, beschutte ligging

Oppervlakte & inhoud

  • Gebruiksoppervlakte 82m2
  • Perceeloppervlakte 207m2
  • Inhoud 343m3
  • Aantal kamers 4
  • Aantal slaapkamers 2
  • Aantal woonlagen 3 woonlagen
  • Overige inpandige ruimte 8m2

Energie & installatie

  • Energielabel E
  • Isolatie Dakisolatie, dubbel glas
  • Verwarming Cv ketel
  • Warm water Cv ketel
  • C.v.-ketel type GAS
  • C.v.-ketel bouwjaar 2006
  • Energie einddatum 04-04-2028

Parkeergelegenheid

  • Parkeerfaciliteiten Op eigen terrein
  • Garage Vrijstaand steen, carport

Dak

  • Soort dak Zadeldak

Overig

  • Onderhoud binnen Goed
  • Onderhoud buiten Goed
  • Bijzonderheden Gedeeltelijk gestoffeerd
  • Permanente bewoning Ja
  • Huidig gebruik Woonruimte
  • Huidige bestemming Woonruimte

Voorzieningen

  • Voorzieningen Tv kabel, buitenzonwering, glasvezel kabel, natuurlijke ventilatie

Buitenruimte

  • Hoofdtuin ACHTERTUIN
  • Oppervlakte hoofdtuin 61m2
  • Ligging hoofdtuin ZUIDOOST
  • Kwaliteit tuin Normaal

Kadastrale gegevens

  • Perceelnummer 955
  • Perceeloppervlakte 207 m2
Meer kenmerken
Ontdek online wat jouw huis waard is

Met de online waardecheck ontdek je in een paar minuten de geschatte waarde van jouw huis

Online waardecheck

In de buurt

Geïnteresseerd?

Bel met Den Rooijen & Van Herk Makelaars

shape

Stuur een bericht

* Maximaal 255 tekens
privacyverklaring