Rotterdam

Merkelbachstraat 49

€ 499.000,- k.k.

Omschrijving

MODERN EN RUIM GEZINSHUIS MET OPRIT EN TUIN Welkom op de Merkelbachstraat 49 – een verrassend ruime en instapklare eengezinswoning met een eigen oprit, moderne afwerking en diepe tuin op het noordoosten. Deze gezinsvriendelijke woning is gelegen in een rustige straat in een kindvriendelijke woonwijk, en biedt drie volwaardige woonlagen met volop ruimte om te wonen, werken…

MODERN EN RUIM GEZINSHUIS MET OPRIT EN TUIN
Welkom op de Merkelbachstraat 49 – een verrassend ruime en instapklare eengezinswoning met een eigen oprit, moderne afwerking en diepe tuin op het noordoosten. Deze gezinsvriendelijke woning is gelegen in een rustige straat in een kindvriendelijke woonwijk, en biedt drie volwaardige woonlagen met volop ruimte om te wonen, werken en ontspannen.

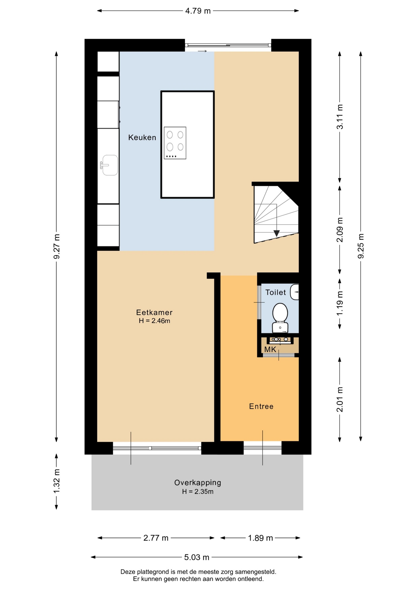
Zodra je binnenkomt, valt de stijlvolle PVC visgraatvloer met vloerverwarming meteen op: strak, sfeervol en onderhoudsvriendelijk. De eetkamer aan de voorzijde heeft grote raampartijen met fijne lichtinval en zicht op het groen van de straat.

De achtertuin ligt op het noordoosten en is diep genoeg om ook in de middag en avond nog zon mee te pakken. Een fijne plek voor een barbecue, een speelplek voor de kinderen of gewoon een goed boek in alle rust.

MODERNE KEUKEN EN LUXE UITSTRALING
Achterin de woning vind je de echte eyecatcher: een moderne en greeploze keuken met kookeiland, uitgevoerd in een strakke donkergrijze tint met warme accenten. Hier is het heerlijk koken én tafelen, met directe toegang tot de tuin via schuifdeuren. De keuken is met zorg en stijl samengesteld: het kookeiland biedt veel werkruimte en opbergruimte, en is voorzien van alle wenselijke inbouwapparatuur.

De begane grond voelt door de doorlopende vloer en open indeling als één geheel: modern, licht en ruim. Aan de voorzijde is er ruimte voor een royale zithoek, met zicht op de oprit en het groen voor de deur. Door de slimme indeling leef je hier met volop privacy.

DRIE SLAAPKAMERS EN EEN BALKON
Op de eerste verdieping bevindt zich over de hele verdieping de woonkamer. Er is gemakkelijk aan de achterzijde een kantoorruimte, tweede zithoek of slaapkamer te creëren.
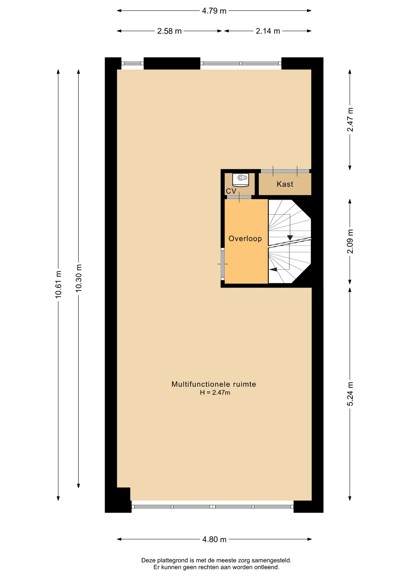
Op de tweede verdieping zijn drie slaapkamers te vinden, allen goed van formaat en lekker licht. De grootste slaapkamer ligt aan de voorzijde en biedt ook toegang tot het balkon, gelegen op het zuidwesten, waar je in de middagzon heerlijk kan zitten. De badkamer en tweede toilet zijn verzorgd en functioneel. Eventueel is er ruimte en potentie om dit naar eigen wens te moderniseren.

FIJNE LOCATIE VOOR HET GEZINSLEVEN
Deze woning ligt op een centrale locatie nabij het Kralingse Bos, winkelcentrum Alexandrium, scholen, openbaar vervoer en uitvalswegen (A16 en A20). De omgeving biedt volop mogelijkheden om te winkelen, sporten en ontspannen, zoals wandelen in het Kralingse Bos (5 min fietsen) . Dankzij de nabijheid van metrostation Oosterflank, bus- en treinstation Alexander en goede snelwegverbindingen is de bereikbaarheid uitstekend.

Parkeren doe je gewoon op je eigen oprit – een luxe die steeds zeldzamer wordt in Rotterdam. De wijk voelt gemoedelijk en ruimtelijk aan, met veel groen en goede voorzieningen in de buurt.

Bijzonderheden:
- Woonoppervlakte: ca. 134m²
- Perceeloppervlakte: ca. 107m²
- 10 zonnepanelen
- Achtertuin op het noordoosten
- Balkon op het zuidwesten
- Bouwjaar: ca. 1995
- Gelegen op eigen grond
- Energielabel A
- 3 slaapkamers
- Oplevering in overleg

INTERESSE? MAAK DAN SNEL EEN AFSPRAAK!
Ons advies is om bij het kopen van je nieuwe huis je eigen NVM-makelaar mee te nemen.

TOELICHTINGSCLAUSULE NEN2580
De Meetinstructie is gebaseerd op de NEN2580. De Meetinstructie is bedoeld om een meer eenduidige manier van meten toe te passen voor het geven van een indicatie van de gebruiksoppervlakte. De Meetinstructie sluit verschillen in meetuitkomsten niet volledig uit, door bijvoorbeeld interpretatieverschillen, afrondingen of beperkingen bij het uitvoeren van de meting.

KOOPOVEREENKOMST PAS RECHTSGELDIG NA ONDERTEKENING
Een mondelinge overeenstemming tussen de particuliere verkoper en de particuliere koper is niet rechtsgeldig. Met andere woorden: er is geen koop. Er is pas sprake van een rechtsgeldige koop als de particuliere verkoper en de particuliere koper de koopovereenkomst hebben ondertekend. Dit vloeit voort uit artikel 7:2 Burgerlijk Wetboek. Een bevestiging van de mondelinge overeenstemming per e-mail of een toegestuurd concept van de koopovereenkomst wordt overigens niet gezien als een 'ondertekende koopovereenkomst'

“Deze informatie is door ons met de nodige zorgvuldigheid samengesteld. Onzerzijds wordt echter geen enkele aansprakelijkheid aanvaard voor enige onvolledigheid, onjuistheid of anderszins, dan wel de gevolgen daarvan. Alle opgegeven maten en oppervlakten zijn indicatief.”

Kenmerken

Basiskenmerken

  • Status Beschikbaar
  • Koopsom € 499.000 k.k.
  • Woonoppervlakte ca. 134 m2
  • Aantal slaapkamers 3
  • Bouwjaar 1995

Overdracht

  • Aanvaarding In overleg

Bouwvorm & onderhoud

  • Soort object Tussenwoning
  • Soort woning Eengezinswoning
  • Bouwjaar 1995
  • Soort bouw woonhuis
  • Ligging Aan rustige weg, in woonwijk, beschutte ligging

Oppervlakte & inhoud

  • Gebruiksoppervlakte 134m2
  • Perceeloppervlakte 107m2
  • Inhoud 436m3
  • Aantal kamers 5
  • Aantal slaapkamers 3
  • Aantal woonlagen 3 woonlagen

Energie & installatie

  • Energielabel A
  • Isolatie Dakisolatie, muurisolatie, vloerisolatie, dubbel glas, volledig geisoleerd
  • Verwarming Cv ketel
  • Warm water Cv ketel
  • C.v.-ketel bouwjaar 2024
  • Energie einddatum 2035-08-14

Parkeergelegenheid

  • Parkeerfaciliteiten Op eigen terrein
  • Garage Geen garage

Dak

  • Soort dak Samengesteld dak

Overig

  • Onderhoud binnen Goed
  • Onderhoud buiten Goed
  • Bijzonderheden Gedeeltelijk gestoffeerd
  • Permanente bewoning Ja
  • Huidig gebruik Woonruimte
  • Huidige bestemming Woonruimte

Voorzieningen

  • Voorzieningen Tv kabel, schuifpui, dakraam, zonnepanelen, natuurlijke ventilatie

Buitenruimte

  • Hoofdtuin ACHTERTUIN
  • Oppervlakte hoofdtuin 38m2
  • Ligging hoofdtuin NOORDOOST
  • Kwaliteit tuin Normaal

Kadastrale gegevens

  • Perceelnummer 2157
  • Perceeloppervlakte 107
Meer kenmerken

Ontdek online wat jouw huis waard is

Met de online waardecheck ontdek je in een paar minuten de geschatte waarde van jouw huis

Online waardecheck

In de buurt

Geïnteresseerd?

Bel met Den Rooijen & Van Herk Makelaars

shape

Stuur een bericht

* Maximaal 255 tekens
privacyverklaring