Oostvoorne

Molendijk  6

€ 1.725.000,- k.k.

Omschrijving

Molendijk 6 in Oostvoorne Uniek wonen met alle comfort en luxe in en om het huis en dat vlakbij het strand! Uitgebouwde en compleet gerenoveerde woonvilla (2012/2013) voorzien van alle comfort en luxe zoals: een luxe open woonkeuken met kookeiland en sfeervolle gashaard, mooi aangelegde tuin met verwarmd zwembad, jacuzzi, zwambadhuis met sauna, bar en douches, buiten…

Molendijk 6 in Oostvoorne

Uniek wonen met alle comfort en luxe in en om het huis en dat vlakbij het strand!

Uitgebouwde en compleet gerenoveerde woonvilla (2012/2013) voorzien van alle comfort en luxe zoals: een luxe open woonkeuken met kookeiland en sfeervolle gashaard, mooi aangelegde tuin met verwarmd zwembad, jacuzzi, zwambadhuis met sauna, bar en douches, buiten bar, 30 zonnepanelen, eigen tennisbaan, weiland, 2 bijgebouwde studio's/appartementen, Engelse kroeg etc. etc.
Naast de woning zijn er 2 appartementen gerealiseerd voorzien van eigen moderne keuken, luxe badkamer met spraak gestuurde bediening en toiletten. Zowel de woning als de appartementen beschikken over airconditioning. Voor de auto of paardenliefhebber is er tevens een schuur van circa 280 m2. Een werkelijk uniek object op 5 minuten van het strand en 25 minuten van Rotterdam!

Het gezellige centrum van Oostvoorne met al haar voorzieningen en horeca bevindt zich op loopafstand. Bovendien liggen het openbaar vervoer, scholen, speelveld, sportaccommodaties en uitvalswegen om de hoek. Oostvoorne vormt een prima uitvalsbasis voor de haven, industrie, Europoort, Maasvlakte en Botlek en ook Rotterdam en Spijkenisse zijn uitstekend te bereiken.
Oostvoorne is gelegen in provincie Zuid-Holland en vormt samen met Rockanje en Tinte de groene en bovenal recreatieve gemeente Westvoorne. Natuurliefhebbers kunnen hier hun hart ophalen met het strand, bossen en duinen in de directe omgeving waar het heerlijk fietsen, wandelen of paardrijden is.

De woning combineert een heerlijke rustige woonomgeving en toch dichtbij het centrum, strand en de natuur.

INDELING:
Entree van het perceel via elektrische hekken met eigen opritten, 1 richting woonhuis en nummer 2 richting loods en tennisbaan. Beide opritten zijn v.v. lichtpunten en elektra.
De oprit richting het huis heeft 6 vaste parkeergelegenheden en brengt u vervolgens langs het zwembad bij het vrijstaande luxe woonhuis.

Begane grond woonvilla:
U betreed de woning via de mooie hal met meterkast, alarmkast, luxe toilet, trapopgang, trapkast, slaapkamer met badkamer en inloopkast en toegang tot de woonkeuken en woonkamer.
Laat u verrassen door de ruime en vooral lichte woonkamer met open leef keuken, openslaande tuindeuren, tegelvloer met vloerverwarming en een mooie houten visgraat vloer in de woonkamer. De woonkamer is rondom voorzien van ramen en een gezellige haard.
De moderne keuken heeft een vaste kastenwand, gashaard, een eiland, en inbouwapparatuur zoals wijnkoeler, combi-oven, koel/vriescombinatie, 6-pits losstaand Boretti gasfornuis met grillplaat en dubbele oven, afzuigkap, vaatwasser en stenen spoelbak met Quooker. Het geheel wordt gecompleteerd door een natuurstenen aanrechtblad. Het aanrecht heeft een opbouw servieskast. Begane grond v.v. vloerverwarming en keuken met mechanische ventilatie.
Aan de rechterzijde op de begane grond vind u tevens de hoofdslaapkamer met badkamer ensuite, gashaard, inloopkast met vaste kastenwand en openslaande deuren naar achterterras. De badkamer is v.v. bubbelbad, aparte douche, 2e toilet, nisje met glasplaten voor de handdoeken, mechanische ventilatie en dubbele wastafel.
De slaapkamer op de begane grond, woonkamer en woon-/leef keuken zijn voorzien van airco.

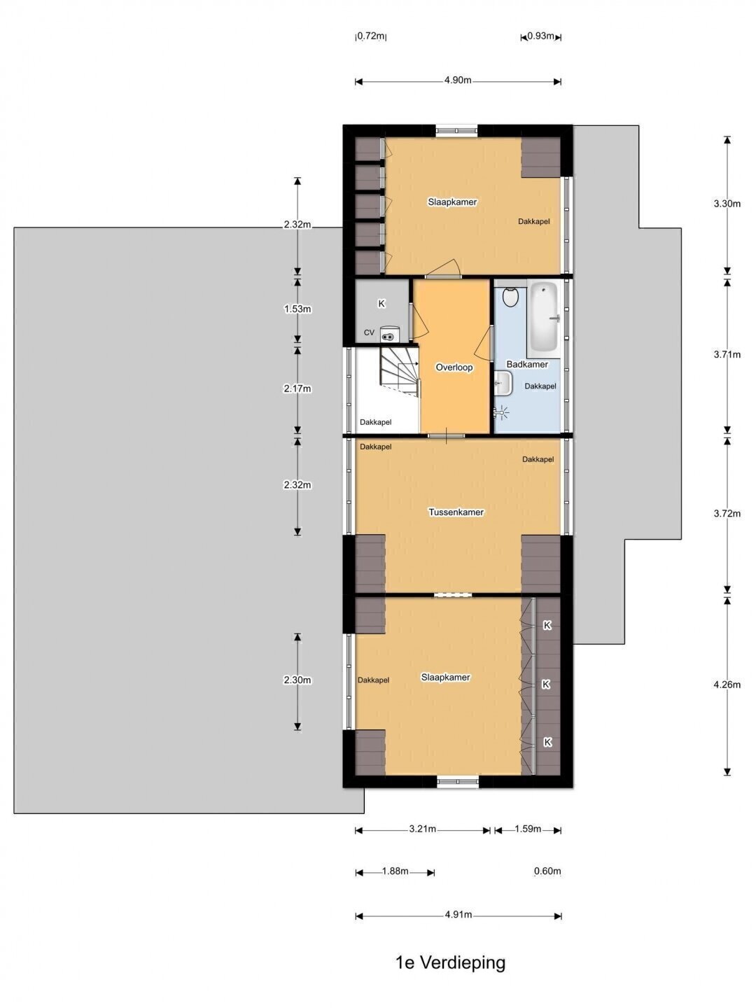
Eerste verdieping:
De centrale overloop geeft toegang tot 2 ruime slaapkamers, de badkamer en cv opstelling in bergkast.
De hoofdslaapkamer van de verdieping ligt aan de linkerzijde, heeft 2 dakkapellen en een kastenkamer.
De 2e slaapkamer is gelegen aan de rechterzijde.
Beide slaapkamers zijn v.v. inbouwkasten onder de schuine wanden, airco en dakkapellen.
De modern en luxe badkamer is v.v. 2e toilet, bubbelbad, inloopdouche, wastafel, spiegel en verlichting.

Tussen woning en bijgebouw is er een patio/riant zonneterras gecreëerd met buitenkeuken, barbecue en spoelbak. vanaf de patio kunt u naar het zwembad, bijgebouw en eetkeuken.

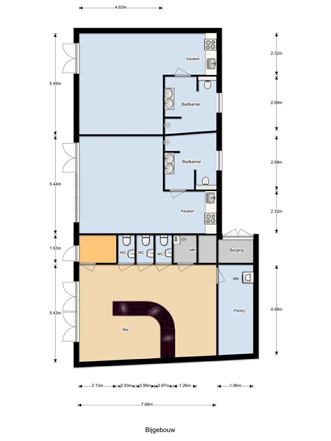
Het bijgebouw bestaat uit 2 appartementen/studio's en een Engelse kroeg.
De bar is v.v. 1 urinoir, 2 toiletten, 1 technische ruimte met cv opstelling en de wasruimte met berging.
Beide studio's zijn in spiegelbeeld gebouwd en v.v. moderne keuken, luxe badkamer, airco, vloerverwarming, dubbele openslaande deuren (naar patio) en een slaap-/woonkamer. Beide keukens zijn v.v. spoelbak, vaatwassers, koelkast met vriesvak en combimagnetron. Beide badkamers zijn v.v. inloopdouche, dubbele spoelbakken en een hangend toilet.

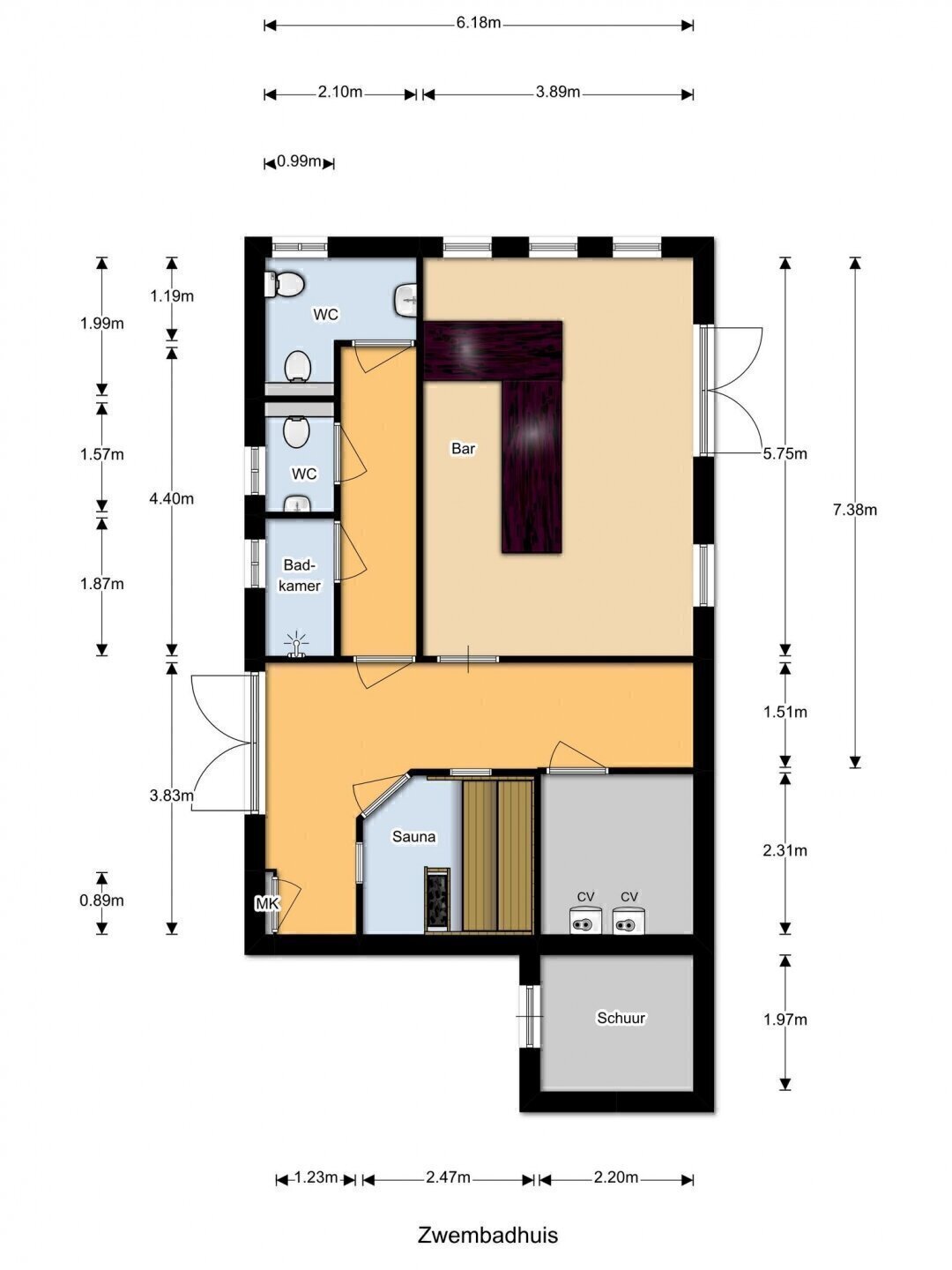
Zwembad-huis/pool house:
In de voortuin ligt een ruim zwembad (10x4 m) met jacuzzi, buiten douche en badhuis. Het badhuis is voorzien van een aparte berging waar de verwarming voor het zwembad en het badhuis plaats vinden, alsmede aan de voor- en achterzijde openslaande deuren.
Achter de interne berging vinden we een 8-persoons sauna v.v. infrarood lampen.
Aan de rechter voorzijde van het badhuis vinden we de zwembad bar (v.v. o.a. koelkast, tap aansluiting).
Achter de bar is er een hal met 2 toiletten (waarvan 1 toilet is v.v. van zwevend toilet en urinoir) en douche.
De achterzijde van het badhuis is voorzien van houten berging voor tuingereedschap.

Het zwembad (1.60 diep) is v.v. verwarming, elektrische afsluitdek en lampen.
De tennisbaan ligt aan de 2e oprit, deze heeft standaard afmetingen en is v.v. verlichting en hekwerk.

Aan het einde van de 2e oprit vindt u nog een stuk grond/weiland van ca. 10.000 m2 en een grote loods van ca. 280 m2 (uitermate geschikt voor houden van paarden).

Om een juist beeld te krijgen van deze bijzondere en complete woonvilla is het verstandig om een vrijblijvende bezichtiging in te plannen.

Bijzonderheden:
- Woonoppervlakte woning: 255m2
- Woonoppervlakte bijgebouwen (appartementen en zwembadhuis): 208m2
- Bouwjaar: 1972
- Volledig gerenoveerd in 2012/2013
- 30 zonnepanelen in 2021
- Hardhouten kozijnen met dubbelglas (HR+)
- Meterkast woonhuis
- Meterkast voor appartement en de bar
- Aparte cv-ketel appartementen en bar
- Vloerverwarming begane grond
- Vloerverwarming bijgebouw
- Badkamer en slaapkamer begane grond aangebouwd (2012)
- Bijgebouw in 2012 herbouwd
- Jacuzzi (2012) bij zwembad
- Zwembad huis (2012) verbouwd
- Zwembad huisje v.v. 2 toiletten, 1 douche, 8 pers. Sauna.
- Zwembad verwarming en verwarming zwembad huis in berging
- Ramen woonkamer v.v. marquise (m.u.v. raam entree)
- Sfeervolle gashaarden (woonkamer en woonkeuken)

Kenmerken

Basiskenmerken

  • Status Beschikbaar
  • Koopsom € 1.725.000 k.k.
  • Woonoppervlakte ca. 463 m2
  • Aantal slaapkamers 4
  • Bouwjaar 1972

Overdracht

  • Aanvaarding In overleg

Bouwvorm & onderhoud

  • Soort object Vrijstaande woning
  • Soort woning Villa
  • Bouwjaar 1972
  • Soort bouw woonhuis
  • Ligging Aan bosrand, aan rustige weg, in woonwijk, vrij uitzicht, open ligging, in bosrijke omgeving

Oppervlakte & inhoud

  • Gebruiksoppervlakte 463m2
  • Perceeloppervlakte 15110m2
  • Inhoud 1711m3
  • Aantal kamers 6
  • Aantal slaapkamers 4
  • Aantal woonlagen 2 woonlagen
  • Overige inpandige ruimte 7m2

Energie & installatie

  • Energielabel C
  • Isolatie Dakisolatie, muurisolatie, vloerisolatie, dubbel glas, volledig geisoleerd, hr glas
  • Verwarming Cv ketel, vloerverwarming gedeeltelijk, gashaard
  • Warm water Cv ketel, gasboiler eigendom
  • C.v.-ketel type GAS
  • C.v.-ketel bouwjaar 2005
  • Energie einddatum 27-10-2033

Bergruimte

  • Schuur / berging Aangebouwd hout
  • Voorzieningen Voorzien van elektra

Parkeergelegenheid

  • Parkeerfaciliteiten Op eigen terrein
  • Garage Vrijstaand hout

Dak

  • Soort dak Samengesteld dak

Overig

  • Onderhoud binnen Goed
  • Onderhoud buiten Goed
  • Bijzonderheden Gedeeltelijk gestoffeerd
  • Permanente bewoning Ja
  • Huidig gebruik Woonruimte
  • Huidige bestemming Woonruimte

Voorzieningen

  • Voorzieningen Mechanische ventilatie, tv kabel, buitenzonwering, zwembad, airconditioning, jacuzzi, rookkanaal, schuifpui, dakraam, glasvezel kabel, zonnepanelen, natuurlijke ventilatie

Buitenruimte

  • Hoofdtuin TUIN_RONDOM
  • Kwaliteit tuin Verzorgd

Kadastrale gegevens

  • Perceelnummer 53
  • Perceeloppervlakte 15110 m2
Meer kenmerken
Ontdek online wat jouw huis waard is

Met de online waardecheck ontdek je in een paar minuten de geschatte waarde van jouw huis

Online waardecheck

In de buurt

Geïnteresseerd?

Bel met Den Rooijen & Van Herk Makelaars

shape

Stuur een bericht

* Maximaal 255 tekens
privacyverklaring