 
                                 
                                         
                                        Rotterdam
Pannekoekstraat 79 B
€ 419.000,- k.k.
Omschrijving
Stadse energie, karakter en comfort - jouw nieuwe thuis midden in het Rotterdamse stadshart Wie op zoek is naar het échte stadsgevoel, hoeft niet verder te kijken. Dit ruime en goed onderhouden appartement aan de geliefde Pannekoekstraat combineert alles wat stedelijk wonen bijzonder maakt: levendigheid beneden, rust en comfort boven. Met een ruime living, twee…
Stadse energie, karakter en comfort - jouw nieuwe thuis midden in het Rotterdamse stadshart
Wie op zoek is naar het échte stadsgevoel, hoeft niet verder te kijken. Dit ruime en goed onderhouden appartement aan de geliefde Pannekoekstraat combineert alles wat stedelijk wonen bijzonder maakt: levendigheid beneden, rust en comfort boven. Met een ruime living, twee slaapkamers, een balkon op de ochtendzon én de mogelijkheid tot een royaal dakterras is dit een woning met toekomstpotentie.
WONEN IN DE PANNEKOEKSTRAAT
De Pannekoekstraat is geen gewone straat - het is een begrip. Bekend om haar creatieve ondernemers, vernieuwende horeca en stadse charme. Of je nu een espresso haalt bij een lokale barista, ’s avonds aanschuift bij één van de vele restaurants, of op zaterdag boodschappen doet op de Binnenrotte of in de Markthal: alles wat Rotterdam bijzonder maakt, ligt letterlijk aan je voeten. Hier woon je tussen de locals, de makers en de levensgenieters.
RUIMTE, LICHT EN EEN SOLIDE BASIS
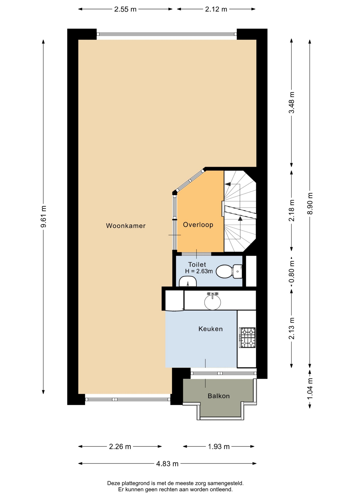
Binnen stap je in een woning die meteen goed voelt: netjes onderhouden, slim ingedeeld en vol daglicht. De ruime woonkamer (ca. 37 m²) met half open keuken vormt het hart van het huis - een fijne plek voor etentjes, borrels of gewoon een rustige avond thuis. De keuken en badkamer zijn eenvoudig, maar verzorgd en functioneel. Ideaal voor wie direct wil intrekken, en tegelijk mogelijkheden ziet om de woning naar eigen smaak te moderniseren. Twee comfortabele slaapkamers maken het geheel compleet.
HET DAK OP: POTENTIE VOOR JOUW EIGEN STADSDROOM
Het dak biedt een kans die je niet vaak ziet in hartje stad: de mogelijkheid voor een privé dakterras. Creëer een groene stadsoase met loungestoelen, een eettafel onder de zon en uitzicht over de skyline van Rotterdam. Een toevoeging die niet alleen het woonplezier verhoogt, maar ook de waarde van de woning versterkt.
BEREIKBAARHEID EN GEMAKT: ALLES KLOPT HIER
Wonen in de Stadsdriehoek betekent: overal dichtbij. Station Blaak ligt op loopafstand, Rotterdam Centraal is binnen 7 minuten fietsen te bereiken en met de auto rijd je in no-time de A13, A16 of A20 op. Parkeren kan via een bewonersvergunning of in één van de nabijgelegen parkeergarages. De woning is aangesloten op stadsverwarming, voorzien van HR++ glas en onderdeel van een kleine doch actieve VvE. 
KENMERKEN
- Eigen grond
- Gebruiksoppervlak: ca. 89 m²
- Bouwjaar: 1954
- Eigen entree aan straatzijde
- Verwarming via stadsverwarming, warm water via centrale voorziening
- Grotendeels houten kozijnen met (alles) HR++ beglazing
- Actieve VvE, bijdrage: € 245,25 p/m
- Mogelijkheid tot twee parkeervergunningen
- Nabij diverse parkeergarages
- Uitstekende bereikbaarheid via A16/A13/A20
- Openbaar vervoer (trein, metro, tram) op loopafstand
- Ouderdomsclausule van toepassing
- Oplevering in overleg, kan snel
INTERESSE? MAAK DAN SNEL EEN AFSPRAAK!
Ons advies is om bij het kopen van jouw nieuwe woning jouw eigen NVM makelaar mee te nemen. 
TOELICHTINGSCLAUSULE NEN2580
De Meetinstructie is gebaseerd op de NEN2580. De Meetinstructie is bedoeld om een meer eenduidige manier van meten toe te passen voor het geven van een indicatie van de gebruiksoppervlakte. De Meetinstructie sluit verschillen in meetuitkomsten niet volledig uit, door bijvoorbeeld interpretatieverschillen, afrondingen of beperkingen bij het uitvoeren van de meting.
KOOPOVEREENKOMST PAS RECHTSGELDIG NA ONDERTEKENING
Een mondelinge overeenstemming tussen de particuliere verkoper en de particuliere koper is niet rechtsgeldig. Met andere woorden: er is geen koop. Er is pas sprake van een rechtsgeldige koop als de particuliere verkoper en de particuliere koper de koopovereenkomst hebben ondertekend. Dit vloeit voort uit artikel 7:2 Burgerlijk Wetboek. Een bevestiging van de mondelinge overeenstemming per e-mail of een toegestuurd concept van de koopovereenkomst wordt overigens niet gezien als een 'ondertekende koopovereenkomst'
“Deze informatie is door ons met de nodige zorgvuldigheid samengesteld. Onzerzijds wordt echter geen enkele aansprakelijkheid aanvaard voor enige onvolledigheid, onjuistheid of anderszins, dan wel de gevolgen daarvan. Alle opgegeven maten en oppervlakten zijn indicatief.”
Kenmerken
Basiskenmerken
- Status Beschikbaar
- Koopsom € 419.000 k.k.
- Woonoppervlakte ca. 89 m2
- Aantal slaapkamers 2
- Bouwjaar 1954
Overdracht
- Aanvaarding In overleg
Bouwvorm & onderhoud
- Bouwjaar 1954
- Soort bouw woonhuis
- Ligging In centrum, in woonwijk
Oppervlakte & inhoud
- Gebruiksoppervlakte 89m2
- Inhoud 315m3
- Aantal kamers 3
- Aantal slaapkamers 2
- Aantal woonlagen 2 woonlagen
Energie & installatie
- Energielabel C
- Isolatie Dakisolatie, dubbel glas, hr glas
- Verwarming Stadsverwarming
- Warm water Stadsverwarming
- Energie einddatum 2030-07-05
Parkeergelegenheid
- Parkeerfaciliteiten Openbaar parkeren, betaald parkeren, parkeervergunningen
- Garage Geen garage
Dak
- Soort dak Plat dak
Overig
- Onderhoud binnen Goed
- Onderhoud buiten Goed
- Bijzonderheden Gedeeltelijk gestoffeerd
- Permanente bewoning Ja
- Huidig gebruik Woonruimte
- Huidige bestemming Woonruimte
Voorzieningen
- Voorzieningen Tv kabel, glasvezel kabel, natuurlijke ventilatie
Kadastrale gegevens
- Perceelnummer 1062
 
            Ontdek online wat jouw huis waard is
Met de online waardecheck ontdek je in een paar minuten de geschatte waarde van jouw huis
Online waardecheck 
                                         
                                         
                                         
                                         
                                         
                                         
                                     
                                     
                                     
                                     
                                     
                                     
                                     
                                     
                                     
                                     
                                     
                                     
                                     
                                     
                                     
                                     
                                     
                                     
                                     
                                     
                                     
                                     
                                     
                                     
                                     
                                     
                                     
                                     
                                     
                                     
                                     
                                     
                                     
                                     
                                    