Rotterdam

Pieter Klapwijkstraat  24

€ 450.000,- k.k.

Omschrijving

*** NIEUW IN DE VERKOOP *** RUIME 4-KAMER EENGEZINSWONING MET ZONNIGE TUIN OP HET ZUIDEN Ben je op zoek naar een ruime eengezinswoning in een rustige en geliefde woonomgeving? Dan is Pieter Klapwijkstraat 24 absoluut een bezichtiging waard. Deze fijne woning ligt in de populaire wijk Rotterdam Prinsenland en beschikt over drie ruime slaapkamers, een nette badkamer, een…

*** NIEUW IN DE VERKOOP ***
RUIME 4-KAMER EENGEZINSWONING MET ZONNIGE TUIN OP HET ZUIDEN
Ben je op zoek naar een ruime eengezinswoning in een rustige en geliefde woonomgeving? Dan is Pieter Klapwijkstraat 24 absoluut een bezichtiging waard. Deze fijne woning ligt in de populaire wijk Rotterdam Prinsenland en beschikt over drie ruime slaapkamers, een nette badkamer, een lichte woonkamer met open keuken en een zonnige achtertuin op het zuiden.

WONEN IN ROTTERDAM PRINSENLAND
De woning is gelegen in de gewilde wijk Prinsenland, een rustige en goed bereikbare woonomgeving. In de directe nabijheid vind je diverse uitvalswegen, openbaar vervoer (metro op ca. 5 minuten afstand), het Prinsenpark en het Kralingse Bos. NS-station Rotterdam Alexander bereik je binnen circa 10 minuten fietsen. Daarnaast liggen winkelcentrum Alexandrium I, II en III en de snelwegen A16 en A20 binnen handbereik. Een ideale combinatie van rust en bereikbaarheid.

INDELING

BEGANE GROND
Via de ruime entree heb je toegang tot alle vertrekken. Hier is voldoende ruimte voor een garderobe en bevindt zich de meterkast. Het toilet is separaat en voorzien van een fonteintje. In de hal vind je tevens de trapopgang met praktische trapkast en de toegang tot de woonkamer en keuken.
De keuken is aan de voorzijde van de woning gelegen en opgesteld in een L-vorm. Deze is voorzien van diverse inbouwapparatuur en biedt voldoende werk- en opbergruimte.
De lichte woonkamer sluit naadloos aan op de keuken en wordt gekenmerkt door grote raampartijen, waardoor er veel natuurlijk licht binnenvalt. Vanuit de woonkamer heb je toegang tot de zonnige achtertuin op het zuiden, die tevens beschikt over een achterom.

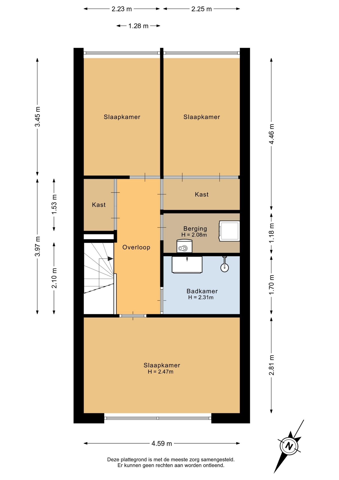
EERSTE VERDIEPING
De overloop geeft toegang tot alle vertrekken. Aan de achterzijde bevinden zich twee slaapkamers van circa 10 m² en 8 m².
De ruime master bedroom ligt aan de voorzijde en strekt zich uit over de volledige breedte van de woning, met een oppervlakte van circa 12 m².
De centraal gelegen badkamer is ruim en verzorgd, en voorzien van een wastafelmeubel en een inloopdouche.
Daarnaast is er een praktische berging met de opstelling van de cv-ketel (2020) en aansluitingen voor de wasmachine en droger.

BIJZONDERHEDEN:
- Ruime tussenwoning;
- 92 m² woonoppervlakte;
- De woning is gelegen op erfpacht grond welke is afgekocht t/m 10-12-2060;
- Het einde van het erfpacht recht loopt tot 13-01-2090;
- Gelegen op 115 m² perceeloppervlakte;
- Ruime open keuken
- 3 slaapkamers aanwezig;
- Moderne badkamer op de verdieping;
- Voorbereiding voor tweede toilet boven is aanwezig;
- Voorbereiding voor eventuele uitbouw is aanwezig;
- Heerlijke, zonnige achtertuin op het zuiden gelegen;
- Verwarming en warmwater middels cv-ketel (2020);
- Energielabel A, welke geldig is tot 23-03-2036;
- Oplevering in overleg.

INTERESSE? MAAK DAN SNEL EEN AFSPRAAK!
Ons advies is om bij het kopen van je nieuwe huis je eigen NVM-makelaar mee te nemen.

TOELICHTINGSCLAUSULE NEN2580:
De Meetinstructie is gebaseerd op de NEN2580. De Meetinstructie is bedoeld om een meer eenduidige manier van meten toe te passen voor het geven van een indicatie van de gebruiksoppervlakte. De Meetinstructie sluit verschillen in meetuitkomsten niet volledig uit, door bijvoorbeeld interpretatieverschillen, afrondingen of beperkingen bij het uitvoeren van de meting.

“Deze informatie is door ons met de nodige zorgvuldigheid samengesteld. Onzerzijds wordt echter geen enkele aansprakelijkheid aanvaard voor enige onvolledigheid, onjuistheid of anderszins, dan wel de gevolgen daarvan. Alle opgegeven maten en oppervlakten zijn indicatief.”

KOOPOVEREENKOMST PAS RECHTSGELDIG NA ONDERTEKENING:
Een mondelinge overeenstemming tussen de particuliere verkoper en de particuliere koper is niet rechtsgeldig. Met andere woorden: er is geen koop. Er is pas sprake van een rechtsgeldige koop als de particuliere verkoper en de particuliere koper de koopovereenkomst hebben ondertekend. Dit vloeit voort uit artikel 7:2 Burgerlijk Wetboek. Een bevestiging van de mondelinge overeenstemming per e-mail of een toegestuurd concept van de koopovereenkomst wordt overigens niet gezien als een 'ondertekende koopovereenkomst'.

Kenmerken

Basiskenmerken

  • Status Verkocht onder voorbehoud
  • Koopsom € 450.000 k.k.
  • Woonoppervlakte ca. 92 m2
  • Aantal slaapkamers 3
  • Bouwjaar 1992

Overdracht

  • Aanvaarding In overleg

Bouwvorm & onderhoud

  • Soort object Tussenwoning
  • Soort woning Eengezinswoning
  • Bouwjaar 1992
  • Soort bouw woonhuis
  • Ligging Aan rustige weg, in woonwijk

Oppervlakte & inhoud

  • Gebruiksoppervlakte 92m2
  • Perceeloppervlakte 115m2
  • Inhoud 336m3
  • Aantal kamers 4
  • Aantal slaapkamers 3
  • Aantal woonlagen 2 woonlagen

Energie & installatie

  • Energielabel A
  • Isolatie Volledig geisoleerd
  • Verwarming Cv ketel
  • Warm water Cv ketel
  • C.v.-ketel type GAS
  • C.v.-ketel bouwjaar 2020
  • Energie einddatum 23-03-2036

Bergruimte

  • Schuur / berging Vrijstaand kunststof

Parkeergelegenheid

  • Parkeerfaciliteiten Openbaar parkeren
  • Garage Geen garage

Dak

  • Soort dak Plat dak

Overig

  • Onderhoud binnen Goed
  • Onderhoud buiten Goed
  • Bijzonderheden Gedeeltelijk gestoffeerd
  • Permanente bewoning Ja
  • Huidig gebruik Woonruimte
  • Huidige bestemming Woonruimte

Voorzieningen

  • Voorzieningen Mechanische ventilatie, natuurlijke ventilatie

Buitenruimte

  • Hoofdtuin ACHTERTUIN
  • Oppervlakte hoofdtuin 61m2
  • Ligging hoofdtuin ZUID
  • Kwaliteit tuin Fraai aangelegd

Kadastrale gegevens

  • Perceelnummer 5797
  • Perceeloppervlakte 115 m2
Meer kenmerken
Ontdek online wat jouw huis waard is

Met de online waardecheck ontdek je in een paar minuten de geschatte waarde van jouw huis

Online waardecheck

In de buurt