Rotterdam

Rhijnauwensingel  208

€ 335.000,- k.k.

Omschrijving

Fijne en ruime eengezinswoning met zonnige tuin op het zuidwesten Aan de Rhijnauwensingel ligt dit ruime en goed ingedeelde huis met drie slaapkamers, een zonnige achtertuin op het zuidwesten en vrij uitzicht aan de voorzijde. Een plek met alle dagelijkse voorzieningen dichtbij. Dit is zo’n huis waar je als gezin gewoon lekker kunt wonen, zonder gedoe. RUIME WOONKAMER…

Fijne en ruime eengezinswoning met zonnige tuin op het zuidwesten

Aan de Rhijnauwensingel ligt dit ruime en goed ingedeelde huis met drie slaapkamers, een zonnige achtertuin op het zuidwesten en vrij uitzicht aan de voorzijde. Een plek met alle dagelijkse voorzieningen dichtbij. Dit is zo’n huis waar je als gezin gewoon lekker kunt wonen, zonder gedoe.

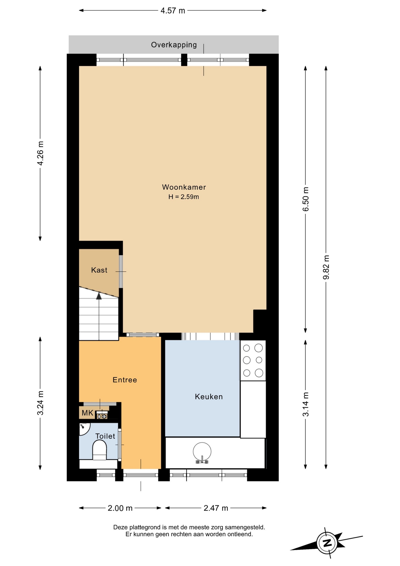
RUIME WOONKAMER EN FIJNE LICHTINVAL
Je komt binnen in de hal met toilet, meterkast en trap naar boven. Vanuit hier loop je door naar de woonkamer. Wat direct opvalt is de ruimte en de fijne lichtinval. De woonkamer is tuingericht en biedt meer dan genoeg plek voor een comfortabele zithoek en een grote eettafel.
De praktische trapkast zorgt voor extra bergruimte, altijd handig. Aan de achterzijde stap je zo de tuin in, waardoor binnen en buiten mooi in elkaar overlopen.
De keuken ligt aan de voorzijde en is via een open doorgang bereikbaar. Deze is netjes en functioneel ingericht, met voldoende werk- en kastruimte. Vanuit de keuken heb je leuk zicht over de straat en het groen.

DRIE SLAAPKAMERS EN COMPLETE BADKAMER
Op de eerste verdieping vind je twee ruime slaapkamers, beide goed van formaat en prettig licht. De grootste kamer ligt aan de achterzijde, de tweede kamer aan de voorzijde. Ideaal als kinderkamer, werkkamer of logeerkamer.
De badkamer is verzorgd en compleet ingericht met een douche, tweede toilet, wastafelmeubel en designradiator. Ook de wasmachine-aansluiting bevindt zich hier, praktisch weggewerkt.
De tweede verdieping biedt nog een derde slaapkamer. Dankzij het dakraam is dit een fijne, lichte ruimte die je flexibel kunt gebruiken. Denk aan een slaapkamer, thuiswerkplek of hobbyruimte. Op de overloop vind je daarnaast de opstelplaats voor de CV-ketel en extra bergruimte.

ZONNIGE ACHTERTUIN OP HET ZUIDWESTEN
De achtertuin is een groot pluspunt van dit huis. Met de ligging op het zuidwesten zit je hier vanaf de middag tot in de avond heerlijk in de zon. Of je nu wilt loungen, eten of borrelen: hier kan het allemaal.
De tuin is van goed formaat en beschikt over een stenen berging, ideaal voor fietsen en tuinspullen. Door de diepte van de tuin heb je voldoende ruimte om het helemaal naar eigen wens in te richten.

RUSTIGE EN GROENE LIGGING MET ALLES DICHTBIJ
De Rhijnauwensingel ligt in de Beverwaard, een wijk die bekend staat om zijn ruime opzet en groene karakter. Je woont hier rustig, met vrij uitzicht en voldoende parkeergelegenheid in de straat.
Op korte afstand vind je winkelcentrum Beverwaard voor de dagelijkse boodschappen. Ook scholen, sportvoorzieningen en openbaar vervoer zijn dichtbij. Met de tram of bus ben je zo in het centrum van Rotterdam. Daarnaast zijn uitvalswegen richting de A15 en A16 snel bereikbaar, waardoor je ook met de auto goed zit.

KENMERKEN:
- Bouwjaar ca. 1980
- Energielabel B
- Woonoppervlakte ca. 120 m²
- Achtertuin op het zuidwesten
- Gelegen aan rustige, groene straat met vrij uitzicht
- Veel natuurlijk lichtinval
- Goede bereikbaarheid
- Gelegen op erfpachtgrond, lopend t/m 30-06-2054, afgekocht t/m 01-10-2052
- Verwarming en warm water via CV-combiketel
- Volledig voorzien van dubbele beglazing in kunststof kozijnen
- Projectnotaris van toepassing
- Oudersom- en niet-zelfbewoningsclausule van toepassing
- Oplevering in overleg, kan snel

INTERESSE? MAAK DAN SNEL EEN AFSPRAAK!
Ons advies is om bij het kopen van jouw nieuwe woning jouw eigen NVM makelaar mee te nemen.

TOELICHTINGSCLAUSULE NEN2580
De Meetinstructie is gebaseerd op de NEN2580. De Meetinstructie is bedoeld om een meer eenduidige manier van meten toe te passen voor het geven van een indicatie van de gebruiksoppervlakte. De Meetinstructie sluit verschillen in meetuitkomsten niet volledig uit, door bijvoorbeeld interpretatieverschillen, afrondingen of beperkingen bij het uitvoeren van de meting.

KOOPOVEREENKOMST PAS RECHTSGELDIG NA ONDERTEKENING
Een mondelinge overeenstemming tussen de particuliere verkoper en de particuliere koper is niet rechtsgeldig. Met andere woorden: er is geen koop. Er is pas sprake van een rechtsgeldige koop als de particuliere verkoper en de particuliere koper de koopovereenkomst hebben ondertekend. Dit vloeit voort uit artikel 7:2 Burgerlijk Wetboek. Een bevestiging van de mondelinge overeenstemming per e-mail of een toegestuurd concept van de koopovereenkomst wordt overigens niet gezien als een 'ondertekende koopovereenkomst'

“Deze informatie is door ons met de nodige zorgvuldigheid samengesteld. Onzerzijds wordt echter geen enkele aansprakelijkheid aanvaard voor enige onvolledigheid, onjuistheid of anderszins, dan wel de gevolgen daarvan. Alle opgegeven maten en oppervlakten zijn indicatief.”

Kenmerken

Basiskenmerken

  • Status Beschikbaar
  • Koopsom € 335.000 k.k.
  • Woonoppervlakte ca. 106 m2
  • Aantal slaapkamers 2
  • Bouwjaar 1980

Overdracht

  • Aanvaarding In overleg

Bouwvorm & onderhoud

  • Soort object Geschakelde woning
  • Soort woning Eengezinswoning
  • Bouwjaar 1980
  • Soort bouw woonhuis
  • Ligging Aan rustige weg, vrij uitzicht, open ligging

Oppervlakte & inhoud

  • Gebruiksoppervlakte 106m2
  • Perceeloppervlakte 92m2
  • Inhoud 373m3
  • Aantal kamers 3
  • Aantal slaapkamers 2
  • Aantal woonlagen 2 woonlagen

Energie & installatie

  • Energielabel B
  • Isolatie Dakisolatie, muurisolatie, vloerisolatie, dubbel glas, volledig geisoleerd
  • Verwarming Cv ketel
  • Warm water Cv ketel
  • C.v.-ketel type GAS
  • Energie einddatum 26-03-2036

Bergruimte

  • Schuur / berging Vrijstaand steen
  • Voorzieningen Voorzien van elektra

Parkeergelegenheid

  • Parkeerfaciliteiten Openbaar parkeren
  • Garage Geen garage

Dak

  • Soort dak Zadeldak

Overig

  • Onderhoud binnen Goed
  • Onderhoud buiten Goed
  • Bijzonderheden Gedeeltelijk gestoffeerd
  • Permanente bewoning Ja
  • Huidig gebruik Woonruimte
  • Huidige bestemming Woonruimte

Voorzieningen

  • Voorzieningen Tv kabel, natuurlijke ventilatie

Buitenruimte

  • Hoofdtuin ACHTERTUIN
  • Oppervlakte hoofdtuin 35m2
  • Ligging hoofdtuin ZUIDOOST
  • Kwaliteit tuin Normaal

Kadastrale gegevens

  • Perceelnummer 3099
  • Perceeloppervlakte 92 m2
Meer kenmerken
Ontdek online wat jouw huis waard is

Met de online waardecheck ontdek je in een paar minuten de geschatte waarde van jouw huis

Online waardecheck

In de buurt

Geïnteresseerd?

Bel met Den Rooijen & Van Herk Makelaars

shape

Stuur een bericht

* Maximaal 255 tekens
privacyverklaring