Ridderkerk

Rijksstraatweg  10

€ 898.800,- k.k.

Omschrijving

Rijksstraatweg 10 – Ridderkerk Charmante en perfect onderhouden vrijstaande jaren ’30 villa met 2 opritten, grote garage/loods en 20 zonnepanelen Aan de markante Rijksstraatweg ligt deze stijlvolle en karaktervolle vrijstaande jaren ’30 villa, perfect onderhouden en gelegen op een ruim perceel van maar liefst 583 m² eigen grond. De woning combineert authentieke charme…

Rijksstraatweg 10 – Ridderkerk
Charmante en perfect onderhouden vrijstaande jaren ’30 villa met 2 opritten, grote garage/loods en 20 zonnepanelen

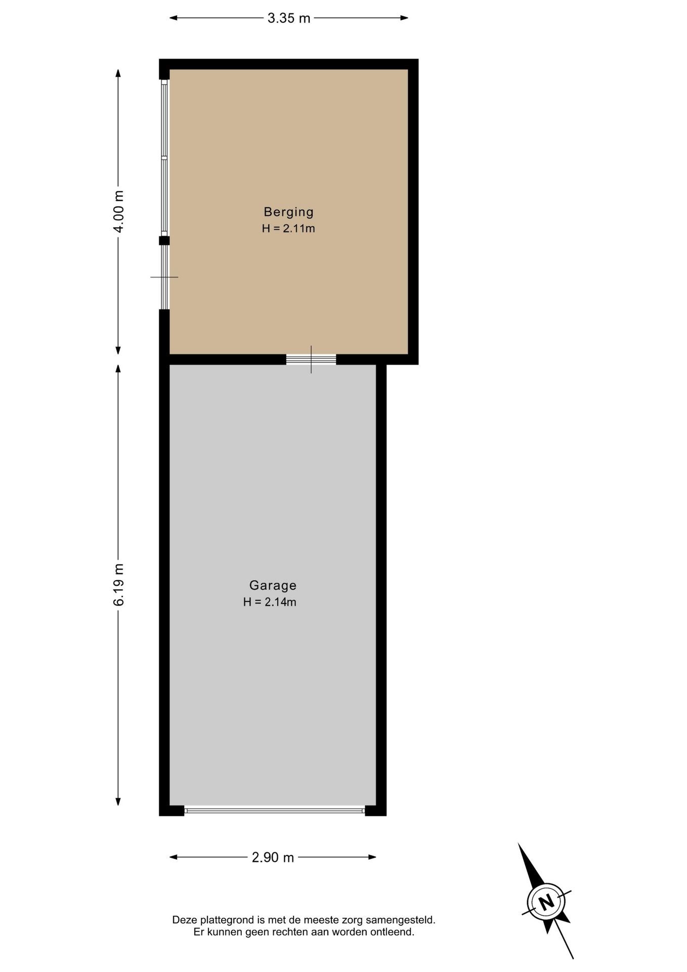
Aan de markante Rijksstraatweg ligt deze stijlvolle en karaktervolle vrijstaande jaren ’30 villa, perfect onderhouden en gelegen op een ruim perceel van maar liefst 583 m² eigen grond. De woning combineert authentieke charme met modern wooncomfort en biedt volop ruimte, privacy en parkeergelegenheid. Met twee opritten, een ruime garage/loods van ca. 33 m² en een diepe, vrij gelegen achtertuin is dit een ideale plek voor wie wonen en werken wil combineren.

De woning ademt de sfeer van de jaren ’30 met prachtige originele details zoals een doorlopende terrazzovloer in de hal, glas-in-lood deuren en een erker aan de voorzijde. Tegelijkertijd is er aandacht geweest voor comfort en duurzaamheid, onder meer door de plaatsing van 20 zonnepanelen, isolatie en een energielabel C.

De ligging is bijzonder aantrekkelijk: groen, rustig en met veel privacy, terwijl voorzieningen en uitvalswegen dichtbij zijn. Op loopafstand vindt u de Waal en het Waalbos, ideaal voor wandelen, sporten en ontspannen. Het grote winkelcentrum, diverse voorzieningen en het NS-station Barendrecht zijn binnen korte tijd bereikbaar en ook de uitvalswegen liggen op slechts enkele minuten afstand. Een plek waar u het gevoel krijgt “uit de stad te onthaasten”, zonder afstand te doen van gemak en bereikbaarheid.

Indeling
Begane grond

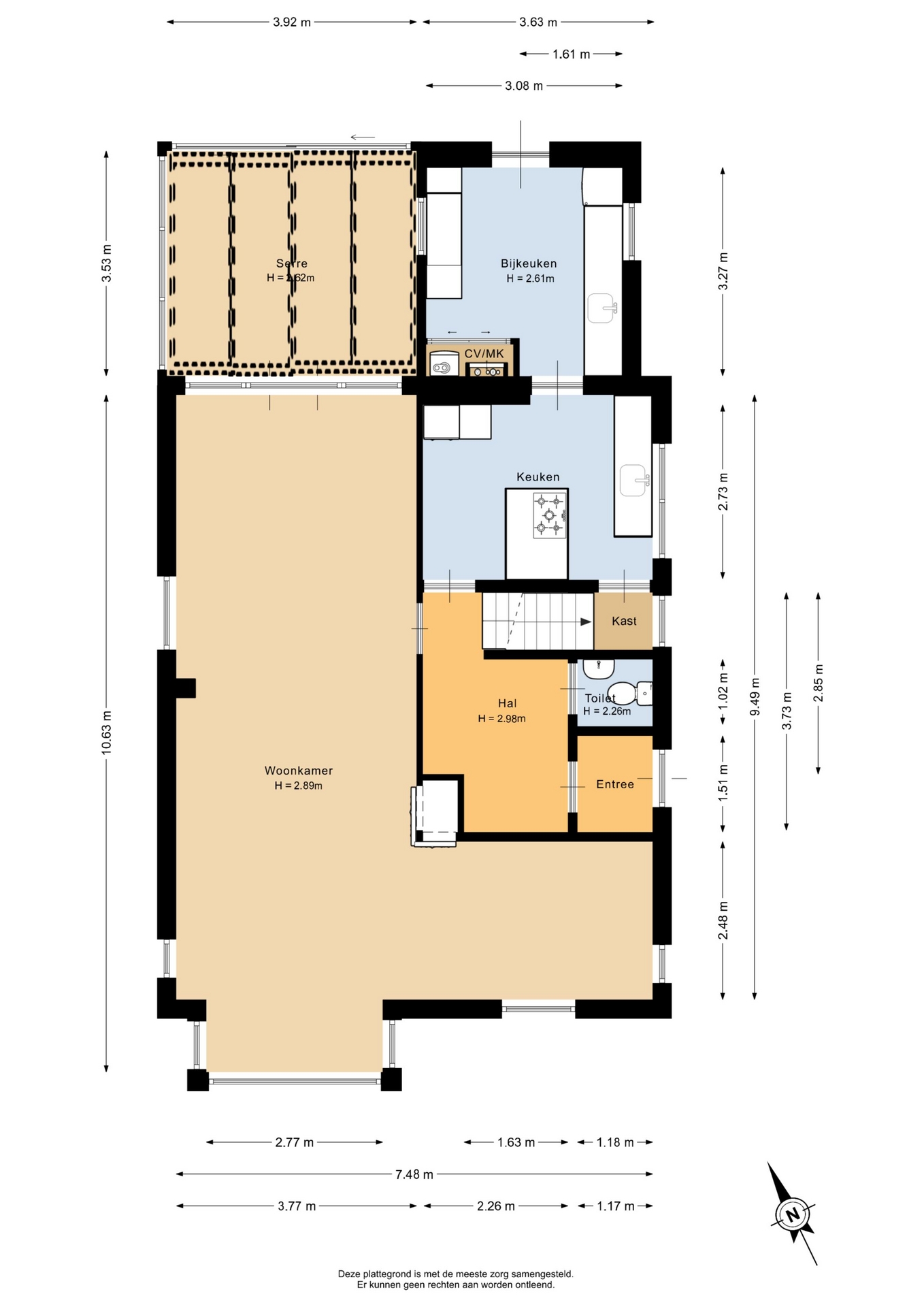
Via de fraaie voordeur in jaren ’30 stijl betreedt u de entree met authentieke wandtegels en een geëtste tussendeur naar de hal. Hier ligt de originele doorlopende terrazzovloer en vindt u een garderobe en een toiletruimte met fonteintje en glas-in-loodraam.

De hal geeft toegang tot de sfeervolle en royale L-vormige woonkamer. Deze ruimte valt direct op door het opvallend hoge plafond, dat zorgt voor een bijzonder ruimtelijk gevoel. De woonkamer beschikt over massief houten vloerdelen, een erker aan de voorzijde, zijramen en een gezellige houtgestookte open haard. Aan de achterzijde zorgen openslaande deuren en een convectorput voor een prettige overgang naar de aangebouwde glazen serre.

De serre vormt een heerlijk verlengstuk van zowel de woonkamer als de tuin. Hier kunt u van ’s morgens vroeg tot in de late uurtjes genieten van het buitengevoel.

De brede en diepe achtertuin is fraai aangelegd, zeer vrij gelegen en biedt veel privacy. Achterin staat een ruime schuur/loods, ideaal als werkruimte, hobbyruimte of extra opslag. Op het dak zijn 20 zonnepanelen geplaatst.

De woning beschikt over twee opritten: een lange eigen oprit aan de rechterzijde en een gedeelde oprit aan de linkerzijde. Hierdoor is er ruim parkeergelegenheid op eigen terrein.

De dichte keuken is uitgevoerd met een luxe eilandopstelling (2020) met zwarte composiet werkbladen en diverse inbouwapparatuur, waaronder een koelkast, vaatwasser, magnetron en een 6-pits Smeg fornuis met dubbele oven. De afzuiging is stijlvol geïntegreerd in het plafond. Ook hier ligt een terrazzovloer, passend bij de authentieke sfeer van de woning.

Vanuit de keuken bereikt u een provisiekelder op stahoogte. Tevens is er toegang tot een ruime bijkeuken/wasruimte met vaste schuifkasten, een keukenblok met spoelbak, daglicht via een raam en een deur naar de tuin. Hier bevindt zich tevens de CV-combiketel en de 3-fase meterkast.

Eerste verdieping

Via een vaste trap bereikt u de ruime Z-vormige overloop met een glas-in-loodraam.

Op deze verdieping bevinden zich:

- een ruime ouderslaapkamer met vaste kast
- een tweede slaapkamer met vaste schuifkast en toegang tot een terras met vlonder aan de achterzijde
- een derde kamer
- een vierde kamer met vaste kast

De luxe badkamer is sfeervol en praktisch ingericht en beschikt over een ruime inloopdouche met glazen wand, hand- en stortdouche, een wastafelmeubel met houten blad, maatwerk opbergkasten en een tweede toilet. Daglicht komt binnen via een dakraam.

Tweede verdieping

Via een vaste trap bereikt u de tweede verdieping met een overloop met dakraam en bergruimte onder de schuine kap.

Hier bevinden zich nog:

- een vijfde slaapkamer met raam
- een zesde kamer met twee openslaande ramen

De verdiepingen zijn voorzien van een laminaatvloer.

Kenmerken

- Bouwjaar 1930
- Vrijstaande jaren ’30 villa met veel karakter
- 20 zonnepanelen
- Energielabel C
- Luxe keuken (2020) met eilandopstelling
- Sfeervolle en luxe badkamer met inloopdouche en tweede toilet
- Provisiekelder en ruime bijkeuken/wasruimte
- Geheel dubbel glas (m.u.v. glas-in-lood)
- Muur- en dakisolatie toegepast
- CV-combiketel Remeha
- 3-fase uitgebreide groepenkast met slimme meters
- Authentieke paneeldeuren, glas-in-lood en terrazzovloeren
- Twee opritten en ruime parkeergelegenheid op eigen terrein
- Riante, vrij gelegen achtertuin met veel privacy
- Groene ligging nabij de Waal en het Waalbos

Kortom: een unieke kans om te wonen in een karaktervolle vrijstaande villa met ruimte, sfeer en moderne voorzieningen, op een prachtige groene locatie in Ridderkerk.

Van der Giessen & Van Herk Makelaars behartigt de belangen van de verkopende partij. Neem uw eigen NVM aankoopmakelaar mee.

Alle verstrekte informatie moet beschouwd worden als een uitnodiging tot het doen van een bod of om in onderhandeling te treden.

Deze informatie is door ons met de nodige zorgvuldigheid samengesteld. Onzerzijds wordt echter geen enkele aansprakelijkheid aanvaard voor enige onvolledigheid, onjuistheid of anderszins, dan wel de gevolgen daarvan. Alle opgegeven maten en oppervlakten zijn indicatief. Van toepassing zijn de NVM voorwaarden.

Koopovereenkomst pas rechtsgeldig na ondertekening:
Een mondelinge overeenstemming tussen de particuliere verkoper en de particuliere koper is niet rechtsgeldig. Met andere woorden: er is geen koop. Er is pas sprake van een rechtsgeldige koop als de particuliere verkoper en de particuliere koper de koopovereenkomst hebben ondertekend. Dit vloeit voort uit artikel 7:2 Burgerlijk Wetboek. Een bevestiging van de mondelinge overeenstemming per e-mail of een toegestuurd concept van de koopovereenkomst wordt overigens niet gezien als een 'ondertekende koopovereenkomst'.

Toelichtingsclausule NEN2580:
De Meetinstructie is gebaseerd op de NEN2580. De meetinstructie is bedoeld om een meer eenduidige manier van meten toe te passen voor het geven van een indicatie van de gebruiksoppervlakte. De meetinstructie sluit verschillen in meetuitkomsten niet volledig uit, door bijvoorbeeld interpretatieverschillen, afrondingen of beperkingen bij het uitvoeren van de meting.

Kenmerken

Basiskenmerken

  • Status Beschikbaar
  • Koopsom € 898.800 k.k.
  • Woonoppervlakte ca. 176 m2
  • Aantal slaapkamers 6
  • Bouwjaar 1930

Overdracht

  • Aanvaarding In overleg

Bouwvorm & onderhoud

  • Soort object Vrijstaande woning
  • Soort woning Villa
  • Bouwjaar 1930
  • Soort bouw woonhuis
  • Ligging Aan rustige weg, in woonwijk, vrij uitzicht

Oppervlakte & inhoud

  • Gebruiksoppervlakte 176m2
  • Perceeloppervlakte 583m2
  • Inhoud 683m3
  • Aantal kamers 7
  • Aantal slaapkamers 6
  • Aantal woonlagen 3 woonlagen
  • Overige inpandige ruimte 8m2

Energie & installatie

  • Energielabel C
  • Isolatie Dakisolatie, muurisolatie, gedeeltelijk dubbel glas
  • Verwarming Cv ketel
  • Warm water Cv ketel
  • C.v.-ketel type GAS
  • C.v.-ketel bouwjaar 2025
  • Energie einddatum 28-11-2032

Bergruimte

  • Schuur / berging Vrijstaand steen
  • Voorzieningen Voorzien van elektra

Parkeergelegenheid

  • Parkeerfaciliteiten Op eigen terrein
  • Garage Vrijstaand steen

Dak

  • Soort dak Zadeldak

Overig

  • Onderhoud binnen Redelijk tot goed
  • Onderhoud buiten Goed
  • Permanente bewoning Ja
  • Huidig gebruik Woonruimte
  • Huidige bestemming Woonruimte

Voorzieningen

  • Voorzieningen Tv kabel, buitenzonwering, rookkanaal, dakraam, zonnepanelen

Buitenruimte

  • Hoofdtuin TUIN_RONDOM
  • Kwaliteit tuin Verzorgd

Kadastrale gegevens

  • Perceelnummer 572
  • Perceeloppervlakte 583 m2
Meer kenmerken
Ontdek online wat jouw huis waard is

Met de online waardecheck ontdek je in een paar minuten de geschatte waarde van jouw huis

Online waardecheck

In de buurt

Geïnteresseerd?

Bel met Den Rooijen & Van Herk Makelaars

shape

Stuur een bericht

* Maximaal 255 tekens
privacyverklaring