Capelle Aan Den Ijssel

Roos van Dekama erf  36

€ 599.000,- k.k.

Omschrijving

- NIEUW IN DE VERKOOP - UNIEKE KANS VOOR EEN VOLUMINEUZE GESCHAKELDE TUSSENWONING AAN DE RAND VAN DE WIJK SCHOLLEVAAR. DE WONING BESCHIKT OVER 172 M² WOONOPPERVLAKTE, 4 SLAAPKAMERS, EEN ZONNIGE TUIN EN EEN GARAGE AAN DE VOORZIJDE. KORTOM EEN HEERLIJK FAMILIEHUIS IN EEN GROENE, BOSRIJKE OMGEVING. GESCHAKELDE TUSSENWONING: De woning beschikt over 172 m² woonoppervlakte…

- NIEUW IN DE VERKOOP -
UNIEKE KANS VOOR EEN VOLUMINEUZE GESCHAKELDE TUSSENWONING AAN DE RAND VAN DE WIJK SCHOLLEVAAR. DE WONING BESCHIKT OVER 172 M² WOONOPPERVLAKTE, 4 SLAAPKAMERS, EEN ZONNIGE TUIN EN EEN GARAGE AAN DE VOORZIJDE. KORTOM EEN HEERLIJK FAMILIEHUIS IN EEN GROENE, BOSRIJKE OMGEVING.

GESCHAKELDE TUSSENWONING:
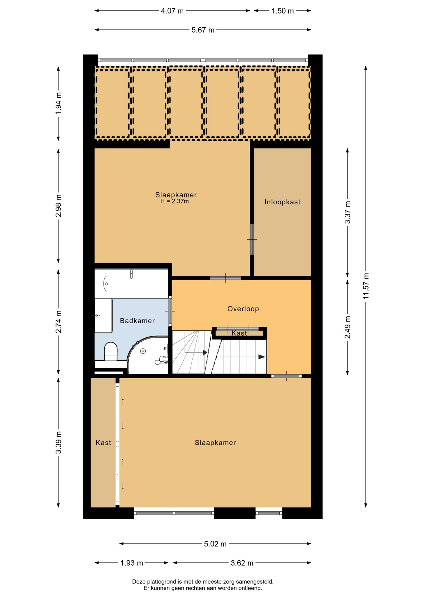
De woning beschikt over 172 m² woonoppervlakte verdeeld over 3 woonlagen. Op de begane grond is aan de voorzijde een ruime keuken met eetkamer te vinden. Vanuit de eetkamer is ook de garage toegankelijk, waar zich de wasmachine en droger bevinden. De tuingerichte woonkamer bevindt zich aan de achterzijde en biedt middels de grote raampartijen een geweldig zicht over de achtertuin en het Schollebos. Op de eerste verdieping zijn 2 slaapkamers en een badkamer. Beide kamer liggen over de volledige breedte van de woning en beschikken over airconditioning. De slaapkamer aan de achterzijde is voorzien van een inloopkast. Op de 2e verdieping zijn ook nog 2 slaapkamer en een ruime berging te vinden. Beide slaapkamers hebben toegang tot een balkon, gesitueerd op het oosten en het westen. Hierdoor is er altijd een plekje in de zon of schaduw te vinden.

HET SCHOLLEBOS GRENST DIRECT AAN DE ACHTERTUIN:
Achter de woning is een heerlijke tuin te vinden, welke op het oosten gesitueerd is. De tuin is gelegen aan het water en biedt een waanzinnig uitzicht over het Schollebos. Hierdoor heb je een ultiem vakantiegevoel het hele jaar door. Door de houten overkapping kan er ook met minder weer van de tuin genoten worden. Via een voetpad sta je binnen 2 minuten in het Schollebos. Hier kan je heerlijk genieten van de natuur en alle rust. Het Schollebos is een prachtig stadsbos dat bekend staat om zijn recreatiemogelijkheden, zoals wandelen, fietsen en picknicken, met diverse paden die door het groene landschap slingeren.

CENTRAAL BIJ ALLE VOORZIENINGEN:
De woning is ideaal gelegen in de levendige en goed bereikbare woonwijk Schollevaar. De wijk kenmerkt zich door de speelse opzet, veel groenvoorziening, veel openbare parkeergelegenheid en diverse winkels voor de dagelijkse boodschappen. Verder is de woning goed bereikbaar middels diverse uitvalswegen, verschillende opstapplaatsen voor openbaar vervoer en op 15 minuten afstand van de metro. De winkelcentra Alexandrium I, II en Capelle XL en de snelweg A20 zijn binnen handbereik.

BIJZONDERHEDEN:
- Bouwjaar 1980;
- 172 m² woonoppervlakte;
- 161 m² perceeloppervlakte;
- Unieke locatie direct aan het Schollebos;
- Zonnige tuin op het oosten;
- 4 ruime slaapkamers;
- De kruipruimte is na geïsoleerd middels parels in 2019;
- Elektrische installatie vernieuwd in 2023;
- Diverse airco's aanwezig;
- Aangebouwde garage met een oppervlakte van 14 m²;
- Verwarming en warm water middels stadsverwarming;
- Ruime voldoende gratis parkeergelegenheid voor de deur;
- Centrale locatie dichtbij voorzieningen;
- Energielabel B, geldig tot 12-08-2035;
- Oplevering in overleg.

IN DEZE PRESENTATIE IS GEBRUIK GEMAAKT VAN IMPRESSIES. AAN DEZE IMPRESSIES KUNNEN GEEN RECHTEN WORDEN ONTLEEND. DEZE DIENEN PER OM TE LATEN ZIEN WAT ER MOGELIJK IS MET DE WONING.

INTERESSE? MAAK DAN SNEL EEN AFSPRAAK!
Ons advies is om bij het kopen van je nieuwe huis je eigen NVM-makelaar mee te nemen.

Toelichtingsclausule NEN2580:
De Meetinstructie is gebaseerd op de NEN2580. De Meetinstructie is bedoeld om een meer eenduidige manier van meten toe te passen voor het geven van een indicatie van de gebruiksoppervlakte. De Meetinstructie sluit verschillen in meetuitkomsten niet volledig uit, door bijvoorbeeld interpretatieverschillen, afrondingen of beperkingen bij het uitvoeren van de meting.

“Deze informatie is door ons met de nodige zorgvuldigheid samengesteld. Onzerzijds wordt echter geen enkele aansprakelijkheid aanvaard voor enige onvolledigheid, onjuistheid of anderszins, dan wel de gevolgen daarvan. Alle opgegeven maten en oppervlakten zijn indicatief.”

Koopovereenkomst pas rechtsgeldig na ondertekening:
Een mondelinge overeenstemming tussen de particuliere verkoper en de particuliere koper is niet rechtsgeldig. Met andere woorden: er is geen koop. Er is pas sprake van een rechtsgeldige koop als de particuliere verkoper en de particuliere koper de koopovereenkomst hebben ondertekend. Dit vloeit voort uit artikel 7:2 Burgerlijk Wetboek. Een bevestiging van de mondelinge overeenstemming per e-mail of een toegestuurd concept van de koopovereenkomst wordt overigens niet gezien als een 'ondertekende koopovereenkomst'.

Kenmerken

Basiskenmerken

  • Status Beschikbaar
  • Koopsom € 599.000 k.k.
  • Woonoppervlakte ca. 172 m2
  • Aantal slaapkamers 4
  • Bouwjaar 1980

Overdracht

  • Aanvaarding In overleg

Bouwvorm & onderhoud

  • Soort object Geschakelde woning
  • Soort woning Herenhuis
  • Bouwjaar 1980
  • Soort bouw woonhuis
  • Ligging Aan bosrand, aan water, aan park, aan rustige weg, in woonwijk, in bosrijke omgeving

Oppervlakte & inhoud

  • Gebruiksoppervlakte 172m2
  • Perceeloppervlakte 161m2
  • Inhoud 622m3
  • Aantal kamers 6
  • Aantal slaapkamers 4
  • Aantal woonlagen 3 woonlagen
  • Overige inpandige ruimte 14m2

Energie & installatie

  • Energielabel B
  • Isolatie Dubbel glas
  • Verwarming Stadsverwarming
  • Warm water Stadsverwarming
  • Energie einddatum 12-08-2035

Parkeergelegenheid

  • Parkeerfaciliteiten Op eigen terrein
  • Garage Aangebouwd steen

Dak

  • Soort dak Zadeldak

Overig

  • Onderhoud binnen Goed
  • Onderhoud buiten Goed
  • Bijzonderheden Gedeeltelijk gestoffeerd
  • Permanente bewoning Ja
  • Huidig gebruik Woonruimte
  • Huidige bestemming Woonruimte

Voorzieningen

  • Voorzieningen Mechanische ventilatie, tv kabel, airconditioning, schuifpui, dakraam, natuurlijke ventilatie

Buitenruimte

  • Hoofdtuin ACHTERTUIN
  • Oppervlakte hoofdtuin 38m2
  • Ligging hoofdtuin OOST
  • Kwaliteit tuin Normaal

Kadastrale gegevens

  • Perceelnummer 835
  • Perceeloppervlakte 161 m2
Meer kenmerken
Ontdek online wat jouw huis waard is

Met de online waardecheck ontdek je in een paar minuten de geschatte waarde van jouw huis

Online waardecheck

In de buurt

Geïnteresseerd?

Bel met Den Rooijen & Van Herk Makelaars

shape

Stuur een bericht

* Maximaal 255 tekens
privacyverklaring