Hellevoetsluis

Rooseveltlaan  7

€ 545.000,- k.k.

Omschrijving

RUIMTE, LICHT EN COMFORT IN DE RAVENSE HOEK In de gewilde wijk Ravense Hoek staat deze ruime en modern afgewerkte hoekwoning op een perceel van maar liefst 239 m² eigen grond. Met een royale achtertuin, een ruime stenen garage van 23 m², een modern uitgevoerde keuken (2023) én een dakterras, biedt deze woning een fijne combinatie van ruimte, comfort en potentie. Dankzij…

RUIMTE, LICHT EN COMFORT IN DE RAVENSE HOEK
In de gewilde wijk Ravense Hoek staat deze ruime en modern afgewerkte hoekwoning op een perceel van maar liefst 239 m² eigen grond. Met een royale achtertuin, een ruime stenen garage van 23 m², een modern uitgevoerde keuken (2023) én een dakterras, biedt deze woning een fijne combinatie van ruimte, comfort en potentie. Dankzij het energielabel A, recente schilderwerk (2025) en vernieuwde vloerafwerkingen is veel al gedaan – enkel de badkamer en het toilet zijn nog in originele staat en kunnen naar eigen smaak worden gemoderniseerd.

RUIMTELIJK WONEN MET VEEL COMFORT
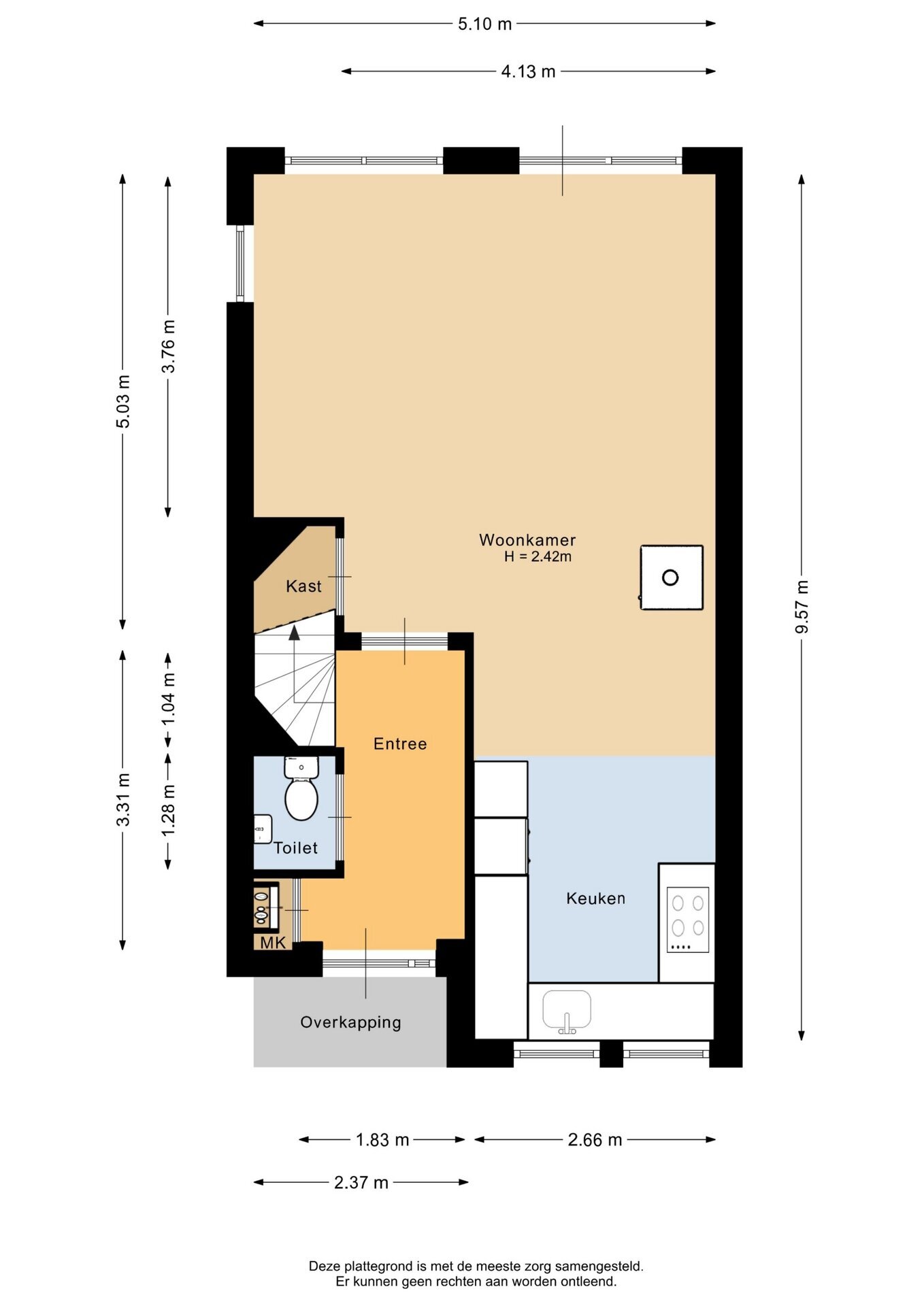
Bij binnenkomst op de begane grond valt direct de open indeling op. De moderne keuken aan de voorzijde is uitgevoerd in een stijlvolle kleurstelling en uitgerust met alle gewenste en moderne inbouwapparatuur. Denk hierbij aan een inductie kookplaat met geïntrigeerde afzuiging, combi-oven, vaatwasser, koelkast, vriezer en een Quooker. Door de ligging aan de straatzijde heb je hier prettig lichtinval, terwijl je aan de achterzijde heerlijk in alle rust kunt zitten. De woonkamer is sfeervol ingericht met onder andere een houtkachel en een fraaie laminaatvloer (2024). De grote raampartijen verbinden de leefruimte direct met de diepe achtertuin.

Op de eerste verdieping zijn nu twee kamers ingericht, waarvan de grote slaapkamer toegang heeft naar het ruime dakterras. Deze verdieping is eenvoudig weer terug te brengen naar de oorspronkelijke indeling met drie (slaap)kamers. De badkamer is functioneel ingedeeld met een ligbad, aparte douche, wastafel en een raam voor natuurlijke ventilatie.

Op de tweede verdieping tref je nog drie fijne kamers: ideaal als slaap-, werk- of hobbyruimte. Hier bevindt zich ook de opstelling voor de wasapparatuur. Dankzij het platte dak zijn de kamers goed in te richten en heerlijk licht.

BUITENLEVEN OP Z'N BEST
De tuin is echt een eyecatcher. Door de hoekligging en het formaat van het perceel geniet je hier van veel privacy en ruimte. De tuin is volledig bestraat, onderhoudsarm én praktisch ingericht met meerdere zitplekken. De garage biedt plek aan fietsen, motor of een auto, en is toegankelijk via de achterzijde én via een deur vanuit de tuin. Ook parkeren doe je hier gemakkelijk: voor en naast het huis is ruim voldoende parkeergelegenheid. Maar je kan natuurlijk de auto altijd voor de garage parkeren.

De bitumen dakbedekking van het huis is vervangen in 2019, wat een fijne geruststelling is voor de komende jaren. Verder zijn de vloeren op de eerste verdieping voorzien van PVC (2025) en is het buitenschilderwerk in 2025 professioneel uitgevoerd.

WONEN IN DE POPULAIRE RAVENSE HOEK
Rooseveltlaan 7 ligt in Ravense Hoek, een jonge en kindvriendelijke wijk aan de noordzijde van Hellevoetsluis. De buurt kenmerkt zich door het ruime opgezette karakter, veel groen, speeltuinen en brede lanen. In de directe omgeving vind je meerdere basisscholen, kinderopvang, sportverenigingen en een supermarkt. Binnen een paar minuten fietsen sta je bij winkelcentrum De Struytse Hoeck. Ook het Haringvliet en het Quakstrand zijn dichtbij voor wie graag wandelt of vaart.

De aansluiting op het openbaar vervoer is goed geregeld en met de auto ben je via de N57 snel onderweg richting Rotterdam of Zeeland. De wijk is populair bij jonge gezinnen en tweeverdieners die graag ruim en modern willen wonen met alle voorzieningen binnen handbereik.

BELANGRIJKSTE KENMERKEN:
- Woonoppervlakte: 115 m²
- Perceeloppervlakte: 239 m²
- Bouwjaar: 2002
- Energielabel: A
- Moderne keuken 2023
- Moderne laminaatvloer begane grond (2024)
- Moderne pvc vloeren eerste verdieping (2025)
- Schilderwerk buitenzijde (2025)
- Ruime stenen garage van 23m2
- Nieuwe bitumen dakbedekking (2019)
- Oplevering: Begin 2026

Kenmerken

Basiskenmerken

  • Status Verkocht onder voorbehoud
  • Koopsom € 545.000 k.k.
  • Woonoppervlakte ca. 115 m2
  • Aantal slaapkamers 5
  • Bouwjaar 2002

Overdracht

  • Aanvaarding In overleg

Bouwvorm & onderhoud

  • Soort object Hoekwoning
  • Soort woning Eengezinswoning
  • Bouwjaar 2002
  • Soort bouw woonhuis
  • Ligging Aan park, aan rustige weg, in woonwijk, vrij uitzicht, open ligging

Oppervlakte & inhoud

  • Gebruiksoppervlakte 115m2
  • Perceeloppervlakte 239m2
  • Inhoud 390m3
  • Aantal kamers 6
  • Aantal slaapkamers 5
  • Aantal woonlagen 3 woonlagen

Energie & installatie

  • Energielabel A
  • Isolatie Dakisolatie, muurisolatie, vloerisolatie, volledig geisoleerd, hr glas
  • Verwarming Cv ketel
  • Warm water Cv ketel
  • C.v.-ketel type GAS
  • C.v.-ketel bouwjaar 2014
  • Energie einddatum 29-07-2035

Parkeergelegenheid

  • Parkeerfaciliteiten Openbaar parkeren, op eigen terrein
  • Garage Vrijstaand steen

Dak

  • Soort dak Plat dak

Overig

  • Onderhoud binnen Goed
  • Onderhoud buiten Goed tot uitstekend
  • Bijzonderheden Gedeeltelijk gestoffeerd
  • Permanente bewoning Ja
  • Huidig gebruik Woonruimte
  • Huidige bestemming Woonruimte

Voorzieningen

  • Voorzieningen Mechanische ventilatie, tv kabel, rookkanaal, glasvezel kabel, natuurlijke ventilatie

Buitenruimte

  • Hoofdtuin ACHTERTUIN
  • Oppervlakte hoofdtuin 77m2
  • Ligging hoofdtuin OOST
  • Kwaliteit tuin Verzorgd

Kadastrale gegevens

  • Perceelnummer 1560
  • Perceeloppervlakte 239 m2
Meer kenmerken
Ontdek online wat jouw huis waard is

Met de online waardecheck ontdek je in een paar minuten de geschatte waarde van jouw huis

Online waardecheck

In de buurt