Capelle Aan Den Ijssel

Silkeborg  35

€ 760.000,- k.k.

Omschrijving

- NIEUW IN DE VERKOOP - UNIEKE KANS VOOR DEZE WAANZINNIGE LUXE WONING! DE WONING IS COMPLEET GEMODERNISEERD EN BESCHIKT OVER 165 M². ER ZIJN 4 SLAAPKAMERS, EEN GARAGE EN EEN ZONNIGE TUIN WELKE VEEL PRIVACY BIEDT! HIER HOEF JE WERKELIJK NIETS AAN TE DOEN, VERHUISDOZEN UITPAKKEN EN JE KUNT DIRECT GENIETEN! RUIME FAMILIEWONING: De woning betreft een type split-level en…

- NIEUW IN DE VERKOOP -
UNIEKE KANS VOOR DEZE WAANZINNIGE LUXE WONING! DE WONING IS COMPLEET GEMODERNISEERD EN BESCHIKT OVER 165 M². ER ZIJN 4 SLAAPKAMERS, EEN GARAGE EN EEN ZONNIGE TUIN WELKE VEEL PRIVACY BIEDT! HIER HOEF JE WERKELIJK NIETS AAN TE DOEN, VERHUISDOZEN UITPAKKEN EN JE KUNT DIRECT GENIETEN!

RUIME FAMILIEWONING:
De woning betreft een type split-level en heeft daardoor een speelse indeling. Op de begane grond is er een ruime entree met een praktische garderobenis, meterkast en toilet. De moderne woonkeuken is gelegen aan de voorzijde van de woning en heeft een chique matzwarte kleurstelling. De keuken is voorzien van alle benodigde inbouwapparatuur en een sfeervol barretje. Ideaal voor het borrelen tijdens het koken! In de verdiepte zitkuil is de woonkamer met eethoek gelegen. Door de grote raampartijen aan de achterzijde is er een fraai uitzicht gerealiseerd. In 2025 zijn er nog 2 lichtkoepels geplaatst waardoor er aan daglicht geen gebrek is!

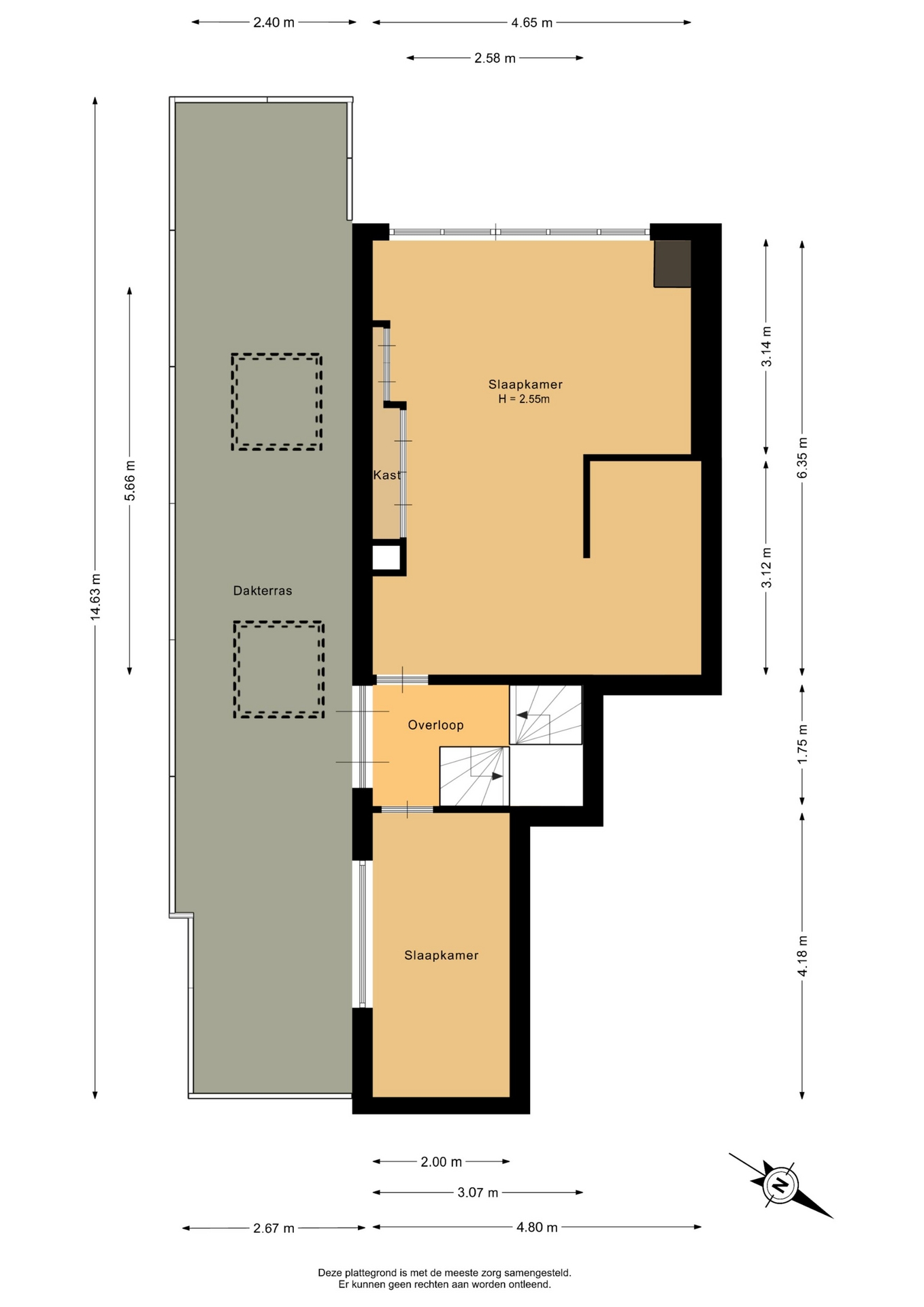
Op het eerste niveau is een slaapkamer aan de voorzijde te vinden. Vanaf de overloop is er toegang tot de eerste badkamer. Deze is voorzien van een ruime inloopdouche, dubbele wastafel en het toilet. Nog een niveau hoger zijn 2 slaapkamers gelegen. De master bedroom bevindt zich aan de achterzijde en is uitgebouwd waardoor er een waanzinnige ruimte met inloopkast is ontstaan. Vanaf de overloop is er toegang tot het dakterras. Op de bovenste woonlaag is de 4e slaapkamer, 2e badkamer en een wasruimte gelegen. De badkamer heeft dezelfde kleurstelling als de eerste badkamer en beschikt tevens ook over een inloopdouche en wastafel met meubel. De slaapkamer heeft opvallende hoge plafonds waardoor er in deze kamer veel meer hoogte is. Tevens is hier ook een inloopkast. Kortom, een complete woning waar je niets te kort zult komen.

HEERLIJKE ACHTERTUIN:
De schuifpui in de achtergevel is uitnodigend om de tuin te betreden. Laat je verrassen door deze geweldig aangelegde tuin met diverse terrassen. De achterzijde van de tuin is gelegen aan een groenstrook en het water. Hierdoor kan je het hele jaar door genieten van het ultieme vakantiegevoel. De achtertuin is gesitueerd op het zuidwesten wat het mogelijk maakt om vanaf halverwege de ochtend, de hele middag en begin van de avond van de zon te kunnen genieten.

KOPEN ZONDER KLUSSEN:
De verkopers hebben de woning in 2018 in bezit gekregen en deze flink verbouwd. Zo hebben zij in 2018 compleet de begane grond verbouwd met een nieuwe keuken, meterkast, toilet, vernieuwde vloeren, gestucte wanden en plafonds. Op de verdiepingen zijn ook alle vloeren vernieuwd en beide badkamers komen ook uit 2018. In 2024 hebben zij een dakopbouw laten plaatsen bij de master bedroom. In combinatie hebben zij meteen de dakpannen laten impregneren.

RUSTIGE LIGGING OP EEN CENTRALE LOCATIE:
De locatie maakt het plaatje compleet. De woning bevindt zich in de kindvriendelijke en gewilde woonwijk Capelle Oostgaarde. Gezien de woning aan een doodlopende straat ligt, komt hier alleen bestemmingsverkeer, wat de locatie ideaal maakt voor gezinnen met kinderen. Alle voorzieningen liggen in de directe omgeving van de woning. Zo is het metrostation De Terp op loopafstand, net als het gelijknamige winkelcentrum. Ook scholen en diverse uitvalswegen liggen in de buurt van de woning. Met de auto ben je al binnen 10 minuten op de snelwegen A16 en A20 en binnen 20 minuten sta je in het centrum van Rotterdam. Het winkelcentrum De Koperwiek is ook binnen 5 minuten te bereiken.

VERKOPER AAN HET WOORD:
Wij zijn toe aan een nieuw avontuur. Met een dubbel gevoel nemen wij afscheid van deze bijzondere woning, die voor ons luxe uitstraalt met een speels karakter en een heerlijk ruimtelijk gevoel. Zodra alles in de bloei staat voelt het alsof we ons midden in het bos bevinden - een plek waar rust, groen en vrijheid samenkomen. Het is heerlijk wonen in de rustige en ruim opgezette wijk.

BIJZONDERHEDEN:
- Ruime twee-onder-één kapwoning;
- 165 m² woonoppervlakte;
- Gelegen op 196 m² perceeloppervlakte;
- De woning betreft een type split-level;
- Luxe open keuken (2018);
- 4 slaapkamers aanwezig;
- 2 moderne badkamers (beide uit 2018);
- Heerlijke, zonnige achtertuin op het zuidwesten, welke gelegen is aan het water;
- Beschutte ligging aan de achterzijde biedt veel privacy;
- Inpandige garage met parkeerplaats voor de deur;
- Airco aanwezig in de woonkamer en twee slaapkamers;
- Elektrische rolluiken bij de master bedroom, overloop 2e verdieping en slaapkamer 2e verdieping;
- Verwarming en warmwater middels cv-ketel (2019);
- De kozijnen zijn in 2022 nog geschilderd;
- Er is een nieuwe (kunststof) voordeur en pui geplaatst (2025);
- Energielabel C, welke geldig is tot 16-02-2036;
- Let op, er wordt een asbest- en ouderdomsclausule opgenomen in de koopovereenkomst;
- Oplevering in overleg.

INTERESSE? MAAK DAN SNEL EEN AFSPRAAK!
Ons advies is om bij het kopen van je nieuwe huis je eigen NVM-makelaar mee te nemen.

TOELICHTINGSCLAUSULE NEN2580:
De Meetinstructie is gebaseerd op de NEN2580. De Meetinstructie is bedoeld om een meer eenduidige manier van meten toe te passen voor het geven van een indicatie van de gebruiksoppervlakte. De Meetinstructie sluit verschillen in meetuitkomsten niet volledig uit, door bijvoorbeeld interpretatieverschillen, afrondingen of beperkingen bij het uitvoeren van de meting.

“Deze informatie is door ons met de nodige zorgvuldigheid samengesteld. Onzerzijds wordt echter geen enkele aansprakelijkheid aanvaard voor enige onvolledigheid, onjuistheid of anderszins, dan wel de gevolgen daarvan. Alle opgegeven maten en oppervlakten zijn indicatief.”

KOOPOVEREENKOMST PAS RECHTSGELDIG NA ONDERTEKENING:
Een mondelinge overeenstemming tussen de particuliere verkoper en de particuliere koper is niet rechtsgeldig. Met andere woorden: er is geen koop. Er is pas sprake van een rechtsgeldige koop als de particuliere verkoper en de particuliere koper de koopovereenkomst hebben ondertekend. Dit vloeit voort uit artikel 7:2 Burgerlijk Wetboek. Een bevestiging van de mondelinge overeenstemming per e-mail of een toegestuurd concept van de koopovereenkomst wordt overigens niet gezien als een 'ondertekende koopovereenkomst'.

Kenmerken

Basiskenmerken

  • Status Onder bod
  • Koopsom € 760.000 k.k.
  • Woonoppervlakte ca. 165 m2
  • Aantal slaapkamers 4
  • Bouwjaar 1973

Overdracht

  • Aanvaarding In overleg

Bouwvorm & onderhoud

  • Soort object Twee onder een kapwoning
  • Soort woning Herenhuis
  • Bouwjaar 1973
  • Soort bouw woonhuis
  • Ligging Aan water, in woonwijk

Oppervlakte & inhoud

  • Gebruiksoppervlakte 165m2
  • Perceeloppervlakte 196m2
  • Inhoud 640m3
  • Aantal kamers 5
  • Aantal slaapkamers 4
  • Aantal woonlagen 4 woonlagen
  • Overige inpandige ruimte 17m2

Energie & installatie

  • Energielabel C
  • Isolatie Dubbel glas
  • Verwarming Cv ketel, open haard
  • Warm water Cv ketel
  • C.v.-ketel type GAS
  • C.v.-ketel bouwjaar 2018
  • Energie einddatum 16-02-2036

Bergruimte

  • Schuur / berging Aangebouwd steen

Parkeergelegenheid

  • Parkeerfaciliteiten Openbaar parkeren, op eigen terrein
  • Garage Inpandig

Dak

  • Soort dak Zadeldak

Overig

  • Onderhoud binnen Goed
  • Onderhoud buiten Goed
  • Bijzonderheden Gedeeltelijk gestoffeerd
  • Permanente bewoning Ja
  • Huidig gebruik Woonruimte
  • Huidige bestemming Woonruimte

Voorzieningen

  • Voorzieningen Tv kabel, buitenzonwering, airconditioning, rookkanaal, schuifpui, dakraam, natuurlijke ventilatie

Buitenruimte

  • Hoofdtuin ACHTERTUIN
  • Oppervlakte hoofdtuin 87m2
  • Ligging hoofdtuin ZUIDWEST
  • Kwaliteit tuin Verzorgd

Kadastrale gegevens

  • Perceelnummer 1707
  • Perceeloppervlakte 196 m2
Meer kenmerken
Ontdek online wat jouw huis waard is

Met de online waardecheck ontdek je in een paar minuten de geschatte waarde van jouw huis

Online waardecheck

In de buurt

Geïnteresseerd?

Bel met Den Rooijen & Van Herk Makelaars

shape

Stuur een bericht

* Maximaal 255 tekens
privacyverklaring