Zevenbergen

Stationsstraat 2

€ 500.000,- k.k.

Omschrijving

UNIEKE TRANSFORMATIEKANS: KARAKTERISTIEK PAND IN HARTJE ZEVENBERGEN Gelegen aan de sfeervolle Stationsstraat 2 in Zevenbergen, presenteren wij dit indrukwekkende pand met een rijke historie. Oorspronkelijk gebouwd in 1910 en in gebruik geweest als kerk met bovenliggende dienstwoning, biedt dit object met een oppervlakte van maar liefst 385 m² en een inhoud van 1.705 m³…

UNIEKE TRANSFORMATIEKANS: KARAKTERISTIEK PAND IN HARTJE ZEVENBERGEN
Gelegen aan de sfeervolle Stationsstraat 2 in Zevenbergen, presenteren wij dit indrukwekkende pand met een rijke historie. Oorspronkelijk gebouwd in 1910 en in gebruik geweest als kerk met bovenliggende dienstwoning, biedt dit object met een oppervlakte van maar liefst 385 m² en een inhoud van 1.705 m³ een unieke kans voor transformatie. De hoge plafonds en karakteristieke elementen ademen de grandeur van weleer en vormen een solide basis voor een herbestemming tot bijvoorbeeld luxe appartementen, een ruime gezinswoning of een inspirerende werkruimte.?

CHARMANTE OMGEVING MET VOLLEDIGE VOORZIENINGEN
De Stationsstraat kenmerkt zich door haar authentieke panden en vormt een directe verbinding tussen het historische centrum van Zevenbergen en het recent heropende havengebied. Hier vindt u diverse winkels, supermarkten, een warme bakker en talrijke eetgelegenheden, waardoor alle dagelijkse benodigdheden binnen handbereik zijn. Zevenbergen biedt het beste van twee werelden: de gemoedelijkheid van een dorp gecombineerd met stadse voorzieningen. Het nabijgelegen treinstation en de bushaltes zorgen voor uitstekende verbindingen, terwijl de nabijheid van de A16 en A17 snelle toegang biedt tot steden als Breda, Roosendaal, Dordrecht en Rotterdam.?

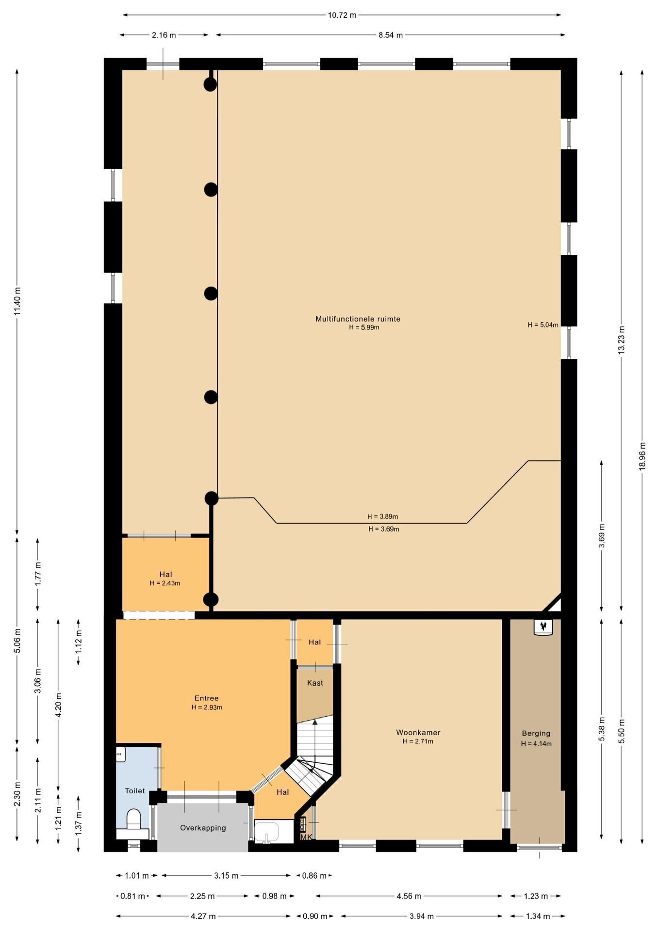
INDELING VAN HET PAND
Begane grond:
Bij binnenkomst via de statige entree wordt u verwelkomd in een ruime hal die toegang biedt tot de voormalige kerkzaal aan de achterzijde van het pand, een pantryruimte met trapopgang naar de eerste verdieping, een multifunctionele ruimte aan de voorzijde en een toiletruimte met fonteintje. Ook is er vanuit de entree via een luik de kelder te bereiken.

De achterzijde van het pand is uitgebouwd in 1955 waarbij een imposante ruimte gecreëerd is, gekenmerkt door hoge plafonds en authentieke details zoals glas-in-lood-elementen.

Vanuit de hal is er toegang tot de multifunctionele ruimte aan de voorzijde van het pand welke is v.v. de meterkast en welke toegang geeft tot een bergportaal met deur richting straatzijde.

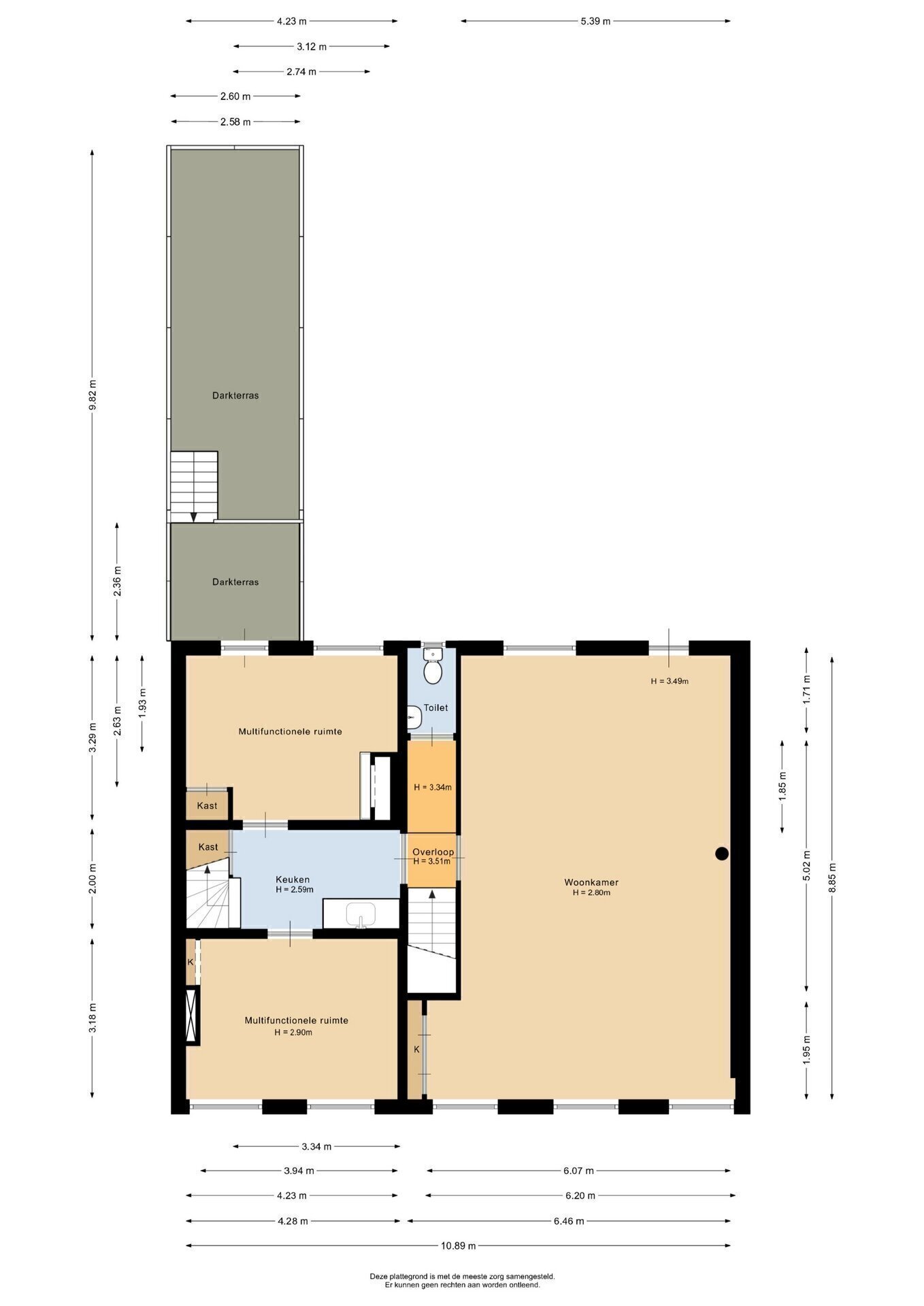
Eerste verdieping:
De overloop op de eerste verdieping geeft toegang tot een ruime kamer aan de rechterzijde van het pand, een toilet met fonteintje en een overloop/keuken.

Vanuit de overloop/keuken is toegang tot een tweetal kamers welke beide zijn voorzien van vaste kasten, als ook de trapopgang naar de tweede verdieping. Onder de trap is nog een ruime vaste kast.

De kamer aan de achterzijde beschikt over een deur richting achterliggende dakterras op het zuidwesten.

Tweede verdieping:
De tweede verdieping herbergt drie slaapkamers, elk met voldoende ruimte en opbergmogelijkheden. De grootste slaapkamer bevindt zich aan de rechterzijde, terwijl de andere twee kamers praktisch zijn ingedeeld. Daarnaast is er een aparte berging en een hal die de ruimtes met elkaar verbindt. Verder beschikt deze verdieping over meerdere ingebouwde kasten, wat zorgt voor extra opbergruimte.

ALGEMEEN:
- Herenhuis uit 1910;
- Voormalig kerkgebouw met dienstwoning;
- Diverse transformatiemogelijkheden;
- Oppervlakte 385 m² conform NEN2580;
- Inhoud: 1705 m³;
- Perceeloppervlakte 237 m² eigen grond;
- Oplevering in overleg.

As-is-where-is:
Het pand wordt volgens het 'as-is-where-is' principe verkocht.

Bestemmingsplan:
Volgens het configurerende bestemmingsplan is het pand bestemd voor 'maatschappelijk' gebruik, eventuele wijzigingen van de bestemmingsplannen voor transformatie o.i.d. zijn voor rekening en risico van koper. De voor 'Maatschappelijk' aangewezen gronden zijn bestemd voor:
a - voorzieningen inzake bibliotheken, jeugd- en kinderopvang, onderwijs, openbare dienstverlening en verenigingsleven;
b - voorzieningen inzake gezondheidszorg;
c - zorgwoningen, ter plaatse van de aanduiding 'zorgwoning';
d - ter plaatse van de aanduiding 'religie': een faciliteit voor levensbeschouwelijke activiteiten en/of religieuze bijeenkomsten;
e - bij deze voorzieningen behorende ondergeschikte horeca;
f - wonen in een dienstwoning, met dien verstande dat:
1. het aantal wooneenheden mag niet meer bedragen dan het bestaande aantal;
2. de vloeroppervlakte bij onzelfstandige woonruimte ten minste 15 m² en bij zelfstandige woonruimte ten minste 60 m² bedraagt, of de bestaande oppervlakte op het tijdstip van inwerkingtreding van dit plan;
g - bij deze bestemming behorende voorzieningen, zoals (ontsluitings)wegen, groen, water, nutsvoorzieningen en parkeervoorzieningen.

WoonSchuijt Makelaars behartigt de belangen van de verkopende partij. Neem uw eigen NVM aankoopmakelaar mee.

Alle verstrekte informatie moet beschouwd worden als een uitnodiging tot het doen van een bod of om in onderhandeling te treden.

Deze informatie is door ons met de nodige zorgvuldigheid samengesteld. Onzerzijds wordt echter geen enkele aansprakelijkheid aanvaard voor enige onvolledigheid, onjuistheid of anderszins, dan wel de gevolgen daarvan. Alle opgegeven maten en oppervlakten zijn indicatief. Van toepassing zijn de NVM voorwaarden.

Koopovereenkomst pas rechtsgeldig na ondertekening:
Een mondelinge overeenstemming tussen de particuliere verkoper en de particuliere koper is niet rechtsgeldig. Met andere woorden: er is geen koop. Er is pas sprake van een rechtsgeldige koop als de particuliere verkoper en de particuliere koper de koopovereenkomst hebben ondertekend. Dit vloeit voort uit artikel 7:2 Burgerlijk Wetboek. Een bevestiging van de mondelinge overeenstemming per e-mail of een toegestuurd concept van de koopovereenkomst wordt overigens niet gezien als een 'ondertekende koopovereenkomst'.

Kenmerken

Basiskenmerken

  • Status Verkocht onder voorbehoud
  • Koopsom € 500.000 k.k.
  • Woonoppervlakte ca. 385 m2
  • Aantal slaapkamers 3
  • Bouwjaar 1910

Overdracht

  • Aanvaarding In overleg

Bouwvorm & onderhoud

  • Soort object Halfvrijstaande woning
  • Soort woning Herenhuis
  • Bouwjaar 1910
  • Soort bouw woonhuis
  • Ligging In centrum

Oppervlakte & inhoud

  • Gebruiksoppervlakte 385m2
  • Perceeloppervlakte 237m2
  • Inhoud 1705m3
  • Aantal kamers 8
  • Aantal slaapkamers 3
  • Aantal woonlagen 3 woonlagen
  • Overige inpandige ruimte 23m2

Energie & installatie

  • Verwarming Cv ketel
  • Warm water Cv ketel
  • C.v.-ketel type GAS

Parkeergelegenheid

  • Parkeerfaciliteiten Parkeervergunningen
  • Garage Geen garage

Overig

  • Onderhoud binnen Matig
  • Onderhoud buiten Matig
  • Permanente bewoning Ja
  • Huidig gebruik Woonruimte
  • Huidige bestemming Woonruimte

Kadastrale gegevens

  • Perceelnummer 3015
  • Perceeloppervlakte 237
Meer kenmerken

Ontdek online wat jouw huis waard is

Met de online waardecheck ontdek je in een paar minuten de geschatte waarde van jouw huis

Online waardecheck

In de buurt