Capelle Aan Den Ijssel

Sweelinckstraat  5

€ 525.000,- k.k.

Omschrijving

***NU IN VERKOOP*** EEN KEURIG VERZORGDE EENGEZINSWONING IN DE MOOIE WIJK 'S-GRAVENLAND. DE WONING TELT ONDER MEER 4 SLAAPKAMERS, 2 BADKAMERS, EEN FRAAIE, UITGEBOUWDE LIVING EN EEN GEZELLIGE OVERKAPPING IN DE ACHTERTUIN. HET GEHEEL IS GELEGEN OP 144M² EIGEN GROND EN BIEDT EEN TOTALE WOONOPPERVLAKTE VAN 130M². LOCATIE: De Sweelinckstraat is een rustige, kindvriendelijke,…

***NU IN VERKOOP***
EEN KEURIG VERZORGDE EENGEZINSWONING IN DE MOOIE WIJK 'S-GRAVENLAND.
DE WONING TELT ONDER MEER 4 SLAAPKAMERS, 2 BADKAMERS, EEN FRAAIE, UITGEBOUWDE LIVING EN EEN GEZELLIGE OVERKAPPING IN DE ACHTERTUIN.
HET GEHEEL IS GELEGEN OP 144M² EIGEN GROND EN BIEDT EEN TOTALE WOONOPPERVLAKTE VAN 130M².

LOCATIE:
De Sweelinckstraat is een rustige, kindvriendelijke, autovrije straat en is gelegen aan een groot plein met verschillende speeltoestellen voor de kinderen. In de wijk 's-Gravenland komen comfort en gemak samen. Voor de dagelijkse boodschappen, medische zorg en horeca kun je terecht op de verderop gelegen 'Puccinipassage. Ook is er op loopafstand een lagere school aanwezig, evenals dagopvang / BSO. Voor een breder winkelaanbod kun je terecht op winkelcentrum 'De Koperwiek', shopping mall 'Alexandrium', of Rotterdam-centrum. Deze zijn op enkele minuten rijden gelegen, of ook heel goed met de metro vanaf 'Capelsebrug' bereikbaar. Metro en bus station 'Capelsebrug' is eveneens te voet bereikbaar. Vanaf dit grote station kun je per bus of metro werkelijk alle kanten op.

Kortom: de locatie van de Sweelinckstraat is rustig, maar toch ook heel centraal gelegen nabij alle dagelijkse voorzieningen zoals winkelcentra, openbaar vervoer, basisscholen, sportgelegenheden, een huisarts om de hoek en meerdere uitvalswegen richting Rotterdam en den Haag/Utrecht. De wijk heeft een uitstekende bereikbaarheid, wat de ligging bijzonder praktisch maakt!

DE EXTRA'S:
Wat dit huis zo aantrekkelijk maakt, zijn de vele extra's die we tijdens onze bezichtiging tegenkomen:
Verlaagde plafonds met hallogeen inbouwspots, een karakteristieke glazen 'Boley' gashaard in de uitgebouwde living wat vooral gezellig is tijdens de feestdagen of gewoon voor een mooie sfeer, rolluiken op de eerste etage, inbouwkasten en brede dakkapel op de tweede etage voor een prachtig uitzicht over de wijk, een douche met verwarmd granieten zitplateau in de badkamer, vloerverwarming op de begane grond én de badkamer, een lichte keuken met veel inbouwapparatuur, elektrische zonwering boven het terras en een berging met overkapping in de achtertuin. En dat is nog niet alles! Ook de keurige staat van onderhoud springt hier gelijk in het oog. Al met al een zeer complete woning !

SPECIFICATIES:
-Bouwjaar: 1991
-Eigen grond: 144m²
-Woonoppervlakte: 130m²
-Externe bergruimte: 5m²
-Inhoud: 440m³
-Isolatie: muur, wand en vloerisolatie, plus overal dubbel glas
-Verwarming: C.V. ketel en op begane grond vloer verwarming
-Warm water: C.V. ketel: Remeha Calenta d.d. 2015
-Energielabel: A einddatum 25-11-2035
-Mechanische ventilatie
-Oplevering in overleg

BEKNOPTE TOUR:
Via de entree kom je in de hal met brede ingebouwde schuifwandenkast, meterkast, toegang tot geheel betegeld toilet met wandcloset, fontein trapopgang en de deur naar de living. De living is in 2002 uitgebouwd en voorzien van strakke doorlopende natuurstenen granieten tegelvloer, brede schuifpui naar achtertuin, fraaie Boley gashaard en rondom hallogeen inbouwspots. Door de uitbouw en de brede schuifdeuren is het heerlijk licht in de living!

De keuken is van het merk Eggersman en is oorspronkelijk in de kleur hoogglans bordeauxrood, maar voor een meer ruimtelijke, tijdloze en neutrale look, is de keuken in 2018 gewrapt in de kleur hoogglans wit. De keuken is in U opstelling geplaatst. In de keuken bevinden zich een ruime apothekerskast, koelkast, grote vriezer, vaatwasser, inductie kookplaat, wokbrander, extra keramische kookplaat, afzuigkap, draaicarrousel en granieten aanrechtblad.

In de entreehal en living ligt een doorlopende natuurstenen granieten vloer met vloerverwarming. Rondom de Boley gashaard is hetzelfde graniet gebruikt voor een mooie en brede schouw wat enerzijds voor meer karakter en sfeer zorgt en anderzijds volledig in lijn is met de stijl in de keuken.

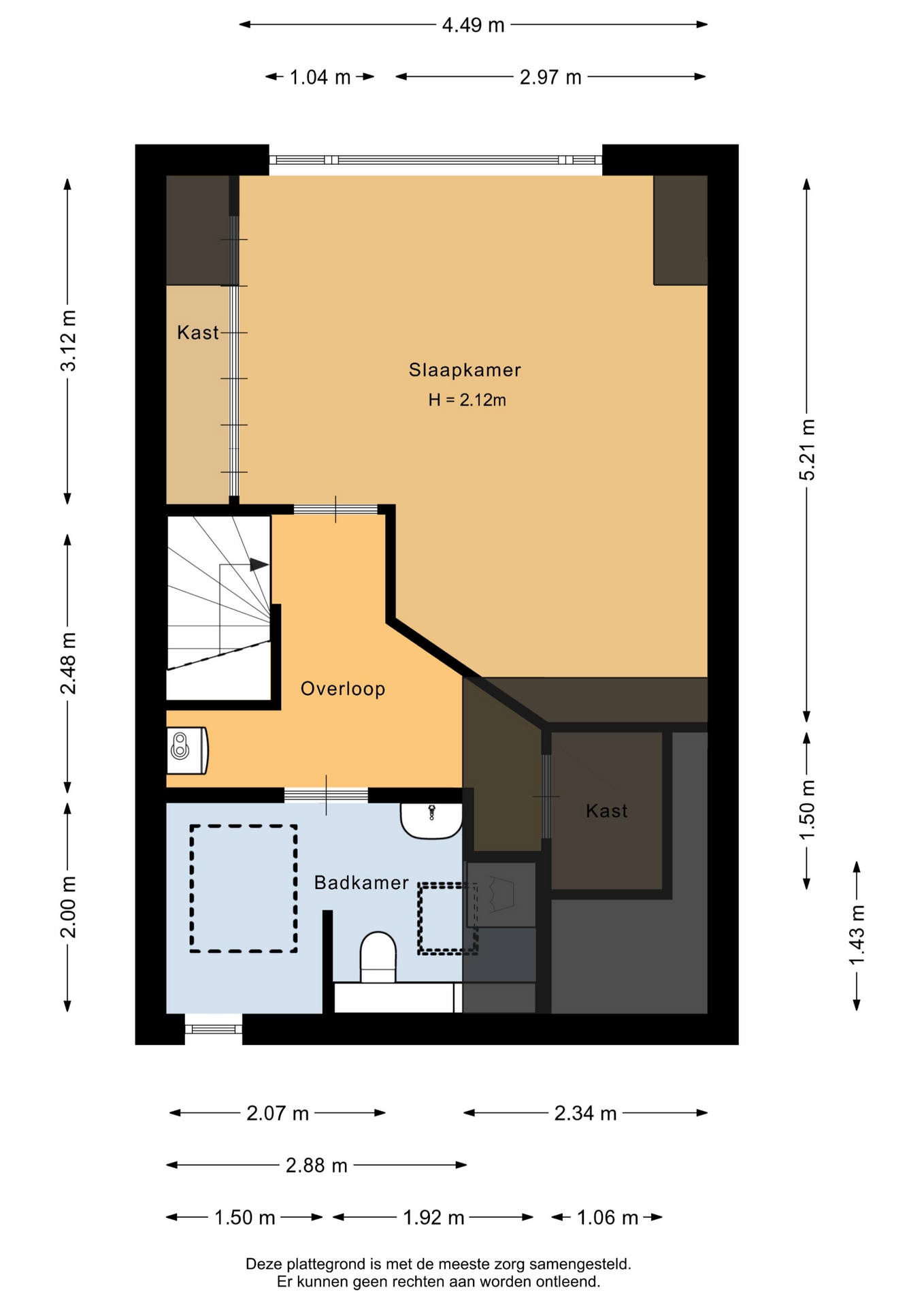
Op de eerste etage treffen we vanaf de overloop 3 slaapkamers aan: twee slaapkamers (8m² & 10m²) aan de achterzijde (tuinzijde) en een slaapkamer (13m²) met inbouwkast aan de voorzijde. Naast de slaapkamer aan de voorzijde bevindt zich ook de badkamer. Deze luxe en lichte badkamer is geheel betegeld met natuurstenen tegels en voorzien van inbouwspots, vloerverwarming, een wand closet, wastafelmeubel en een fraaie ingebouwde doucheruimte met daarin verwarmd zitplateau. De wandcloset is gemaakt van hetzelfde graniet als gebruikt in de keuken en de woonkamer (schouw). Over de gehele eerste etage ligt, met uitzondering van de badkamer, een fraaie doorlopende laminaat vloer.

Op de tweede etage vinden we aan de achterzijde (tuinzijde) een riante slaapkamer (22m²) met inbouwkasten, inbouwspots en brede dakkapel met kunststof kozijnen! Deze slaapkamer is perfect voor een ruime masterbedroom! Aan de voorzijde bevindt zich een tweede badkamer met daarin een groot Velux dakraam, toilet, wastafel en opstelplaats voor wasapparatuur. Aan de linkerzijde is er zelfs ruimte voor het realiseren van een bad. Ook is er hiervandaan toegang tot de bovengelegen vlizo zolder. Op de overloop treffen we ook de C.V. ketel, evenals de toegang tot een extra bergruimte onder de schuine kap. Net als op de eerste etage ligt ook op deze etage een doorlopende laminaatvloer.

Buiten:
De voortuin (24m²) is geheel afgezet middels een fraai sierhekwerk. De tuin is opgedeeld in een pad naar de voordeur en een groenstrook met daarin vaste beplanting (Japanse esdoorn bomen). De achtertuin is gelegen op het zuidwesten en is met circa 61m² ruim bemeten. De achtertuin is zowel vanuit de living, als via een achterpad bereikbaar. De tuin is geheel afgezet en voorzien van fraai straatwerk, in combinatie met een gazon, grote plantenbakken met daarin verzorgde, oleander bomen die in de lente en zomer prachtige bloemen vertonen. Naast elektrische zonwering boven het terras, treffen we achter in de tuin nog een vrijstaand houten berging met overkapping voor de gezellige momenten. Er is, net als in de voortuin, ook een buitenkraan aanwezig.

VERKOPER AAN HET WOORD:
‘Toen wij deze woning kochten, waren we nog een koppel vol plannen en dromen. In de jaren die volgden, groeiden we hier uit tot een gezin en vulden we iedere kamer met warmte, liefde en prachtige herinneringen. Deze woning was voor ons nooit zomaar een huis: het was een thuis in de puurste vorm. We hebben hier ontelbare mooie momenten beleefd: van gezellige avonden samen tot bijzondere mijlpalen met ons gezin.

Nu is het tijd voor een nieuwe fase, en geven we met een warm hart de sleutels door. We hopen dat de nieuwe bewoners net zo zullen genieten van deze woning als wij hebben gedaan, en dat zij hier hun eigen verhalen, geluk en thuis zullen creëren.’

INTERESSE? MAAK DAN SNEL EEN AFSPRAAK!
Ons advies is om bij het kopen van je nieuwe huis je eigen NVM-makelaar mee te nemen.

TOELICHTINGSCLAUSULE NEN2580
De Meetinstructie is gebaseerd op de NEN2580. De Meetinstructie is bedoeld om een meer eenduidige manier van meten toe te passen voor het geven van een indicatie van de gebruiksoppervlakte. De Meetinstructie sluit verschillen in meetuitkomsten niet volledig uit, door bijvoorbeeld interpretatieverschillen, afrondingen of beperkingen bij het uitvoeren van de meting.

KOOPOVEREENKOMST PAS RECHTSGELDIG NA ONDERTEKENING
Een mondelinge overeenstemming tussen de particuliere verkoper en de particuliere koper is niet rechtsgeldig. Met andere woorden: er is geen koop. Er is pas sprake van een rechtsgeldige koop als de particuliere verkoper en de particuliere koper de koopovereenkomst hebben ondertekend. Dit vloeit voort uit artikel 7:2 Burgerlijk Wetboek. Een bevestiging van de mondelinge overeenstemming per e-mail of een toegestuurd concept van de koopovereenkomst wordt overigens niet gezien als een 'ondertekende koopovereenkomst'

“Deze informatie is door ons met de nodige zorgvuldigheid samengesteld. Onzerzijds wordt echter geen enkele aansprakelijkheid aanvaard voor enige onvolledigheid, onjuistheid of anderszins, dan wel de gevolgen daarvan. Alle opgegeven maten en oppervlakten zijn indicatief.”

Kenmerken

Basiskenmerken

  • Status Beschikbaar
  • Koopsom € 525.000 k.k.
  • Woonoppervlakte ca. 130 m2
  • Aantal slaapkamers 4
  • Bouwjaar 1991

Overdracht

  • Aanvaarding In overleg

Bouwvorm & onderhoud

  • Soort object Tussenwoning
  • Soort woning Eengezinswoning
  • Bouwjaar 1991
  • Soort bouw woonhuis
  • Ligging Aan rustige weg, in woonwijk

Oppervlakte & inhoud

  • Gebruiksoppervlakte 130m2
  • Perceeloppervlakte 144m2
  • Inhoud 440m3
  • Aantal kamers 5
  • Aantal slaapkamers 4
  • Aantal woonlagen 3 woonlagen

Energie & installatie

  • Energielabel A
  • Isolatie Dakisolatie, muurisolatie, vloerisolatie, dubbel glas
  • Verwarming Cv ketel, vloerverwarming gedeeltelijk
  • Warm water Cv ketel
  • C.v.-ketel type GAS
  • C.v.-ketel bouwjaar 2015
  • Energie einddatum 25-11-2035

Bergruimte

  • Schuur / berging Vrijstaand hout
  • Voorzieningen Voorzien van elektra

Parkeergelegenheid

  • Parkeerfaciliteiten Openbaar parkeren
  • Garage Geen garage

Dak

  • Soort dak Zadeldak

Overig

  • Onderhoud binnen Goed tot uitstekend
  • Onderhoud buiten Goed tot uitstekend
  • Bijzonderheden Gedeeltelijk gestoffeerd
  • Permanente bewoning Ja
  • Huidig gebruik Woonruimte
  • Huidige bestemming Woonruimte

Voorzieningen

  • Voorzieningen Mechanische ventilatie, rolluiken, buitenzonwering, rookkanaal, schuifpui

Buitenruimte

  • Hoofdtuin ACHTERTUIN
  • Oppervlakte hoofdtuin 61m2
  • Ligging hoofdtuin ZUIDWEST
  • Kwaliteit tuin Verzorgd

Kadastrale gegevens

  • Perceelnummer 609
  • Perceeloppervlakte 144 m2
Meer kenmerken
Ontdek online wat jouw huis waard is

Met de online waardecheck ontdek je in een paar minuten de geschatte waarde van jouw huis

Online waardecheck

In de buurt

Geïnteresseerd?

Bel met Den Rooijen & Van Herk Makelaars

shape

Stuur een bericht

* Maximaal 255 tekens
privacyverklaring