Rotterdam

Voorhaven  24

€ 750.000,- k.k.

Omschrijving

Exclusief wonen op topniveau in Historisch Delfshaven Penthouse verdeeld over twee verdiepingen met terras, veel licht en een uniek uitzicht over stad en havengebied Dit goed onderhouden penthouse van ca. 141 m² ligt op de 4e en 5e verdieping van een verzorgd complex met lift en eigen parkeerplaats. De woning combineert ruimte en functionaliteit met een royale woonkamer…

Exclusief wonen op topniveau in Historisch Delfshaven

Penthouse verdeeld over twee verdiepingen met terras, veel licht en een uniek uitzicht over stad en havengebied

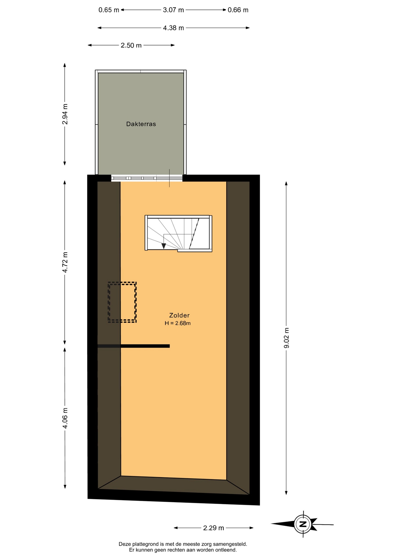
Dit goed onderhouden penthouse van ca. 141 m² ligt op de 4e en 5e verdieping van een verzorgd complex met lift en eigen parkeerplaats. De woning combineert ruimte en functionaliteit met een royale woonkamer onder hoge kap, grote raampartijen, meerdere slaapkamers, een extra verdieping met diverse gebruiksmogelijkheden en een zonnig terras van ca. 7 m². Gelegen op een karaktervolle locatie met alle voorzieningen binnen handbereik.

WONEN IN HISTORISCH DELFSHAVEN
De ligging aan de Voorhaven is een van de sterkste kwaliteiten van deze woning. Hier woon je midden in een omgeving met een rijke historie, uitzicht op de Aelbrechtskolk en authentieke schepen, en een sfeer die je nergens anders in Rotterdam vindt. Tegelijkertijd biedt de buurt alles wat je nodig hebt: supermarkten, speciaalzaken en een breed aanbod aan horeca zoals De Pelgrim, Frits en ’t Ouwe Bruggetje. Een unieke combinatie van rust, charme en stedelijke levendigheid.

PENTHOUSE VERDEELD OVER TWEE WOONLAGEN
De opzet over de 4e en 5e verdieping zorgt voor een onderscheidende woonbeleving. De royale woonoppervlakte van ca. 141 m² wordt versterkt door de slimme indeling en de extra verdieping, die flexibel in te richten is als werkruimte, extra slaapkamer of studio. Dit maakt de woning geschikt voor uiteenlopende woonwensen en levensfasen, en geeft het geheel meer het gevoel van een woning dan een appartement.

ROYALE LIVING MET HOOGTE EN LICHTINVAL
De woonkamer vormt het hart van de woning en valt direct op door de breedte, de hoge kapconstructie en de grote raampartijen. Hierdoor ontstaat een bijzonder ruimtelijk en licht geheel met een open en luxe uitstraling.

Het terras, dat bereikbaar is vanuit de bovenste verdieping, van ca. 7 m² is een prettige buitenruimte met vrij uitzicht, waar je in alle rust kunt genieten van de zon en de omgeving.

COMFORTABEL EN PRAKTISCH WONEN MET LIFT EN EIGEN PARKEERPLAATS
Het appartement maakt deel uit van een verzorgd complex met lift en beschikt over een eigen parkeerplaats in de afgesloten parkeergarage. De woning is door de jaren heen goed onderhouden en verkeert in nette staat. De afwerking is grotendeels origineel, maar verzorgd en functioneel, waardoor het appartement direct te betrekken is en tegelijkertijd ruimte biedt om het naar eigen smaak te moderniseren.

BIJZONDERHEDEN
- Bouwjaar 1997
- Energielabel B
- Woonoppervlakte ca. 141 m²
- Goed onderhouden 3-kamer appartement met prachtig uitzicht
- Gelegen in kleinschalig appartementencomplex aan de rustige Voorhaven op loopafstand van alle voorzieningen
- Het gebouw beschikt over een lift
- Geheel voorzien van houten kozijnen met dubbele beglazing
- Privé parkeerplaats in de gezamenlijke garage met elektrische toegangsdeur
- Aparte berging in de onderbouw
- Verwarming en warm water middels cv ketel
- Beschermd stadsgezicht
- De grond is uitgegeven in erfpacht waarvan de canon is afgekocht tot en met oktober 2046. Het recht van erfpacht loopt tot oktober 2095
- Actieve en gezonde vereniging van eigenaren, maandelijkse bijdrage € 447,- per maand
- Oplevering in overleg, kan snel

INTERESSE? MAAK DAN SNEL EEN AFSPRAAK!
Ons advies is om bij het kopen van jouw nieuwe huis altijd jouw eigen NVM makelaar mee te nemen.

TOELICHTINGSCLAUSULE NEN2580
De Meetinstructie is gebaseerd op de NEN2580. De Meetinstructie is bedoeld om een meer eenduidige manier van meten toe te passen voor het geven van een indicatie van de gebruiksoppervlakte. De Meetinstructie sluit verschillen in meetuitkomsten niet volledig uit, door bijvoorbeeld interpretatieverschillen, afrondingen of beperkingen bij het uitvoeren van de meting.

KOOPOVEREENKOMST PAS RECHTSGELDIG NA ONDERTEKENING
Een mondelinge overeenstemming tussen de particuliere verkoper en de particuliere koper is niet rechtsgeldig. Met andere woorden: er is geen koop. Er is pas sprake van een rechtsgeldige koop als de particuliere verkoper en de particuliere koper de koopovereenkomst hebben ondertekend. Dit vloeit voort uit artikel 7:2 Burgerlijk Wetboek. Een bevestiging van de mondelinge overeenstemming per e-mail of een toegestuurd concept van de koopovereenkomst wordt overigens niet gezien als een 'ondertekende koopovereenkomst'

“Deze informatie is door ons met de nodige zorgvuldigheid samengesteld. Onzerzijds wordt echter geen enkele aansprakelijkheid aanvaard voor enige onvolledigheid, onjuistheid of anderszins, dan wel de gevolgen daarvan. Alle opgegeven maten en oppervlakten zijn indicatief.”

Kenmerken

Basiskenmerken

  • Status Beschikbaar
  • Koopsom € 750.000 k.k.
  • Woonoppervlakte ca. 141 m2
  • Aantal slaapkamers 3
  • Bouwjaar 1997

Overdracht

  • Aanvaarding In overleg

Bouwvorm & onderhoud

  • Bouwjaar 1997
  • Soort bouw woonhuis
  • Ligging Aan water, aan rustige weg, in woonwijk, vrij uitzicht

Oppervlakte & inhoud

  • Gebruiksoppervlakte 141m2
  • Inhoud 450m3
  • Aantal kamers 4
  • Aantal slaapkamers 3
  • Aantal woonlagen 2 woonlagen

Energie & installatie

  • Energielabel B
  • Isolatie Dakisolatie, muurisolatie, dubbel glas
  • Verwarming Cv ketel
  • Warm water Cv ketel
  • C.v.-ketel type GAS
  • Energie einddatum 19-03-2036

Bergruimte

  • Schuur / berging Box
  • Voorzieningen Voorzien van elektra

Parkeergelegenheid

  • Parkeerfaciliteiten Openbaar parkeren, betaald parkeren, parkeervergunningen
  • Garage Inpandig, parkeerkelder, parkeerplaats

Dak

  • Soort dak Zadeldak

Overig

  • Onderhoud binnen Goed
  • Onderhoud buiten Goed
  • Bijzonderheden Beschermd stads of dorpsgezicht, toegankelijk voor ouderen
  • Permanente bewoning Ja
  • Huidig gebruik Woonruimte
  • Huidige bestemming Woonruimte

Voorzieningen

  • Voorzieningen Mechanische ventilatie, lift, dakraam, natuurlijke ventilatie

Buitenruimte

  • Hoofdtuin ZONNETERRAS
  • Oppervlakte hoofdtuin 7m2
  • Ligging hoofdtuin WEST
  • Kwaliteit tuin Normaal

Kadastrale gegevens

  • Perceelnummer 4382
Meer kenmerken
Ontdek online wat jouw huis waard is

Met de online waardecheck ontdek je in een paar minuten de geschatte waarde van jouw huis

Online waardecheck

In de buurt

Geïnteresseerd?

Bel met Den Rooijen & Van Herk Makelaars

shape

Stuur een bericht

* Maximaal 255 tekens
privacyverklaring