Rotterdam

Walenburgerweg 74 K

€ 325.000,- k.k.

Omschrijving

Modern, licht en met uitzicht op de skyline, dit instapklare appartement in Rotterdam Noord combineert comfort, stijl én locatie op zo’n manier dat je direct benieuwd bent naar meer. MODERN WONEN MET UITZICHT OVER DE SKYLINE Welkom op de Walenburgerweg 74 K, een instapklaar en strak afgewerkt appartement op de vijfde verdieping van een goed onderhouden complex in…

Modern, licht en met uitzicht op de skyline, dit instapklare appartement in Rotterdam Noord combineert comfort, stijl én locatie op zo’n manier dat je direct benieuwd bent naar meer.

MODERN WONEN MET UITZICHT OVER DE SKYLINE
Welkom op de Walenburgerweg 74 K, een instapklaar en strak afgewerkt appartement op de vijfde verdieping van een goed onderhouden complex in Rotterdam Noord. Deze woning combineert een moderne inrichting met energiezuinig wonen én een uitzicht waar je elke dag weer blij van wordt. Perfect voor starters die op zoek zijn naar comfort, locatie en sfeer in één.

Je stapt binnen in een fijne, lichte woning met een frisse uitstraling. Dankzij de ligging op de vijfde verdieping heb je niet alleen rust, maar ook een panoramisch uitzicht over de indrukwekkende skyline van Rotterdam, zeker in de avond een prachtig gezicht. Grote ramen in de woonkamer zorgen voor veel lichtinval en brengen het stadsgevoel echt naar binnen.

De keuken is modern en voorzien van inbouwapparatuur, hier kook je met plezier een snelle maaltijd na werk of juist uitgebreid in het weekend. De open opstelling zorgt voor een goede verbinding met de leefruimte. Ook fijn: het hele appartement is instapklaar en voorzien van een eigentijdse afwerking. Denk aan strakke wanden, een nette vloer en een airconditioning voor een comfortabel binnenklimaat, het hele jaar door.

FIJNE VERDELING EN SLIMME RUIMTE
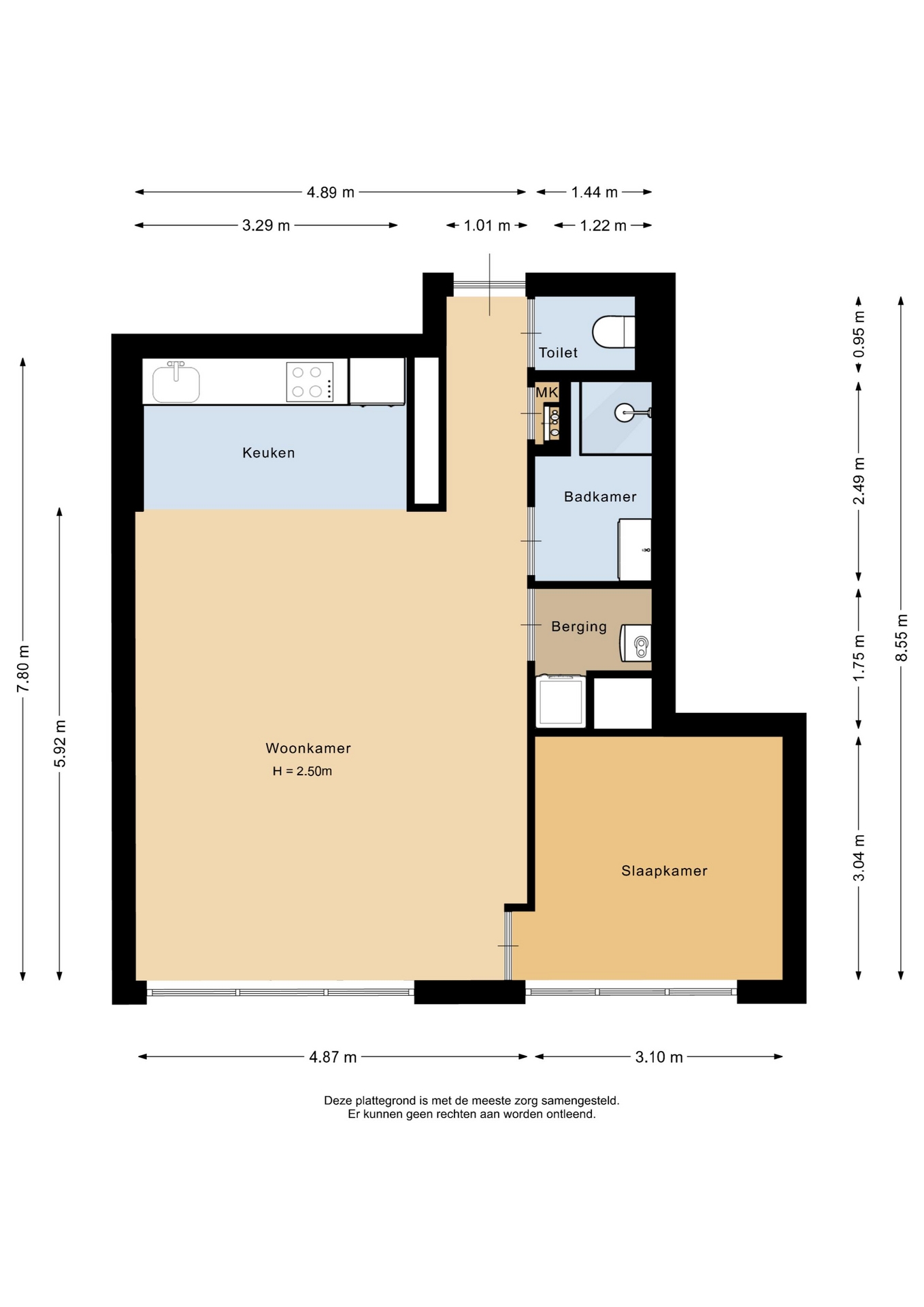
De woning beschikt over twee kamers, waarvan één ruime slaapkamer die voldoende plek biedt voor een groot bed en kastruimte. De badkamer is netjes, compact en voorzien van alles wat je nodig hebt. Door de slimme indeling en de hoeveelheid daglicht die binnen komt voelt het appartement ruim aan.

GEZELLIG EN CENTRAAL IN ROTTERDAM
De ligging aan de Walenburgerweg is ideaal: een levendige straat in het noordelijke deel van het centrum van Rotterdam. Hier woon je op loopafstand van diverse winkels, koffietentjes, supermarkten en het Centraal Station. Je bent dus zó in de stad of in het park. Tegelijkertijd voelt de buurt prettig en kleinschalig aan, met een mix van jonge bewoners en stadse gezelligheid.

Ook op mobiliteitsvlak zit je hier goed: fietsenstallingen, OV-verbindingen en uitvalswegen zijn allemaal binnen handbereik. Zoek je een appartement met flair, een stedelijk karakter én comfort, dan hoef je niet verder te kijken.

KENMERKEN
- Eigen grond
- Bouwjaar: 1972
- Energielabel: A
- Woonoppervlakte: 56 m²
- 1 Slaapkamer
- Airconditioning aanwezig
- Uitzicht op de skyline van Rotterdam
- Ligging: Levendige buurt nabij centrum en Rotterdam Centraal
- Actieve VvE met een maandelijkse bijdrage van €106,29
- Ouderdomsclausule van toepassing
- Oplevering: in overleg

INTERESSE? MAAK DAN SNEL EEN AFSPRAAK!
Ons advies is om bij het kopen van jouw nieuwe woning jouw eigen NVM makelaar mee te nemen.

TOELICHTINGSCLAUSULE NEN2580
De Meetinstructie is gebaseerd op de NEN2580. De Meetinstructie is bedoeld om een meer eenduidige manier van meten toe te passen voor het geven van een indicatie van de gebruiksoppervlakte. De Meetinstructie sluit verschillen in meetuitkomsten niet volledig uit, door bijvoorbeeld interpretatieverschillen, afrondingen of beperkingen bij het uitvoeren van de meting.

KOOPOVEREENKOMST PAS RECHTSGELDIG NA ONDERTEKENING
Een mondelinge overeenstemming tussen de particuliere verkoper en de particuliere koper is niet rechtsgeldig. Met andere woorden: er is geen koop. Er is pas sprake van een rechtsgeldige koop als de particuliere verkoper en de particuliere koper de koopovereenkomst hebben ondertekend. Dit vloeit voort uit artikel 7:2 Burgerlijk Wetboek. Een bevestiging van de mondelinge overeenstemming per e-mail of een toegestuurd concept van de koopovereenkomst wordt overigens niet gezien als een 'ondertekende koopovereenkomst'

“Deze informatie is door ons met de nodige zorgvuldigheid samengesteld. Onzerzijds wordt echter geen enkele aansprakelijkheid aanvaard voor enige onvolledigheid, onjuistheid of anderszins, dan wel de gevolgen daarvan. Alle opgegeven maten en oppervlakten zijn indicatief.”

Kenmerken

Basiskenmerken

  • Status Beschikbaar
  • Koopsom € 325.000 k.k.
  • Woonoppervlakte ca. 56 m2
  • Aantal slaapkamers 1
  • Bouwjaar 1972

Overdracht

  • Aanvaarding In overleg

Bouwvorm & onderhoud

  • Bouwjaar 1972
  • Soort bouw woonhuis
  • Ligging In centrum, open ligging

Oppervlakte & inhoud

  • Gebruiksoppervlakte 56m2
  • Inhoud 178m3
  • Aantal kamers 2
  • Aantal slaapkamers 1
  • Aantal woonlagen 1 woonlagen

Energie & installatie

  • Energielabel A
  • Isolatie Dakisolatie, muurisolatie, hr glas
  • Verwarming Elektrische verwarming
  • Warm water Elektrische boiler eigendom
  • Energie einddatum 2034-09-24

Parkeergelegenheid

  • Parkeerfaciliteiten Openbaar parkeren, betaald parkeren, parkeervergunningen
  • Garage Geen garage

Dak

  • Soort dak Plat dak

Overig

  • Onderhoud binnen Goed
  • Onderhoud buiten Goed
  • Bijzonderheden Gedeeltelijk gestoffeerd
  • Permanente bewoning Ja
  • Huidig gebruik Woonruimte
  • Huidige bestemming Woonruimte

Voorzieningen

  • Voorzieningen Tv kabel, lift, airconditioning

Kadastrale gegevens

  • Perceelnummer 5294
Meer kenmerken

Ontdek online wat jouw huis waard is

Met de online waardecheck ontdek je in een paar minuten de geschatte waarde van jouw huis

Online waardecheck

Media

In de buurt

Geïnteresseerd?

Bel met Den Rooijen & Van Herk Makelaars

shape

Stuur een bericht

* Maximaal 255 tekens
privacyverklaring