 
                                 
                                         
                                        Rotterdam
Zilverdistel 11
€ 450.000,- k.k.
Omschrijving
LICHTE EN MODERNE DRIVE-IN WONING MET VEEL BUITENRUIMTE Welkom bij Zilverdistel 11, een instapklare en goed onderhouden drive-in woning met verrassend veel ruimte, een eigen garage, een fijne tuin op het westen én een balkon op de eerste verdieping. Deze woning uit 1972 is volledig aangepast aan de wensen van nu, met onder meer 9 zonnepanelen, grotendeels kunststof…
LICHTE EN MODERNE DRIVE-IN WONING MET VEEL BUITENRUIMTE
Welkom bij Zilverdistel 11, een instapklare en goed onderhouden drive-in woning met verrassend veel ruimte, een eigen garage, een fijne tuin op het westen én een balkon op de eerste verdieping. Deze woning uit 1972 is volledig aangepast aan de wensen van nu, met onder meer 9 zonnepanelen, grotendeels kunststof kozijnen en energielabel A. Gelegen in een rustige straat in een kindvriendelijke woonwijk is dit de ideale plek voor jonge doorstromers of gezinnen die op zoek zijn naar comfort, ruimte én een goede ligging in Rotterdam.
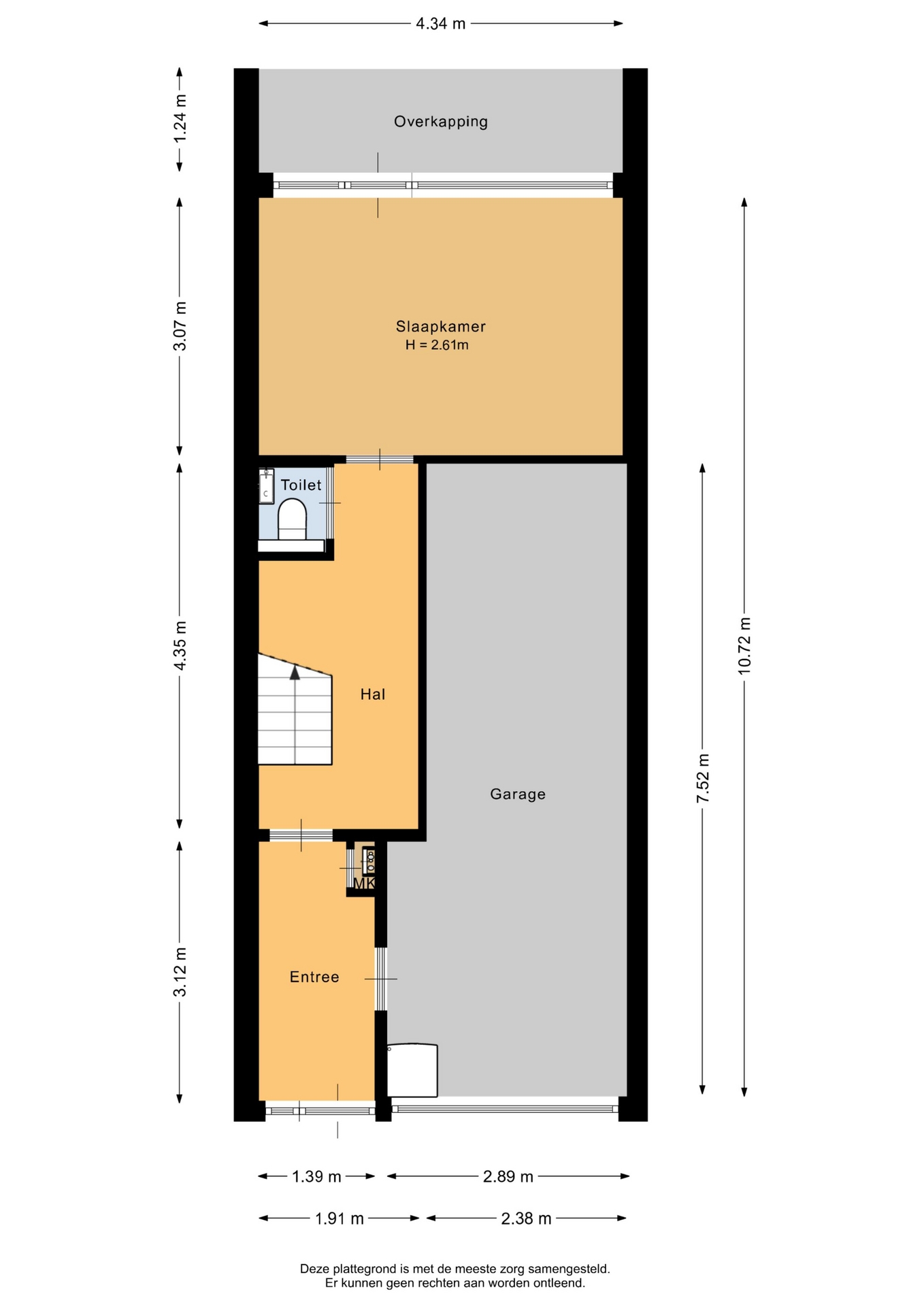
De woning is verdeeld over drie woonlagen. Op de begane grond vind je de entree, een praktische inpandige garage en een ruime (slaap)kamer met toegang tot de tuin. Deze kamer is multifunctioneel in te richten als slaapkamer, kantoor, hobbyruimte of speelkamer. Vanuit hier loop je zo de zonnige achtertuin in: een fijne plek met privacy, groen en volop middag- en avondzon dankzij de westelijke ligging.
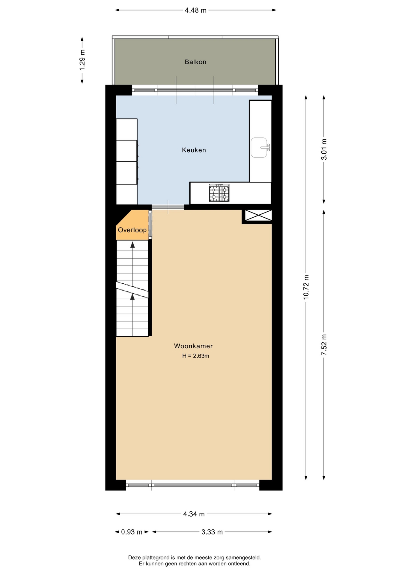
Op de eerste verdieping valt meteen de hoeveelheid licht op. Aan de voorzijde bevindt zich de royale woonkamer met groot raam en prettig uitzicht over de rustige straat. De strakke afwerking, lichte wanden en moderne vloer zorgen voor een rustige basis waarin je alle kanten op kunt met je eigen stijl. Aan de achterzijde ligt de keuken, voorzien van modern wit keukenblok met donker werkblad, een gaskookplaat en veel werkruimte. Via de schuifpui stap je zo het balkon op: een heerlijke plek om met een kop koffie of een goed glas wijn van de buitenlucht te genieten.
VIER SLAAPKAMERS EN MODERNE VOORZIENINGEN
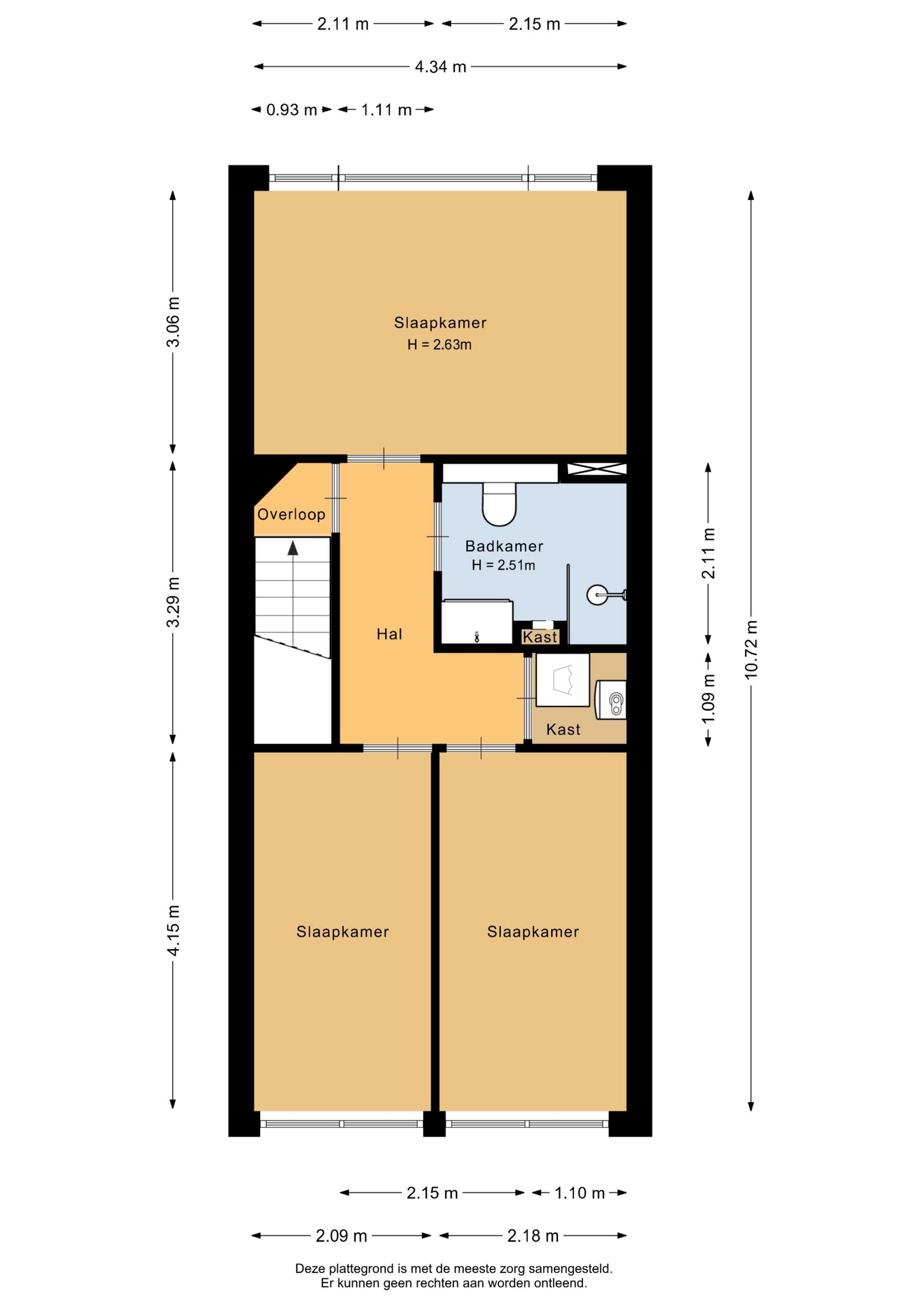
De woning beschikt over vier slaapkamers. Naast de multifunctionele kamer op de begane grond vind je op de tweede verdieping nog eens drie slaapkamers, waarvan de grootste aan de achterzijde ligt. De kamers zijn stuk voor stuk licht, functioneel en goed in te delen als slaap-, werk- of kinderkamer. De badkamer is eveneens op deze verdieping te vinden en is voorzien van een douche, Wastafelmeubel en toilet. Alles is fris en praktisch ingericht.
Dankzij de indeling is dit huis ideaal voor gezinnen of thuiswerkers die graag de ruimte hebben. De combinatie van slaapkamers, meerdere buitenruimtes én een inpandige garage biedt enorm veel flexibiliteit in gebruik.
ENERGIEZUINIG EN GOED ONDERHOUDEN
Wat dit huis extra aantrekkelijk maakt, is de duurzame aanpak. Er liggen 9 zonnepanelen op het dak, wat aanzienlijk scheelt in energiekosten. De kunststof kozijnen (behalve benedenverdieping) zorgen voor goede isolatie en weinig onderhoud. Ook de nette staat van afwerking binnen en buiten laat zien dat er met zorg is gewoond. Je kunt hier direct intrekken en genieten van alles wat deze woning te bieden heeft, zonder grote investeringen.
DE WIJK: GROEN EN RUSTIG WONEN IN ROTTERDAM-OMGEVING
Zilverdistel ligt in een rustige woonwijk aan de westkant van Rotterdam, in de directe nabijheid van onder andere Overschie, Park Zestienhoven en het Schiebroekse Park. Deze buurt kenmerkt zich door veel groen, brede straten en een rustige, kindvriendelijke sfeer. Hier zie je kinderen nog buitenspelen en buren die elkaar groeten. Op loop- en fietsafstand vind je diverse scholen, speeltuinen en sportverenigingen – ideaal voor gezinnen.
Ook qua bereikbaarheid zit je hier goed: met de auto ben je binnen een paar minuten op de A13 of A20 richting Den Haag, Utrecht of het centrum van Rotterdam. OV-verbindingen zijn prima geregeld met bus- en tramhaltes in de buurt. Voor de dagelijkse boodschappen zijn er meerdere supermarkten en winkelcentra in de omgeving. Zin om te wandelen of fietsen? Dan zit je hier perfect met diverse parken en natuurgebieden in de directe omgeving.
BIJZONDERHEDEN:
- Bouwjaar 1972;
- Circa 121 m² woonoppervlakte verdeeld over 3 woonlagen;
- Gelegen op een perceel van 139 m²;
- Gelegen op erfpachtgrond welke is afgekocht tot einde looptijd 21-4-2100;
- 4 slaapkamers aanwezig;
- De moderne keuken is vernieuwd in 2020, combi-oven, stoomoven en afzuigkap van 2024;
- Ruime achtertuin met houtenoverkapping en bergruimte;
- Inpandige garage aanwezig
- Parkeervoorziening op eigen terrein
- Geheel voorzien van kunststof kozijnen met HR++ beglazing (m.u.v. de begane grond);
- 9 zonnepanelen;
- Zonnescherm (elektrische bediening) aan de achterzijde van het huis op 1e verdieping;
- Voldoende gratis parkeergelegenheid rondom de woning;
- Energielabel A, welke geldig is tot 16-09-2035;
- Oplevering: in overleg, kan snel.
INTERESSE? MAAK DAN SNEL EEN AFSPRAAK!
Ons advies is om bij het kopen van je nieuwe huis je eigen NVM-makelaar mee te nemen.
TOELICHTINGSCLAUSULE NEN2580
De Meetinstructie is gebaseerd op de NEN2580. De Meetinstructie is bedoeld om een meer eenduidige manier van meten toe te passen voor het geven van een indicatie van de gebruiksoppervlakte. De Meetinstructie sluit verschillen in meetuitkomsten niet volledig uit, door bijvoorbeeld interpretatieverschillen, afrondingen of beperkingen bij het uitvoeren van de meting.
KOOPOVEREENKOMST PAS RECHTSGELDIG NA ONDERTEKENING
Een mondelinge overeenstemming tussen de particuliere verkoper en de particuliere koper is niet rechtsgeldig. Met andere woorden: er is geen koop. Er is pas sprake van een rechtsgeldige koop als de particuliere verkoper en de particuliere koper de koopovereenkomst hebben ondertekend. Dit vloeit voort uit artikel 7:2 Burgerlijk Wetboek. Een bevestiging van de mondelinge overeenstemming per e-mail of een toegestuurd concept van de koopovereenkomst wordt overigens niet gezien als een 'ondertekende koopovereenkomst'
“Deze informatie is door ons met de nodige zorgvuldigheid samengesteld. Onzerzijds wordt echter geen enkele aansprakelijkheid aanvaard voor enige onvolledigheid, onjuistheid of anderszins, dan wel de gevolgen daarvan. Alle opgegeven maten en oppervlakten zijn indicatief.”
Kenmerken
Basiskenmerken
- Status Beschikbaar
- Koopsom € 450.000 k.k.
- Woonoppervlakte ca. 121 m2
- Aantal slaapkamers 4
- Bouwjaar 1972
Overdracht
- Aanvaarding In overleg
Bouwvorm & onderhoud
- Soort object Tussenwoning
- Soort woning Eengezinswoning
- Bouwjaar 1972
- Soort bouw woonhuis
- Ligging Aan rustige weg, in woonwijk
Oppervlakte & inhoud
- Gebruiksoppervlakte 121m2
- Perceeloppervlakte 139m2
- Inhoud 482m3
- Aantal kamers 5
- Aantal slaapkamers 4
- Aantal woonlagen 3 woonlagen
- Overige inpandige ruimte 20m2
Energie & installatie
- Energielabel A
- Isolatie Dubbel glas
- Verwarming Cv ketel
- Warm water Cv ketel
- C.v.-ketel type GAS
- C.v.-ketel bouwjaar 2009
- Energie einddatum 2035-09-16
Bergruimte
- Schuur / berging Vrijstaand hout
Parkeergelegenheid
- Parkeerfaciliteiten Openbaar parkeren, op eigen terrein
- Garage Inpandig
Dak
- Soort dak Plat dak
Overig
- Onderhoud binnen Goed
- Onderhoud buiten Goed
- Bijzonderheden Gedeeltelijk gestoffeerd
- Permanente bewoning Ja
- Huidig gebruik Woonruimte
- Huidige bestemming Woonruimte
Voorzieningen
- Voorzieningen Mechanische ventilatie, tv kabel, airconditioning, schuifpui, zonnepanelen, natuurlijke ventilatie
Buitenruimte
- Hoofdtuin ACHTERTUIN
- Oppervlakte hoofdtuin 65m2
- Ligging hoofdtuin WEST
- Kwaliteit tuin Normaal
Kadastrale gegevens
- Perceelnummer 4741
- Perceeloppervlakte 139
 
            Ontdek online wat jouw huis waard is
Met de online waardecheck ontdek je in een paar minuten de geschatte waarde van jouw huis
Online waardecheck 
                                         
                                         
                                         
                                         
                                         
                                         
                                         
                                         
                                         
                                     
                                     
                                     
                                     
                                     
                                     
                                     
                                     
                                     
                                     
                                     
                                     
                                     
                                     
                                     
                                     
                                     
                                     
                                     
                                     
                                     
                                     
                                     
                                     
                                     
                                     
                                     
                                     
                                     
                                     
                                     
                                     
                                     
                                     
                                     
                                     
                                     
                                    